
Royal Crescent, Bath, Somerset, BA1

- PROPERTY TYPE
Terraced
- BEDROOMS
8
- BATHROOMS
7
- SIZE
7,346 sq ft
682 sq m
- TENUREDescribes how you own a property. There are different types of tenure - freehold, leasehold, and commonhold.Read more about tenure in our glossary page.
Freehold
Key features
- Iconic address in the heart of Bath
- Potential to combine as magnificent family home.
- Grade I Listed
- Separate Mews House
- Garaging
- EPC Rating = C
Description
Description
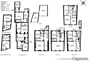
Number 26 is a magnificent Grade I listed townhouse which occupies a superb position within the world famous Royal Crescent with an impressive aspect and views. At present, the property is divided into six self-contained flats, but with appropriate planning, presents a fantastic opportunity for renovation and conversion back to a single family home.
The house retains its impressive proportions and a wealth of elegant period features, including intricate cornicing and original fireplaces. At present, the property comprises two one bedroom flats on the lower ground floor level. The flat at the front is reached via steps to the front into a large courtyard space. There are storage vaults accessed from the courtyard space. The flat at the rear is accessed via the ground floor hallway and also has access directly to the rear garden.
Upon entering from the ground floor door there is a wide entrance hall with access to the ground floor flat and stairs down to the rear lower ground floor flat. Access to the rear garden is obtained from the ground floor. The staircase, with mahogany handrail rises to the upper floors.
On the first floor there is a one bedroom flat that currently holds the main drawing room, this space is of particular note as it benefits from impressive ceiling heights, original cornicing, fireplace and floorboards. There are three tall, sash windows with deep sills from which to sit and take in the breath-taking views across the iconic Royal Crescent lawn, gardens, city and country-side beyond.
On the second floor there is a two bedroom flat and on the top floor there is a further two bedroom flat. Each flat has its own bathroom and kitchen with the top floor flat having a separate WC and bathroom.
The Mews House is situated to the rear and is accessed from Crescent Lane. This additional space offers further flexibility and opportunity for renovation, potential uses could be as a self-contained house or as ancillary accommodation to the main property.
GARDENS, GROUNDS & GARAGING
The large garden is accessible from both the ground and lower ground floor, with a sunken flag stone courtyard area at the lower ground level and provides through-access from the house to the garaging on Crescent Lane at the rear. The house also benefits from access to the privately maintained lawn area to the front of the property which has residents' right of use and is separated from the public space via railings and the ha-ha.
Location
The Royal Crescent is a renowned and prestigious address, known globally. It forms the centrepiece of Bath’s architectural heritage with commanding views across the city, over neighbouring crescents and parkland. The Royal Crescent was designed by John Wood the Younger (1767-1775) who was inspired by the works of Palladio and his neo-classical designs.
Bath is host to a wide variety of historical, cultural and leisure facilities including The Theatre Royal and local racecourse and is the only world heritage city in the UK famed for its Roman history and Georgian architecture.
The city has excellent communications by both train and road. There are also a wide range of schools in the area including Prior Park, Monkton Combe, King Edwards, The Royal High School for Girls and Kingswood.
Square Footage: 7,346 sq ft
Directions
From M4 junction 18 take the A46 exit to Bath. At the roundabout take the first exit onto A46 heading to Bath. Go through the next roundabout. At the following roundabout take the third exit onto London Road West/A4 and continue to follow the road ahead.
Turn right at Lansdown Road then a left at Bennett Street. At the Circus take the second exit onto Brock Street and continue onto the Royal Crescent.
Additional Info
Conversion to Whole House
A positive Pre Application Advice Report has been secured from Bath & North East Somerset Council, confirming support in principle for reinstating No. 26 as a single dwelling. The report also indicates support for the creation of additional residential accommodation through the extension of the mews house above the rear garages. Full BANES documentation and associated pre application plans are available on request
Sale by way of Limited Company
The freehold is offered via the sale of 100% of the share capital in Belmound Investments Limited (Company No. 00735676). The company has held the freehold to Number 26 since 1971, with this property being its sole asset, together with the freehold to the adjoining mews house. Full company information and supporting documentation are available on request.
Brochures
Web Details- COUNCIL TAXA payment made to your local authority in order to pay for local services like schools, libraries, and refuse collection. The amount you pay depends on the value of the property.Read more about council Tax in our glossary page.
- Band: TBC
- PARKINGDetails of how and where vehicles can be parked, and any associated costs.Read more about parking in our glossary page.
- Yes
- GARDENA property has access to an outdoor space, which could be private or shared.
- Yes
- ACCESSIBILITYHow a property has been adapted to meet the needs of vulnerable or disabled individuals.Read more about accessibility in our glossary page.
- Ask agent
Royal Crescent, Bath, Somerset, BA1
Add an important place to see how long it'd take to get there from our property listings.
__mins driving to your place
Get an instant, personalised result:
- Show sellers you’re serious
- Secure viewings faster with agents
- No impact on your credit score
Your mortgage
Notes
Staying secure when looking for property
Ensure you're up to date with our latest advice on how to avoid fraud or scams when looking for property online.
Visit our security centre to find out moreDisclaimer - Property reference BTS240403. The information displayed about this property comprises a property advertisement. Rightmove.co.uk makes no warranty as to the accuracy or completeness of the advertisement or any linked or associated information, and Rightmove has no control over the content. This property advertisement does not constitute property particulars. The information is provided and maintained by Savills, Bath. Please contact the selling agent or developer directly to obtain any information which may be available under the terms of The Energy Performance of Buildings (Certificates and Inspections) (England and Wales) Regulations 2007 or the Home Report if in relation to a residential property in Scotland.
*This is the average speed from the provider with the fastest broadband package available at this postcode. The average speed displayed is based on the download speeds of at least 50% of customers at peak time (8pm to 10pm). Fibre/cable services at the postcode are subject to availability and may differ between properties within a postcode. Speeds can be affected by a range of technical and environmental factors. The speed at the property may be lower than that listed above. You can check the estimated speed and confirm availability to a property prior to purchasing on the broadband provider's website. Providers may increase charges. The information is provided and maintained by Decision Technologies Limited. **This is indicative only and based on a 2-person household with multiple devices and simultaneous usage. Broadband performance is affected by multiple factors including number of occupants and devices, simultaneous usage, router range etc. For more information speak to your broadband provider.
Map data ©OpenStreetMap contributors.





