Ramsgate Road, Broadstairs, Kent, CT10
- PROPERTY TYPE
Land
- SIZE
Ask agent
Description
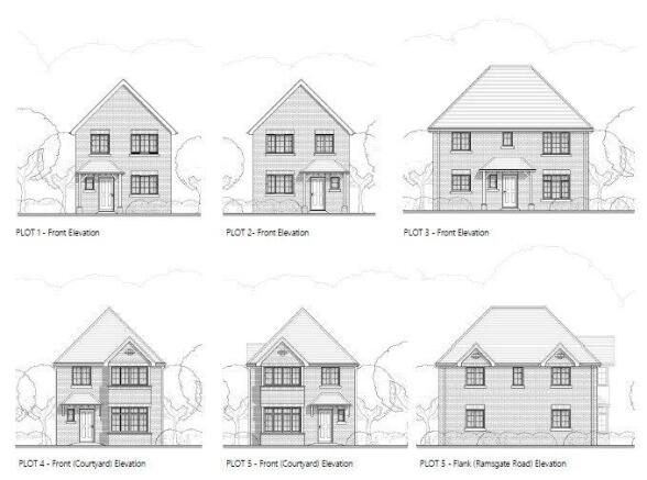
Five Detached Homes
Fully Cleared Site
A fully cleared and prime development site located in the popular seaside town of Broadstairs. The site has planning permission granted (Thanet Council F/TH/23/1203) for the erection of five detached family homes.
Formerly part of the adjacent renowned and independent Wellesley Haddon Dene School the site has excellent access onto Ramsgate Road.
The Property:
Approached off Ramsgate Road by the Bromsgrove roundabout the site is level and
cleared of all structures. Planning was granted in January 2024 for the ‘Erection of 5No two-storey detached dwellings, comprising of 2No 3-bed and 3No 4-bed, together with associated access, parking and landscaping.’
Each house offers well designed family homes in a classic style ranging from 1,184sqft to 1,464sqft and a mixture of 3 and 4 bedroom homes, all with family bathrooms and ensuites. The plots vary in size but the site retains much of the current trees to create a mature setting.
Proposal:
Offers are invited for the site based on the current planning consent. And a full set
of consented plans and reports are available on request.
Location:
The property is located in this popular and thriving seaside town, offering a variety of homes. Family homes sub £700,000 remain popular in the area as families are drawn to the excellent schools and local facilities. Located on the outskirts of the town these homes will be easily accessible to the
thriving eateries and boutique shops of the town centre and assessable to the stunning Viking Bay beach.
Contact:
We would ask that all site visits are conducted with a high degree of discretion and please treat this opportunity as Private & Confidential for the time being as the clients do not wish the neighbours to be alerted to the plans to sell the property. The site is unsecured and vacant so site visits do not need to be organised.
Location
The sought-after seaside town of Broadstairs, with quaint fisherman’s cottages and period houses, including Bleak House, once the summer home of Charles Dickens. Broadstairs is also well known for its Blue Flag award winning sandy beaches, including Viking Bay and Joss Bay. The town also offers a good range of facilities with a wonderful selection of boutique shops, restaurants and cinema, together with those found at Westwood Cross shopping centre. Sporting and recreational opportunities in the area include: a leisure centre at Ramsgate, golf at North Foreland Golf Club, the championship golf courses of Royal St Georges and Princes in Sandwich, various sports clubs in the area including Broadstairs Sailing Club, cliff top and beach walking, horse riding and bowls clubs. Broadstairs benefits from the High Speed Rail with direct services to London (St Pancras 76 mins). The nearby A299 Thanet Way provides good access to the motorway network. The Eurotunnel at Cheriton, Port of Dover and Eurostar at Ashford are also easily accessed by car and provide excellent links to the continent.
Identification Checks
Should a purchaser(s) have an offer accepted on a property marketed by Miles & Barr, they will need to undertake an identification check. This is done to meet our obligation under Anti Money Laundering Regulations (AML) and is a legal requirement. We use a specialist third party service to verify your identity. The cost of these checks is £60 inc. VAT per purchase, which is paid in advance, when an offer is agreed and prior to a sales memorandum being issued. This charge is non-refundable under any circumstances.
Brochures
ParticularsRamsgate Road, Broadstairs, Kent, CT10
NEAREST STATIONS
Distances are straight line measurements from the centre of the postcode- Broadstairs Station0.5 miles
- Dumpton Park Station0.6 miles
- Ramsgate Station1.3 miles
Notes
Disclaimer - Property reference MNW250141. The information displayed about this property comprises a property advertisement. Rightmove.co.uk makes no warranty as to the accuracy or completeness of the advertisement or any linked or associated information, and Rightmove has no control over the content. This property advertisement does not constitute property particulars. The information is provided and maintained by Miles & Barr, Land & New Homes. Please contact the selling agent or developer directly to obtain any information which may be available under the terms of The Energy Performance of Buildings (Certificates and Inspections) (England and Wales) Regulations 2007 or the Home Report if in relation to a residential property in Scotland.
Map data ©OpenStreetMap contributors.






