
Kingsland Road, London, E8

- PROPERTY TYPE
Apartment
- BEDROOMS
1
- BATHROOMS
1
- SIZE
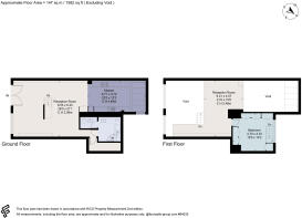
1,582 sq ft
147 sq m
Key features
- Kitchen and bedroom ceilings are acoustically treated
- Concrete flooring with underfloor heating on the ground floor
- Bespoke colour coded cabinets in the kitchen, bedroom and bathroom
- Two additional storage spaces
- Architectural Designed
- EPC Rating = D
Description
Description
A stunning one-bedroom warehouse conversion offering approx. 1,538 sq ft of beautifully designed living space; the property was bought as a shell by the current owner and architecturally designed by Brinkworth.
Set over two expansive levels, the property blends period industrial character with contemporary luxury, featuring exposed brickwork, Iroko hardwood wall panelling and floors, and vaulted double-height 5 meter ceilings.
The ground floor reception room spans over 28ft, creating an impressive space for entertaining. The bespoke kitchen features Flos designer pendant lights and a convenient laundry shoot from the bedroom above, it is also the only property to benefit from a rear skylight. This floor is completed by a stylish bathroom/wet room, also in Iroko.
A striking concrete staircase leads to the upper level, where a second reception room overlooks the living area. The principal bedroom is generously proportioned, offering a peaceful retreat with excellent storage.
This unique home has been thoughtfully designed to retain the original features while offering refined, design-led interiors throughout.
This property is offered chain free, and includes an allocated parking space and bike storage box.
Location
Quebec Wharf was built in 1878 for the North Metropolitan Tramways Company as a canal-side granary, and is now a quiet and peaceful gated residence set well back from Kingsland Road. It is conveniently located for Haggerston Overground (0.1 mile) and the many bus routes serving Liverpool Street and the City found on Kingsland Road.
The extensive selection of shops, bars & restaurants found in Shoreditch (1.1 mile), Dalston (0.5 miles) and Haggerston are also within easy reach.
Source: Google.
Square Footage: 1,582 sq ft
Brochures
Web Details- COUNCIL TAXA payment made to your local authority in order to pay for local services like schools, libraries, and refuse collection. The amount you pay depends on the value of the property.Read more about council Tax in our glossary page.
- Band: E
- PARKINGDetails of how and where vehicles can be parked, and any associated costs.Read more about parking in our glossary page.
- Yes
- GARDENA property has access to an outdoor space, which could be private or shared.
- Ask agent
- ACCESSIBILITYHow a property has been adapted to meet the needs of vulnerable or disabled individuals.Read more about accessibility in our glossary page.
- Ask agent
Kingsland Road, London, E8
Add an important place to see how long it'd take to get there from our property listings.
__mins driving to your place
Get an instant, personalised result:
- Show sellers you’re serious
- Secure viewings faster with agents
- No impact on your credit score
Your mortgage
Notes
Staying secure when looking for property
Ensure you're up to date with our latest advice on how to avoid fraud or scams when looking for property online.
Visit our security centre to find out moreDisclaimer - Property reference HCK250043. The information displayed about this property comprises a property advertisement. Rightmove.co.uk makes no warranty as to the accuracy or completeness of the advertisement or any linked or associated information, and Rightmove has no control over the content. This property advertisement does not constitute property particulars. The information is provided and maintained by Savills, Hackney. Please contact the selling agent or developer directly to obtain any information which may be available under the terms of The Energy Performance of Buildings (Certificates and Inspections) (England and Wales) Regulations 2007 or the Home Report if in relation to a residential property in Scotland.
*This is the average speed from the provider with the fastest broadband package available at this postcode. The average speed displayed is based on the download speeds of at least 50% of customers at peak time (8pm to 10pm). Fibre/cable services at the postcode are subject to availability and may differ between properties within a postcode. Speeds can be affected by a range of technical and environmental factors. The speed at the property may be lower than that listed above. You can check the estimated speed and confirm availability to a property prior to purchasing on the broadband provider's website. Providers may increase charges. The information is provided and maintained by Decision Technologies Limited. **This is indicative only and based on a 2-person household with multiple devices and simultaneous usage. Broadband performance is affected by multiple factors including number of occupants and devices, simultaneous usage, router range etc. For more information speak to your broadband provider.
Map data ©OpenStreetMap contributors.








