
Checker Street, King's Lynn, PE30

- PROPERTY TYPE
Terraced
- BEDROOMS
3
- BATHROOMS
1
- SIZE
Ask agent
- TENUREDescribes how you own a property. There are different types of tenure - freehold, leasehold, and commonhold.Read more about tenure in our glossary page.
Freehold
Key features
- Three Bedrooms
- Lounge Diner
- Entrance Porch
- First Floor Bathroom
- EPC Rating: Awating
- Rear Garden
Description
A three bedroom mid terrace home situated on Checker Street close to King's Lynn Town Centre. The accommodation comprises lounge diner, kitchen, utility area, three bedrooms and bathroom. The property further benefits from gas central heating and rear garden. A full range of facilities can be found within walking distance including a main line rail link into Cambridge and London King's Cross.
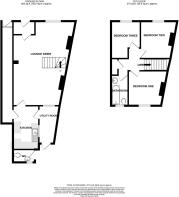
Entrance Porch
Entrance door to front.
Lounge Diner
23' 5" x 17'6 Max (12'9" Min) (7.14m x 3.89m) Glazed windows to front and rear, two feature fireplaces, two radiators and fitted carpet.
Kitchen
12' 2" x 7' 3" (3.71m x 2.21m) Glazed door and window to side, door to side passage, fitted kitchen with space for cooker and washing machine, radiator and tiled flooring.
Utility Area
10' 2" x 5' 2" (3.10m x 1.57m) Glazed door to rear and tiled flooring.
Landing
Storage cupboard.
Bedroom One
10' 4" x 11' 2" (3.15m x 3.40m) Glazed window to rear, feature fireplace, radiator and fitted carpet.
Bedroom Two
9' 6" x 10' 5" (2.90m x 3.17m) Glazed window to front, feature fireplace, radiator and fitted carpet.
Bedroom Three
10' 5" x 8' 2" (3.17m x 2.49m) Glazed window to front, radiator and fitted carpet.
Bathroom
8' 9" x 4' 8" (2.67m x 1.42m) Glazed window to rear, bath with electric shower above, low flush w/c, pedestal wash hand basin, radiator and fitted carpet.
Garden
Enclosed rear garden which is mainly laid to paving.
EPC Rating: Awaiting
Council Tax Band: A
Brochures
Brochure 1Brochure 2- COUNCIL TAXA payment made to your local authority in order to pay for local services like schools, libraries, and refuse collection. The amount you pay depends on the value of the property.Read more about council Tax in our glossary page.
- Ask agent
- PARKINGDetails of how and where vehicles can be parked, and any associated costs.Read more about parking in our glossary page.
- Ask agent
- GARDENA property has access to an outdoor space, which could be private or shared.
- Yes
- ACCESSIBILITYHow a property has been adapted to meet the needs of vulnerable or disabled individuals.Read more about accessibility in our glossary page.
- Ask agent
Energy performance certificate - ask agent
Checker Street, King's Lynn, PE30
Add an important place to see how long it'd take to get there from our property listings.
__mins driving to your place
Get an instant, personalised result:
- Show sellers you’re serious
- Secure viewings faster with agents
- No impact on your credit score
Your mortgage
Notes
Staying secure when looking for property
Ensure you're up to date with our latest advice on how to avoid fraud or scams when looking for property online.
Visit our security centre to find out moreDisclaimer - Property reference 30025824. The information displayed about this property comprises a property advertisement. Rightmove.co.uk makes no warranty as to the accuracy or completeness of the advertisement or any linked or associated information, and Rightmove has no control over the content. This property advertisement does not constitute property particulars. The information is provided and maintained by Newson & Buck Estate Agents, Kings Lynn. Please contact the selling agent or developer directly to obtain any information which may be available under the terms of The Energy Performance of Buildings (Certificates and Inspections) (England and Wales) Regulations 2007 or the Home Report if in relation to a residential property in Scotland.
*This is the average speed from the provider with the fastest broadband package available at this postcode. The average speed displayed is based on the download speeds of at least 50% of customers at peak time (8pm to 10pm). Fibre/cable services at the postcode are subject to availability and may differ between properties within a postcode. Speeds can be affected by a range of technical and environmental factors. The speed at the property may be lower than that listed above. You can check the estimated speed and confirm availability to a property prior to purchasing on the broadband provider's website. Providers may increase charges. The information is provided and maintained by Decision Technologies Limited. **This is indicative only and based on a 2-person household with multiple devices and simultaneous usage. Broadband performance is affected by multiple factors including number of occupants and devices, simultaneous usage, router range etc. For more information speak to your broadband provider.
Map data ©OpenStreetMap contributors.





