
Blackheath Avenue, Ipswich, Suffolk, IP3

Letting details
- Let available date:
- 24/03/2026
- Deposit:
- £2,076A deposit provides security for a landlord against damage, or unpaid rent by a tenant.Read more about deposit in our glossary page.
- Min. Tenancy:
- Ask agent How long the landlord offers to let the property for.Read more about tenancy length in our glossary page.
- Let type:
- Long term
- Furnish type:
- Unfurnished
- Council Tax:
- Ask agent
- PROPERTY TYPE
Apartment
- BEDROOMS
2
- BATHROOMS
2
- SIZE
Ask agent
Key features
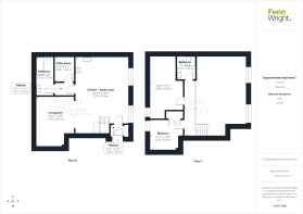
- Two double bedroom duplex apartment
- Accommodation of around 1100sq ft
- Set in a stunning former Victorian hospital conversion
- Parking space and single garage
- South facing private garden
- Open plan Kitchen/dining/sitting room with 17ft ceiling height
- Living room & Utility room
- Bathroom & shower room
- Gas central heating and double-glazed windows
- Popular East Ipswich location
Description
A stunning ground floor duplex apartment which has its own private garden, parking space and garage. Forming part of a resplendent Victorian Hospital conversion located to the East side of the town close to Ipswich Hospital.
The apartment has a stunning open-plan kitchen/dining/sitting room with a 17ft ceiling height, double glazed windows and gas central heating.
The hall has a built-in cupboard and leads into the impressive open-plan kitchen/dining/sitting room space which has a 17ft ceiling height. This room has a south-facing aspect with two impressive double glazed sash windows. There is a kitchen area which comprises a range of base units, wall cupboards, Silestone worktops and drawers. Integrated appliances include a hob, oven, extractor hood, fridge/freezer and dishwasher. There are stairs to the first floor. Adjacent to this room is an additional living area with inset spotlights.
An inner hall leads to a utility room which has a further range of base units, wall cupboards and worktops and washer/dryer. The bathroom has a bath with shower over, basin and WC.
The first floor landing provides access to both double bedrooms and a shower room. Bedroom one is of particular impressive proportions and bedroom two has built-in wardrobes. The shower room has a basin, WC and shower.
Outside
The block is recessed from the road by a driveway where there is an allocated car space and a garage within the block. Externally the apartment has its own private rear garden which is predominantly laid to shingle.
Important Information
Letting information
The rent is exclusive of utilities and council tax.
The property is furnished as seen
Deposit: £2076.92 or our deposit replacement product
Availability: NOW!
Parking - the property comes with an allocated parking space and garage
Non Smokers
Council tax band D
EPC rating C
Services - We understand electricity, water and gas are connected to the property.
Broadband Availability - Standard, Superfast and Ultrafast available (Ofcom Broadband Checker - March 2026).
Mobile Coverage - It is understood that the best available mobile coverage in the area is provided by O2, EE, Vodafone and Three. (Ofcom Mobile Checker –March 2026)
Holding deposit
Prospective applicants will be required to pay a Holding Deposit to Fenn Wright, equivalent to a maximum of 1 week's rent. Once the holding deposit has been received, Fenn Wright will suspend marketing of the rental property for a period of 15 calendar days subject to referencing commencing promptly. Upon successful references being completed, acceptable and the tenancy being confirmed by Fenn Wright, the holding deposit paid will then contribute towards he first month's rental payment.
Brochures
Particulars- COUNCIL TAXA payment made to your local authority in order to pay for local services like schools, libraries, and refuse collection. The amount you pay depends on the value of the property.Read more about council Tax in our glossary page.
- Ask agent
- PARKINGDetails of how and where vehicles can be parked, and any associated costs.Read more about parking in our glossary page.
- Yes
- GARDENA property has access to an outdoor space, which could be private or shared.
- Yes
- ACCESSIBILITYHow a property has been adapted to meet the needs of vulnerable or disabled individuals.Read more about accessibility in our glossary page.
- Ask agent
Blackheath Avenue, Ipswich, Suffolk, IP3
Add an important place to see how long it'd take to get there from our property listings.
__mins driving to your place
Notes
Staying secure when looking for property
Ensure you're up to date with our latest advice on how to avoid fraud or scams when looking for property online.
Visit our security centre to find out moreDisclaimer - Property reference IAI260002_L. The information displayed about this property comprises a property advertisement. Rightmove.co.uk makes no warranty as to the accuracy or completeness of the advertisement or any linked or associated information, and Rightmove has no control over the content. This property advertisement does not constitute property particulars. The information is provided and maintained by Fenn Wright, Ipswich. Please contact the selling agent or developer directly to obtain any information which may be available under the terms of The Energy Performance of Buildings (Certificates and Inspections) (England and Wales) Regulations 2007 or the Home Report if in relation to a residential property in Scotland.
*This is the average speed from the provider with the fastest broadband package available at this postcode. The average speed displayed is based on the download speeds of at least 50% of customers at peak time (8pm to 10pm). Fibre/cable services at the postcode are subject to availability and may differ between properties within a postcode. Speeds can be affected by a range of technical and environmental factors. The speed at the property may be lower than that listed above. You can check the estimated speed and confirm availability to a property prior to purchasing on the broadband provider's website. Providers may increase charges. The information is provided and maintained by Decision Technologies Limited. **This is indicative only and based on a 2-person household with multiple devices and simultaneous usage. Broadband performance is affected by multiple factors including number of occupants and devices, simultaneous usage, router range etc. For more information speak to your broadband provider.
Map data ©OpenStreetMap contributors.








