Chare Road, Stanton, Bury St Edmunds, Suffolk, IP31

- BEDROOMS
4
- BATHROOMS
4
- SIZE
Ask agent
- TENUREDescribes how you own a property. There are different types of tenure - freehold, leasehold, and commonhold.Read more about tenure in our glossary page.
Freehold
Key features
- Planning Permission
- 4 Bedroom Detached House
- Double Cart lodge
- Modern Steel Framed Barn
- 0.44 acres plot
Description
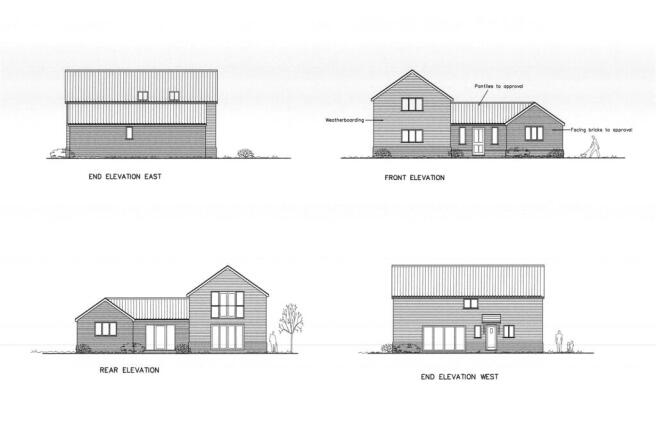
A generously sized building plot with full planning permission granted for the erection of a single detached, self-build dwelling and double cartlodge. As approved the dwelling is a 4 bed detached property with an approximate Gross Internal Area (GIA) of 187 m2 (2008 ft2). The plot size is approximately 0.44 acres (subject to survey). The plot is spacious and is situated off a quiet side road located to the north of Stanton Village.
THE SITE
The site currently forms an extended garden area to Chardale. The site is relatively level with a number of mature fruit trees. The site also benefits from a very useful modern 6m x 10m portal framed building.
PLANNING PERMISSION
Planning permission was granted by West Suffolk Council on the 7th March 2025 under planning reference DC/24/0931/FUL. A full range of documents submitted with the application including the decision notice can be viewed online via the West Suffolk Planning search.
SERVICES
There is a foul drainage connection point on site, or adjacent to it in the Vendor’s retained land. The Vendor has installed conduit to facilitate electrical connection by the buyer. It is assumed that water is available in the highway.
ACCESS
The plot has an approved access onto Chare Road.
LOCAL AUTHORITY
West Suffolk Council. West Suffolk House, Western Way, Bury St Edmunds, Suffolk IP33 3YU.
LOCATION
The site is located to the north of Chare Road, Stanton on the north side of the village. Stanton has a wide range of amenities including a post office, general store, petrol station, as well as community building like a Village Hall and a church. The nearby A143 provided excellent travel links to near by Bury St Edmunds (11 miles to the south) and Diss (13 miles to the north).
DIRECTIONS
From Bury St Edmunds take the A143 north, continue on the A143 through Great Barton and Ixworth in to Stanton this is approximately 7 Miles. When in Stanton turn left on to Barningham Road continue for 0.5 miles then turn left onto Chare Road. The site can be found right side of the road just after Dale Road.
AGENTS NOTES
The sale will be subject to the following restrictions to protect the amenity of the retained land. 1. Development will be limited to the erection of one residential dwelling and ancillary buildings. 2. No overlooking windows towards Chardale. 3. There will be a restriction prohibiting parking or driveway development between the front of the dwelling and Chare road. The development is for a self-build dwelling. Initial occupation of the dwelling (for a period of 12 months) must be by those parties with primary input into the design and layout of the dwelling. It may therefore be necessary for the buyer to tailor the design so as to qualify as having principle input into the design.
VIEWING/FURTHER INFORMATION
To arrange a viewing or for further information please contact Alex Turner.
Brochures
Particulars- COUNCIL TAXA payment made to your local authority in order to pay for local services like schools, libraries, and refuse collection. The amount you pay depends on the value of the property.Read more about council Tax in our glossary page.
- Band: TBC
- PARKINGDetails of how and where vehicles can be parked, and any associated costs.Read more about parking in our glossary page.
- Covered
- GARDENA property has access to an outdoor space, which could be private or shared.
- Yes
- ACCESSIBILITYHow a property has been adapted to meet the needs of vulnerable or disabled individuals.Read more about accessibility in our glossary page.
- Ask agent
Energy performance certificate - ask agent
Chare Road, Stanton, Bury St Edmunds, Suffolk, IP31
Add an important place to see how long it'd take to get there from our property listings.
__mins driving to your place
Get an instant, personalised result:
- Show sellers you’re serious
- Secure viewings faster with agents
- No impact on your credit score



Your mortgage
Notes
Staying secure when looking for property
Ensure you're up to date with our latest advice on how to avoid fraud or scams when looking for property online.
Visit our security centre to find out moreDisclaimer - Property reference BUS200151. The information displayed about this property comprises a property advertisement. Rightmove.co.uk makes no warranty as to the accuracy or completeness of the advertisement or any linked or associated information, and Rightmove has no control over the content. This property advertisement does not constitute property particulars. The information is provided and maintained by Lacy Scott & Knight, Stowmarket. Please contact the selling agent or developer directly to obtain any information which may be available under the terms of The Energy Performance of Buildings (Certificates and Inspections) (England and Wales) Regulations 2007 or the Home Report if in relation to a residential property in Scotland.
*This is the average speed from the provider with the fastest broadband package available at this postcode. The average speed displayed is based on the download speeds of at least 50% of customers at peak time (8pm to 10pm). Fibre/cable services at the postcode are subject to availability and may differ between properties within a postcode. Speeds can be affected by a range of technical and environmental factors. The speed at the property may be lower than that listed above. You can check the estimated speed and confirm availability to a property prior to purchasing on the broadband provider's website. Providers may increase charges. The information is provided and maintained by Decision Technologies Limited. **This is indicative only and based on a 2-person household with multiple devices and simultaneous usage. Broadband performance is affected by multiple factors including number of occupants and devices, simultaneous usage, router range etc. For more information speak to your broadband provider.
Map data ©OpenStreetMap contributors.




