Cross Road, Tadworth, Surrey, KT20

- PROPERTY TYPE
Detached
- BEDROOMS
5
- BATHROOMS
3
- SIZE
3,493 sq ft
325 sq m
- TENUREDescribes how you own a property. There are different types of tenure - freehold, leasehold, and commonhold.Read more about tenure in our glossary page.
Freehold
Key features
- 4/5 bedroom extended and refurbished home
- Open plan Kitchen/Dining/Family
- Separate Dining, Study and Gym rooms
- Siemens appliances in kitchen
- Beautiful front aspect
- Garage and parking
- Prime Tadworth location
- EPC C
- Council Tax Band G
Description
Property
Eastons are proud to offer to the market an exceptional home of approximately 3493 sq ft. The 4/5 bedroom family home has been extended and exceptionally refurbished with internal finishes completed to a very high standard by award winning developer Denton Homes.
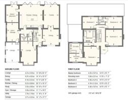
The front aspect offers a beautiful entrance with manicured lawns and a lovely porch. Once inside the spacious hall offers access to the lounge, dining and kitchen areas. The front facing lounge is a very generous size and includes a large bay window overlooking the front garden. The beautiful kitchen/dining overlooks the South facing back garden and has through access to the study, family and utility rooms. There is a separate dining room to the front of the property. The ground floor also features a gym room with internal access to the garage.
The first floor features 4 bedrooms. The principle bedroom features a separate dressing and ensuite with bath and separate shower. There is a second ensuite in Bedroom 4. The family bathroom is expansive and luxurious. The landing is a feature in itself due to its size and spaciousness. There is also a cosy Turret on this floor offering a unique space to sit and enjoy the views and natural light.
The house is located on one of Tadworth's most sought after roads.
Location
Tadworth Village lies on the outskirts of the North Downs and is within a short flat walk offering a thriving village community to include many shops and independent trades. It is centrally placed for access to all parts of South East England via junction 8 of the M25 which is approximately 4 miles to the South. This provides access to the motorway network and both Gatwick (16miles) and Heathrow (32miles) airports. The area provides a wide choice of private and state schools including nearby Tadworth Primary School together with many recreational pursuits. Larger towns of Epsom, Sutton and Kingston provide more comprehensive shopping centres. Epsom Downs offers 600 acres of unspoilt green belt countryside and is home to the world famous Derby.
Trains to London are available from Tadworth train station (5 minute walk) and Tadworth village offers an array of restaurants, a hairdressers, Post Office, grocery stores, barbers, beauty salon and café and Asda superstore is 5 minutes away by car.
Money Laundering Regulations
We are legally required to carry out Money Laundering checks on all potential buyers, sellers, landlords and tenants in line with HMRC guidelines. We take this responsibility very seriously and carry out these checks through our trusted partners, Coadjute and Rightmove. For tenants, Rightmove will carry this out as part of their referencing procedure. For Buyers this will be carried out once an offer is accepted (subject to contract), and for Sellers and Landlords during on-boarding by Coadjute, who will send a secure link to complete the biometric checks electronically. Please Note: we are unable to either make properties live or formalise offers until such time as successful checks have been carried out. There will be a non-refundable charge for these checks. Please contact the office if you have any questions in relation to this.
Brochures
Particulars- COUNCIL TAXA payment made to your local authority in order to pay for local services like schools, libraries, and refuse collection. The amount you pay depends on the value of the property.Read more about council Tax in our glossary page.
- Band: TBC
- PARKINGDetails of how and where vehicles can be parked, and any associated costs.Read more about parking in our glossary page.
- Garage,Driveway,EV charging
- GARDENA property has access to an outdoor space, which could be private or shared.
- Yes
- ACCESSIBILITYHow a property has been adapted to meet the needs of vulnerable or disabled individuals.Read more about accessibility in our glossary page.
- Ask agent
Cross Road, Tadworth, Surrey, KT20
Add an important place to see how long it'd take to get there from our property listings.
__mins driving to your place
Get an instant, personalised result:
- Show sellers you’re serious
- Secure viewings faster with agents
- No impact on your credit score
Your mortgage
Notes
Staying secure when looking for property
Ensure you're up to date with our latest advice on how to avoid fraud or scams when looking for property online.
Visit our security centre to find out moreDisclaimer - Property reference LND240035. The information displayed about this property comprises a property advertisement. Rightmove.co.uk makes no warranty as to the accuracy or completeness of the advertisement or any linked or associated information, and Rightmove has no control over the content. This property advertisement does not constitute property particulars. The information is provided and maintained by Eastons Ltd, Land. Please contact the selling agent or developer directly to obtain any information which may be available under the terms of The Energy Performance of Buildings (Certificates and Inspections) (England and Wales) Regulations 2007 or the Home Report if in relation to a residential property in Scotland.
*This is the average speed from the provider with the fastest broadband package available at this postcode. The average speed displayed is based on the download speeds of at least 50% of customers at peak time (8pm to 10pm). Fibre/cable services at the postcode are subject to availability and may differ between properties within a postcode. Speeds can be affected by a range of technical and environmental factors. The speed at the property may be lower than that listed above. You can check the estimated speed and confirm availability to a property prior to purchasing on the broadband provider's website. Providers may increase charges. The information is provided and maintained by Decision Technologies Limited. **This is indicative only and based on a 2-person household with multiple devices and simultaneous usage. Broadband performance is affected by multiple factors including number of occupants and devices, simultaneous usage, router range etc. For more information speak to your broadband provider.
Map data ©OpenStreetMap contributors.




