Eynsford Road, Crockenhill, Kent, BR8

- PROPERTY TYPE
Detached
- BEDROOMS
8
- BATHROOMS
3
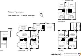
- SIZE
5,605 sq ft
521 sq m
- TENUREDescribes how you own a property. There are different types of tenure - freehold, leasehold, and commonhold.Read more about tenure in our glossary page.
Freehold
Key features
- Grade II listed Queen Anne farmhouse
- 5605 Sq ft
- 8 Bedrooms
- Retains many original features
- Part walled garden
Description
DESCRIPTION
Approached over a sweeping gravel driveway, this handsome Grade II Listed Queen Anne farmhouse is situated on the outskirts of Crockenhill village. The property offers generous, well proportioned accommodation and retains many period features including exposed beams, high ceilings, some exposed floorboards, traditional cast iron radiators, original shutters, sash windows and decorative cornice.
All of the bedrooms benefit from beautiful countryside views with the gardens wrapping around three sides of the property.
The property provides an opportunity for enhancement and requires some modernisation, presenting an excellent prospect for any new owner to renovate to their taste.
FEATURES
- Double doors lead to the welcoming entrance porch which in turn leads to the generous inner hallway with parquet flooring and grand staircase.
- The ground floor offers three main reception rooms; a dining room, study, and sitting room, each with original features.
- The dual aspect study benefits from wooden flooring, an original fireplace, and a range of built-in cupboards and shelves.
- The sitting room is particularly striking, with original floorboards, a feature wooden mantel and log-burning fire, French doors leading to the garden, and access to the garden room through a beautiful arched window and door.
- The dual-aspect dining room overlooks the gardens, boasting an open fireplace and elegant sash bay window.
- The traditional kitchen has a range of cream shaker cupboards including a central island, complemented by wooden work surfaces. Appliances include an integrated dishwasher, fridge, freezer, and space for both a range cooker and oil-fired AGA. Adjoining the kitchen is a substantial utility/boot room with butler sink, cupboards and ample space for laundry appliances and additional refrigeration. Additionally, this room provides access to a ground floor cloakroom, the extensive cellar and a games room/gym.
- Located on the first floor, the principal bedroom has a dressing room with fitted wardrobes and spacious ensuite bathroom comprising corner bath and double vanity. The guest bedroom has an ensuite shower room and fitted wardrobes. There are two additional generous double bedrooms, one with fitted wardrobes. A family bathroom comprising bath with shower over completes the first-floor accommodation.
- The second floor comprises four further good-sized double bedrooms, all with beautiful countryside views.
- The attractive gardens are part walled and predominantly laid to lawn, wrapping around three sides of the property with gravel pathways leading to a seating area. The lawn is framed by mature hedges and shrubs and there is ample parking on the gravel driveway that leads to the side of the house.
SITUATION
Situated on the outskirts of Crockenhill village yet within a short drive of motorway networks M25/M20 and A21 and within 2.5 miles of Swanley mainline station.
Ideally located in a semi-rural location nestled between the desirable villages of Crockenhill and Eynsford. Crockenhill offers a sought-after primary school, pub, post office, local shops and great transport links. Eynsford is 2.6 miles distant with the attractions of the Roman Castle ruins and Lullingstone Castle close by. Eynsford village has a range of general stores, public houses, tea rooms, a butcher and church.
Train services are available at Swanley (London Bridge approx. 21mins) and Eynsford to London Victoria. Sevenoaks offers fast and frequent services to Charing Cross/Cannon Street (London Bridge approx. 23 mins).
The area offers a wide range of schools in the private, public and state sectors including primary schools in Swanley, Crockenhill, Eynsford, Shoreham and Otford, Grammar Schools in Dartford, Orpington and Tonbridge as well as the Grammar annexes in Sevenoaks. There are preparatory schools in both Otford and Sevenoaks as well as the renowned Sevenoaks School.
The area is well served with golf courses with Pedham golf course (1.6 miles), The London Club (7.9 miles) and Wildnernesse and Knole golf clubs in Sevenoaks. Leisure Centres can be found in Sidcup, Sevenoaks and Tonbridge.
Comprehensive shopping is available in Swanley (about 2 miles, Sevenoaks (about 10 miles) and at Bluewater Shopping Centre (8.4 miles).
The M25 junction 3 at Swanley (1.2 miles) provides access to London, Dartford Tunnel, Gatwick, Stansted and Heathrow airports.
DIRECTIONS
From the M25/M20 roundabout take the exit towards Swanley. After passing the Dreams store take the second left onto Wested Lane/Eynsford Road. After approximately 1 mile you will find Wested Farmhouse on the left.
From Sevenoaks take the A225 through Otford and into Eynsford village. Turn left at the fjord, over the bridge and turn right into Sparepenny Lane, then immediately left. Follow the lane to the end and turn left. Wested Farmhouse can be found shortly afterwards on the left-hand side.
PROPERTY INFORMATION
- Services: Oil fired central heating. Private drainage, Mains electricity and water.
- Local Authority: Sevenoaks District Council
- Council Tax band: G (£4,224.60 for 2026/27)
- Fixtures and fittings are excluded from the sale but may be available by separate negotiation.
- AGENTS NOTES: Property is now unfurnished
Situated on the outskirts of Crockenhill village yet within a short drive of motorway networks M25/M20 and A21 and within 2.5 miles of Swanley mainline station.
Ideally located in a semi-rural location nestled between the desirable villages of Crockenhill and Eynsford. Crockenhill offers a sought-after primary school, pub, post office, local shops and great transport links. Eynsford is 2.6 miles distant with the attractions of the Roman Castle ruins and Lullingstone Castle close by. Eynsford village has a range of general stores, public houses, tea rooms, a butcher and church.
Comprehensive shopping is available in Swanley (about 2 miles and Sevenoaks (about 10 miles). Bluewater Shopping Centre is 8.4 miles.
Mainline Rail services are available at Swanley (London Bridge approx 21mins) and Eynsford and Farningham Road to London Victoria. Sevenoaks to Charing Cross/Cannon Street (London Bridge approx 23 mins).
There are primary schools in Crockenhill, Eynsford, Shoreham and Otford, Grammar Schools in Tonbridge, Tunbridge Wells and the Grammar annexes in Sevenoaks.
Pedham golf course is 1.6 miles, with further golf courses in Shoreham, Otford and Eynsford as well as Wildnernesse and Knole golf clubs in Sevenoaks. The London Golf Club. Leisure Centres can be found in Sevenoaks and Tonbridge.
The M25 junction 3 at Swanley (1.2 miles) provides access to London, Dartford Tunnel, Gatwick, Stansted and Heathrow airports.
Brochures
Particulars- COUNCIL TAXA payment made to your local authority in order to pay for local services like schools, libraries, and refuse collection. The amount you pay depends on the value of the property.Read more about council Tax in our glossary page.
- Band: G
- PARKINGDetails of how and where vehicles can be parked, and any associated costs.Read more about parking in our glossary page.
- Driveway,Off street
- GARDENA property has access to an outdoor space, which could be private or shared.
- Yes
- ACCESSIBILITYHow a property has been adapted to meet the needs of vulnerable or disabled individuals.Read more about accessibility in our glossary page.
- Ask agent
Eynsford Road, Crockenhill, Kent, BR8
Add an important place to see how long it'd take to get there from our property listings.
__mins driving to your place
Get an instant, personalised result:
- Show sellers you’re serious
- Secure viewings faster with agents
- No impact on your credit score
Affordability
Notes
Staying secure when looking for property
Ensure you're up to date with our latest advice on how to avoid fraud or scams when looking for property online.
Visit our security centre to find out moreDisclaimer - Property reference SVN230231. The information displayed about this property comprises a property advertisement. Rightmove.co.uk makes no warranty as to the accuracy or completeness of the advertisement or any linked or associated information, and Rightmove has no control over the content. This property advertisement does not constitute property particulars. The information is provided and maintained by Jackson-Stops, Kent And East Sussex. Please contact the selling agent or developer directly to obtain any information which may be available under the terms of The Energy Performance of Buildings (Certificates and Inspections) (England and Wales) Regulations 2007 or the Home Report if in relation to a residential property in Scotland.
*This is the average speed from the provider with the fastest broadband package available at this postcode. The average speed displayed is based on the download speeds of at least 50% of customers at peak time (8pm to 10pm). Fibre/cable services at the postcode are subject to availability and may differ between properties within a postcode. Speeds can be affected by a range of technical and environmental factors. The speed at the property may be lower than that listed above. You can check the estimated speed and confirm availability to a property prior to purchasing on the broadband provider's website. Providers may increase charges. The information is provided and maintained by Decision Technologies Limited. **This is indicative only and based on a 2-person household with multiple devices and simultaneous usage. Broadband performance is affected by multiple factors including number of occupants and devices, simultaneous usage, router range etc. For more information speak to your broadband provider.
Map data ©OpenStreetMap contributors.




