
21b Perth Road, Dundee, DD1 4HU

- PROPERTY TYPE
Flat
- BEDROOMS
3
- BATHROOMS
1
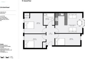
- SIZE
807 sq ft
75 sq m
- TENUREDescribes how you own a property. There are different types of tenure - freehold, leasehold, and commonhold.Read more about tenure in our glossary page.
Freehold
Key features
- Desirable West End Location
- Convenient for Dundee University & Transport Links
- Beautiful Features
- Prime Ground Floor Position
- Modern Windows & GCH
Description
Set quietly back from the energy of Perth Road, in the very heart of Dundee’s vibrant West End, this handsome ground floor apartment forms part of an elegant sandstone building and offers generous, light-filled accommodation in a truly enviable position. With the University just moments away via direct footpath access through the garden grounds, and the city centre, cafés, restaurants and rail links all within easy reach, this is a home that perfectly balances character and convenience.
The building itself has been refurbished in recent years and is beautifully maintained, setting the tone for what lies within. Inside, the accommodation is bright and well-proportioned, with a welcoming hallway leading through to an impressive open plan kitchen and living space. The lounge is centred around a striking bay window, drawing in natural light and creating an inviting setting for both relaxed evenings and entertaining. High ceilings and warm timber flooring enhance the sense of space, while the contemporary kitchen is neatly integrated, offering excellent storage and fitted appliances without compromising the room’s social feel.
There are three generous double bedrooms, each offering comfortable proportions. The principal bedroom enjoys a particularly peaceful outlook, while the additional rooms are equally well-sized and welcoming. A modern bathroom completes the layout, finished in neutral tones with a shower over bath.
Specification includes modern windows and gas central heating, and the apartment meets current letting legislative standards.
Externally, the shared garden grounds are well maintained and laid mainly to lawn, providing a welcome green retreat in the city, along with a practical clothes drying area. The apartment’s set-back position from Perth Road ensures a sense of privacy, while keeping everything the West End has to offer right on your doorstep.
EPC Rating: C
Brochures
Home Report- COUNCIL TAXA payment made to your local authority in order to pay for local services like schools, libraries, and refuse collection. The amount you pay depends on the value of the property.Read more about council Tax in our glossary page.
- Band: C
- PARKINGDetails of how and where vehicles can be parked, and any associated costs.Read more about parking in our glossary page.
- Ask agent
- GARDENA property has access to an outdoor space, which could be private or shared.
- Private garden
- ACCESSIBILITYHow a property has been adapted to meet the needs of vulnerable or disabled individuals.Read more about accessibility in our glossary page.
- Ask agent
Energy performance certificate - ask agent
21b Perth Road, Dundee, DD1 4HU
Add an important place to see how long it'd take to get there from our property listings.
__mins driving to your place
Get an instant, personalised result:
- Show sellers you’re serious
- Secure viewings faster with agents
- No impact on your credit score
Your mortgage
Notes
Staying secure when looking for property
Ensure you're up to date with our latest advice on how to avoid fraud or scams when looking for property online.
Visit our security centre to find out moreDisclaimer - Property reference e7537088-2d5c-4a67-94dd-6851b594f163. The information displayed about this property comprises a property advertisement. Rightmove.co.uk makes no warranty as to the accuracy or completeness of the advertisement or any linked or associated information, and Rightmove has no control over the content. This property advertisement does not constitute property particulars. The information is provided and maintained by Verdala, Dundee. Please contact the selling agent or developer directly to obtain any information which may be available under the terms of The Energy Performance of Buildings (Certificates and Inspections) (England and Wales) Regulations 2007 or the Home Report if in relation to a residential property in Scotland.
*This is the average speed from the provider with the fastest broadband package available at this postcode. The average speed displayed is based on the download speeds of at least 50% of customers at peak time (8pm to 10pm). Fibre/cable services at the postcode are subject to availability and may differ between properties within a postcode. Speeds can be affected by a range of technical and environmental factors. The speed at the property may be lower than that listed above. You can check the estimated speed and confirm availability to a property prior to purchasing on the broadband provider's website. Providers may increase charges. The information is provided and maintained by Decision Technologies Limited. **This is indicative only and based on a 2-person household with multiple devices and simultaneous usage. Broadband performance is affected by multiple factors including number of occupants and devices, simultaneous usage, router range etc. For more information speak to your broadband provider.
Map data ©OpenStreetMap contributors.






