Bayview, 16 Drumduan Road, Forres, IV36 1BS

- PROPERTY TYPE
Detached
- BEDROOMS
5
- BATHROOMS
2
- SIZE
Ask agent
- TENUREDescribes how you own a property. There are different types of tenure - freehold, leasehold, and commonhold.Read more about tenure in our glossary page.
Ask agent
Key features
- Fabulous Home in very desirable location
- Views towards Findhorn Bay
Description
The Historical Town of Forres provides a good selection of local and national retailers, schools, leisure facilities and award-winning parks all within walking distance.
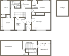
The property offers substantial accommodation across 2 floors and comprises: entrance vestibule, hallway, lounge, kitchen /diner, sunroom/bedroom 6, 3 further bedrooms and family bathroom on the ground floor. 2 further bedrooms and shower room on the 1st floor. Driveway, garage and timber shed for storage. Front & rear enclosed garden with lovely views of the surrounding fields. Further benefits include Gas central heating and uPVC double glazing.
An internal viewing is strongly recommended.
EPC Rating Band “C”
Entrance Vestibule – 4’11” (1.48m) x 4’1” (1.23m)
Entrance to the property is through a uPVC door with an obscure glazed panel insert and two side coordinating glass obscure glass windows that lead into the vestibule. LED downlighter in ceiling, coving, carpet to the floor and built-in cupboards which house the meters and the fuse box. Door with obscure glazed glass and matching side window leads into the hallway.
S Shaped Hallway – 13’5” (4.08m) x 5’0” (1.52m) extends to 11’0” (3.35m) x 8’3” (2.51m) x 6’9” (2.04m) x 3’9” (1.13m)
6 recessed LED downlighters to the ceiling, two smoke alarms, coving, carpet to the floor, three single power points and a large single radiator. Doors lead to the lounge, kitchen, sunroom/ bedroom 6, 3 double bedrooms and to the family bathroom. A staircase leads to the first-floor accommodation with an understairs cupboard, which provides further storage.
Lounge – 17’3” (5.26m) x 12’8” (3.86m) extends to 14’11” (4.55m) in the recess
Fabulous sized lounge with large uPVC double glazed window with vertical blinds, chrome curtain pole and hanging curtains which enjoys views towards Findhorn Bay. 2 three-bulb ceiling light fittings, coving to the ceiling and smoke alarm. There is a large single radiator, carpet to the floor, TV and various power points. There is a fireplace with an oak finished mantel and surround with a gas fire and tiled hearth and insert. A multi-panel glass door leads into the hallway.
Kitchen/Diner – 13’2” (4.01m) x 10’9” (3.27m) extends to 17’3” (5.26m) x 6’10” (2.07m)
Good sized kitchen providing a range of wall mounted cabinets with under unit lighting and base units with a roll top work surface which is finished with a mosaic ceramic tile splash back to the wall. Appliances include a freestanding gas cooker. Space for a dishwasher and fridge freezer. Stainless steel sink with chrome mixer tap and drainer. Recess halogen spotlights to the ceiling, heat detector, coving, double radiator, tile effect, laminate to the floor and area to breakfast bar. Various power points. There's a built-in cupboard for storage. It has shelving and some wall-mounted coat hooks with carpet to the floor and a hot water tank. uPVC double glazed window with hanging curtains that overlooks the rear aspect. Door leads to the utility room.
Utility room – 5’3” (1.59m) x 6’0” (1.83m)
Utility has a single base unit with a worktop and mosaic tiled splashback. Stainless steel sink with chrome mixer tap and drainer, under counter space for a washing machine and tumble dryer, Worcester single boiler located to the corner, drying airer, pendant light fitting, smoke alarm, carbon monoxide alarm, and tile effect laminate to the floor with recessed matting. Double glazed uPVC door with two obscure glass panel windows leads out to the garden.
Bedroom 3 – 10’11” (3.32m) x 9’11” (3.02m)
Double bedroom currently in use as an office has a panel ceiling light fitting, double radiator, various double power sockets, open reach fibre optic BT point, carpet to the floor, uPVC double-glazed window with vertical blinds and hanging curtains that looks to the front aspect. A built-in cupboard provides shelf and hanging storage.
Sunroom/ Bedroom 6 – 10’2” (3.1m) x 9’4” (2.84m)
The sunroom has a pendant light fitting, coved ceiling, carpet to the floor, large single radiator. TV and various power points, large uPVC double glazed sliding patio doors with curtain pelmet and hanging curtains that leads out to the rear garden.
Bedroom 1 – 13’10” (4.21m) x 12’0” (3.66m)
Large master double bedroom with LED downlights to the ceiling, coving, carpet to the floor, double radiator, various double power sockets and a uPVC double glazed window with vertical blinds and hanging curtains that overlooks the front aspect. There is a double wardrobe which is fronted by mirror sliding doors, this provides part shelf storage and a dressing table area, which also has a recess light and single power point. Further quadruple wall to wall wardrobes fronted by opaque and mirror sliding doors and this provides part shelf and hanging storage.
Bedroom 2 – 11’2” (3.4m) x 10’11” (3.32m)
Double bedroom with 4 recess LED downlights to the ceiling, plus a further four bulb ceiling light, coving, carpet to the floor, single radiator and various power points. Built-in double wardrobe fronted by mirror sliding doors, provides part shelf and hanging storage. uPVC double glazed window with hanging curtains overlooks the rear aspect.
Family Bathroom – 8’11” (2.72m) x 5’10” (1.77m) plus shower enclosure
The main bathroom has a low-level WC, a bath with chrome mixer tap and showering attachment, wall-mounted sink with chrome mixer tap, mid-height tiling to the walls. A walk-in shower enclosure with a shower tray and Electric MiraSport shower with retractable glass shower screen doors and full height tiling to the walls. Recess LED downlights to the ceiling, extractor fan and coving, single radiator, a wood effect vinyl to the floor, obscure uPVC window with roller blind and curtains to the rear aspect.
Staircase & Landing – 16’2” (4.93m) x 4’4” (1.31m)
A carpeted staircase with a wooden handrail that leads to the first-floor accommodation. There's a decorative wrought iron painted balustrade which continues up on the landing. The landing has a pendant light fitting, smoke alarm and carpet to the floor. Single power point, single radiator and large double-glazed Velux window to the front aspect.
Bedroom 4 – 11’6” (3.5m) x10’10” (3.3m)
Double bedroom with four LED lamp ceiling light fitting, carpet to the floor, single radiator, various power points, an area to built-in dressing table or desk with shelving, further two double wardrobes which are fronted by mirror sliding doors which provides shelf and hanging storage and a third cupboard gives access within the roof eaves. Double glazed Velux window with blind overlooks the rear aspect.
Shower room – 5’8” (1.72m) x 7’2” (2.18m)
Low level WC, a pedestal wash hand basin with chrome mixer tap. Tiled shelf with tiled splashback, providing extra storage space. Shower enclosure with Electric shower, which has a shower tray, tiled walls, extractor fan and a hanging curtain. Built-in cupboard with shelving. Wood effect vinyl to the floor, single radiator and Velux window with integrated blind to the rear aspect.
Bedroom 5 – 21’11” (6.68m) x 13’2” (4.01m)
Large double bedroom with two strip light fittings, two large single radiators, carpet to the floor, various double power points and two large, double-glazed Velux windows that overlook the rear aspect. Access to the eaves. A walk-in cupboard has an area to shelving and carpet to the floor with a double power socket, could be utilised as a small office space measuring 3’ 6” x 5’8”.
Front & Rear Garden
The front garden is retained by a small wall that encloses the garden. There is a large area to lawn, established shrubs and bushes. A stone chip pathway leads to a stepped access at the front of the property, where we also have some established shrubs around the frontage of the house. The stone chip pathway wraps around both sides of the house and to the left of the property there is an area to bin store and a small side gate leading to the back garden. The opposite side has a further timber secure gate leading to the rear of the property. The south facing back garden enjoys views of the surrounding fields and towards the Drumduan woodland. There is a large area to patio with a decorative stone design. This provides an outdoor seating area which is accessed from the utility and from the sunroom. There's a timber shed for storage. A retainer wall encloses the embankment giving a level area to grass and then a stone wall with an area to stone chips and established fruit trees and plants. Stepped access to the grass area and then further stepped access up to the rear retaining wall and fence. Outside tap, door to the garage, Timber gate to the driveway, and a further door to the workshop.
Workshop – 15’10” (4.82m) x 6’4” (1.92m)
The workshop has a concrete floor, breeze block walls with a timber frame, power and lighting. Wall mounted shelving for storage
Driveway
A stone chip driveway leads up to the garage and to the front of the property and provides ample off-road car parking for multiple vehicles.
Garage – 20’2” (6.15m) x 10’0” (3.05m)
Single garage with an up and over door to the front aspect and further service door on the side. The garage has breeze block walls and concrete floor with a profile sheet roofing, pendant light fitting, single power socket and area to workbench at the back end.
Note 1 –
All floor coverings, light fittings and blinds are included in the sale.
Council Tax Band “E”
Important Notice These particulars are for information and intended to give a fair overall description for the guidance of intending purchasers and do not constitute an Offer or part of a Contract. Prospective Purchasers and or/lessees should seek their own professional advice. All descriptions, dimension, areas and necessary permissions for use and occupation and other details are given in good faith and are believed to be correct, but any intending purchasers should not rely on them as statements or representations of fact but must satisfy themselves by inspection or otherwise as to correctness of each of them. All measurements are approximate.
The Agency holds no responsibility for any expenses incurred travelling to a property which is then Sold or Withdrawn from the Market
Notes of Interest - A Note of Interest should be put forward to the Agency at the earliest opportunity. A Note of Interest however does not obligate the Seller to set a Closing Date on their Property.
Further particulars may be obtained from the selling agents with whom offers should be lodged.
Offers All offers should be submitted in writing in normal Scottish Legal form to the selling agent.
FREE VALUATION We are pleased to offer a free and without obligation, valuation of your own property.
Brochures
16 Drumduan Road- COUNCIL TAXA payment made to your local authority in order to pay for local services like schools, libraries, and refuse collection. The amount you pay depends on the value of the property.Read more about council Tax in our glossary page.
- Ask agent
- PARKINGDetails of how and where vehicles can be parked, and any associated costs.Read more about parking in our glossary page.
- Yes
- GARDENA property has access to an outdoor space, which could be private or shared.
- Yes
- ACCESSIBILITYHow a property has been adapted to meet the needs of vulnerable or disabled individuals.Read more about accessibility in our glossary page.
- No wheelchair access
Energy performance certificate - ask agent
Bayview, 16 Drumduan Road, Forres, IV36 1BS
Add an important place to see how long it'd take to get there from our property listings.
__mins driving to your place
Get an instant, personalised result:
- Show sellers you’re serious
- Secure viewings faster with agents
- No impact on your credit score
Affordability
Notes
Staying secure when looking for property
Ensure you're up to date with our latest advice on how to avoid fraud or scams when looking for property online.
Visit our security centre to find out moreDisclaimer - Property reference GFV-31272254. The information displayed about this property comprises a property advertisement. Rightmove.co.uk makes no warranty as to the accuracy or completeness of the advertisement or any linked or associated information, and Rightmove has no control over the content. This property advertisement does not constitute property particulars. The information is provided and maintained by Grampian Property Centre, Forres. Please contact the selling agent or developer directly to obtain any information which may be available under the terms of The Energy Performance of Buildings (Certificates and Inspections) (England and Wales) Regulations 2007 or the Home Report if in relation to a residential property in Scotland.
*This is the average speed from the provider with the fastest broadband package available at this postcode. The average speed displayed is based on the download speeds of at least 50% of customers at peak time (8pm to 10pm). Fibre/cable services at the postcode are subject to availability and may differ between properties within a postcode. Speeds can be affected by a range of technical and environmental factors. The speed at the property may be lower than that listed above. You can check the estimated speed and confirm availability to a property prior to purchasing on the broadband provider's website. Providers may increase charges. The information is provided and maintained by Decision Technologies Limited. **This is indicative only and based on a 2-person household with multiple devices and simultaneous usage. Broadband performance is affected by multiple factors including number of occupants and devices, simultaneous usage, router range etc. For more information speak to your broadband provider.
Map data ©OpenStreetMap contributors.







