Robinson Road, Colliers Wood, SW17

- PROPERTY TYPE
Maisonette
- BEDROOMS
2
- BATHROOMS
1
- SIZE
Ask agent
Key features
- First Floor Maisonette
- Private Garden
- Two Bedrooms
- Brand New Kitchen
- Modern bathroom
- Loft storage
- Share of Freehold
- Chain Free
- Merton Council Tax - Band B
- EPC Rating C
Description
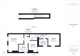
Accessed via its own front door, stairs lead to a welcoming first-floor landing connecting each room of the property. To the rear sits a generous principal bedroom overlooking the garden, providing a quiet and peaceful setting. A well-proportioned second bedroom offers flexibility for guests, a nursery or a home office. The property also benefits from a modern three-piece bathroom suite finished to a high standard.
The home features a brand-new kitchen, thoughtfully designed with contemporary finishes, modern appliances and ample storage, creating a stylish yet practical space for everyday living. To the front of the property, a bright and spacious reception room is filled with natural light, creating a welcoming space ideal for relaxing or entertaining.
A particular highlight of the property is the private rear garden, which is well maintained and easily manageable. This sun-filled outdoor space provides the perfect setting for summer entertaining, outdoor dining or simply enjoying a peaceful retreat away from the bustle of London life.
Robinson Road enjoys a convenient position within Colliers Wood, close to local amenities, green spaces and transport connections. Colliers Wood Underground Station (Northern Line) provides direct access into Central London, while the nearby Wandle Trail and historic Merton Abbey Mills offer excellent leisure options. The property is also well located for St George's Hospital and the retail and dining facilities at Colliers Wood shopping centre.
Offered chain free with share of Freehold.
Brochures
Sales Brochure - Rob- COUNCIL TAXA payment made to your local authority in order to pay for local services like schools, libraries, and refuse collection. The amount you pay depends on the value of the property.Read more about council Tax in our glossary page.
- Band: B
- PARKINGDetails of how and where vehicles can be parked, and any associated costs.Read more about parking in our glossary page.
- Ask agent
- GARDENA property has access to an outdoor space, which could be private or shared.
- Yes
- ACCESSIBILITYHow a property has been adapted to meet the needs of vulnerable or disabled individuals.Read more about accessibility in our glossary page.
- Ask agent
Robinson Road, Colliers Wood, SW17
Add an important place to see how long it'd take to get there from our property listings.
__mins driving to your place
Get an instant, personalised result:
- Show sellers you’re serious
- Secure viewings faster with agents
- No impact on your credit score


Your mortgage
Notes
Staying secure when looking for property
Ensure you're up to date with our latest advice on how to avoid fraud or scams when looking for property online.
Visit our security centre to find out moreDisclaimer - Property reference 60908. The information displayed about this property comprises a property advertisement. Rightmove.co.uk makes no warranty as to the accuracy or completeness of the advertisement or any linked or associated information, and Rightmove has no control over the content. This property advertisement does not constitute property particulars. The information is provided and maintained by Samuel Estates, Colliers Wood. Please contact the selling agent or developer directly to obtain any information which may be available under the terms of The Energy Performance of Buildings (Certificates and Inspections) (England and Wales) Regulations 2007 or the Home Report if in relation to a residential property in Scotland.
*This is the average speed from the provider with the fastest broadband package available at this postcode. The average speed displayed is based on the download speeds of at least 50% of customers at peak time (8pm to 10pm). Fibre/cable services at the postcode are subject to availability and may differ between properties within a postcode. Speeds can be affected by a range of technical and environmental factors. The speed at the property may be lower than that listed above. You can check the estimated speed and confirm availability to a property prior to purchasing on the broadband provider's website. Providers may increase charges. The information is provided and maintained by Decision Technologies Limited. **This is indicative only and based on a 2-person household with multiple devices and simultaneous usage. Broadband performance is affected by multiple factors including number of occupants and devices, simultaneous usage, router range etc. For more information speak to your broadband provider.
Map data ©OpenStreetMap contributors.




