
Barton Way, Dartmouth, TQ6 0GN

- PROPERTY TYPE
Retirement Property
- BEDROOMS
2
- SIZE
Ask developer
Key features
- Lovely, low maintenance retirement apartments, each with a balcony or patio
- Great location in this popular and pretty coastal town just two miles from Dartmouth Harbour with excellent transport links
- Stylish landscaped gardens for evening cocktails and lazy afternoons with friends
- Elegant communal lounge for parties, events and everyday socialising with friends and new neighbours
- Subsidised and sociable chef-run bistro with ever changing seasonal menus
- Manager onsite 24/7 for your peace of mind, plus the option of tailored domestic support and personal care should you need it
- Patio
- North facing
- 24 hour staffing
- Bistro
Description
This spectacular 2 bedroom apartment in Dartmouth, Devon is part of the Mewstone Place development from the award-winning McCarthy & Stone. A private retirement apartment, Apartment 6 is located on the ground floor, is low-maintenance and contains extra safety features. See the exclusive benefits and highlights this property has to offer in the development information.
This property is let unfurnished.
Room Dimensions
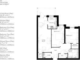
- Living Room - 25.14 SQM
- Kitchen - 5.67 SQM
- Bedroom One - 10.50 SQM
- Bedroom Two - 14.56 SQM
- Shower Room - 4.38 SQM
- WC - 2.2 SQM
- Patio - 6.88 SQM
- COUNCIL TAXA payment made to your local authority in order to pay for local services like schools, libraries, and refuse collection. The amount you pay depends on the value of the property.Read more about council Tax in our glossary page.
- Band: TBC
- PARKINGDetails of how and where vehicles can be parked, and any associated costs.Read more about parking in our glossary page.
- Ask developer
- GARDENA property has access to an outdoor space, which could be private or shared.
- Patio
- ACCESSIBILITYHow a property has been adapted to meet the needs of vulnerable or disabled individuals.Read more about accessibility in our glossary page.
- Ask developer
Energy performance certificate - ask developer
Barton Way, Dartmouth, TQ6 0GN
Add an important place to see how long it'd take to get there from our property listings.
__mins driving to your place
About McCarthy & Stone
Over 70s retirement property for sale, rent and Shared Ownership in Dartmouth, Devon
This Retirement Living PLUS development will offer one and two bedroom properties for sale in Dartmouth. All apartments will have either a balcony or patios on the ground floor. The retirement community will share luxurious communal facilities and services, like a bistro, to make life easier. The development is in a great location in this pretty coastal town with views over the countryside and amenities including supermarkets, Dartmouth Health and Wellbeing Centre and Dartmouth Leisure Centre on the doorstep. Close to the centre and just two miles from Dartmouth Harbour, it is well served by public transport.
Retirement Living with a big PLUS
Our properties for sale, rent and Shared Ownership in Dartmouth, Devon offer you the complete privacy of your own spacious apartment, but with a friendly community outside your front door – and assisted living services to support you too.
Independence combined with support
- There’s a friendly manager on-site 24/7
- An hour’s domestic support each week is included – but you can have more if you want it.
- Tailored personal care should you need it.
Apartments designed with you in mind
All these retirement homes are cleverly designed with smart yet stylish features, like easy turn taps, to make life easier now and in the future. Low maintenance, warm and elegant, with the latest security and safety features built in, most of our homeowners enjoy cheaper bills. Parking is available and well-behaved pets are welcome!
Local area
The charming coastal town of Dartmouth is a popular tourist destination with an idyllic location on the western bank of the River Dart estuary. Its historic streets are lined with a blend of cafes, art galleries, museums, boutiques and independent shops. It’s the perfect spot from which to explore the delightful towns, villages and world-class beaches along the south Devon coastline – including Salcombe, Bigbury, Hope Cove, Topsham, Totnes and Torbay – and picturesque Kingswear just across the water.
These lovely new properties for sale coming soon to Dartmouth are perfectly placed to make the most of many natural wonders including the wilds of Dartmoor National Park, Little Dartmouth, a National Trust nature reserve, and Slapton Ley Nature Reserve which contains the largest natural lake in south-west England. Entirely freshwater, Slapton Ley is separated from the sea by a narrow shingle strip and is a spectacular sight. Then there’s the stunning South West Coastal Path which has 35 scenic walks within 10 miles of Dartmouth. If beautiful beaches and breath-taking scenery weren’t enough, there are historic attractions too, including Dartmouth Castle, as well as several stately homes and gardens in the surrounding area.
The properties at this development are leasehold properties with a term of 999 years from and including 02/05/2025.
Notes
Staying secure when looking for property
Ensure you're up to date with our latest advice on how to avoid fraud or scams when looking for property online.
Visit our security centre to find out moreDisclaimer - Property reference 2_Apartment 6. The information displayed about this property comprises a property advertisement. Rightmove.co.uk makes no warranty as to the accuracy or completeness of the advertisement or any linked or associated information, and Rightmove has no control over the content. This property advertisement does not constitute property particulars. The information is provided and maintained by McCarthy & Stone. Please contact the selling agent or developer directly to obtain any information which may be available under the terms of The Energy Performance of Buildings (Certificates and Inspections) (England and Wales) Regulations 2007 or the Home Report if in relation to a residential property in Scotland.
*This is the average speed from the provider with the fastest broadband package available at this postcode. The average speed displayed is based on the download speeds of at least 50% of customers at peak time (8pm to 10pm). Fibre/cable services at the postcode are subject to availability and may differ between properties within a postcode. Speeds can be affected by a range of technical and environmental factors. The speed at the property may be lower than that listed above. You can check the estimated speed and confirm availability to a property prior to purchasing on the broadband provider's website. Providers may increase charges. The information is provided and maintained by Decision Technologies Limited. **This is indicative only and based on a 2-person household with multiple devices and simultaneous usage. Broadband performance is affected by multiple factors including number of occupants and devices, simultaneous usage, router range etc. For more information speak to your broadband provider.
Map data ©OpenStreetMap contributors.





