St. Pancras Way, London NW1

- PROPERTY TYPE
Flat
- BEDROOMS
2
- BATHROOMS
1
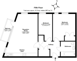
- SIZE
668 sq ft
62 sq m
Description
The flat features a spacious reception room, with rear balcony. With two well-proportioned bedrooms, and bathroom. Passenger lift and independent gas central heating.
This property couldn't be better located, just a 5-minute walk to Kings Cross/St Pancras multiple underground lines, Thames Link and National and International railways. and also next to Mornington Crescent and Camden.
This property is an excellent opportunity for anyone looking to invest in a modern flat in a prime London location. With its appealing features and contemporary finish.
Hallway - Storage cupboard, double door to Storage cupboard, door to:
Bathroom -
Storage cupboard.
Bedroom - 4.00m x 3.30m (13'1" x 10'10") - Two windows to rear, Storage cupboard, double door, door to:
Bedroom - 4.00m x 2.10m (13'1" x 6'11") - Window to rear.
Reception Room - 6.30m x 2.90m (20'8" x 9'6") - Window to rear, two windows to side. KITCHEN AREA 2.00m (6'7") x 2.00m (6'7"): door to:
Balcony - 3.22m x 1.10m (10'7" x 3'7") -
Brochures
St. Pancras Way, London NW1- COUNCIL TAXA payment made to your local authority in order to pay for local services like schools, libraries, and refuse collection. The amount you pay depends on the value of the property.Read more about council Tax in our glossary page.
- Band: F
- PARKINGDetails of how and where vehicles can be parked, and any associated costs.Read more about parking in our glossary page.
- Ask agent
- GARDENA property has access to an outdoor space, which could be private or shared.
- Ask agent
- ACCESSIBILITYHow a property has been adapted to meet the needs of vulnerable or disabled individuals.Read more about accessibility in our glossary page.
- Ask agent
St. Pancras Way, London NW1
Add an important place to see how long it'd take to get there from our property listings.
__mins driving to your place
Get an instant, personalised result:
- Show sellers you’re serious
- Secure viewings faster with agents
- No impact on your credit score



Your mortgage
Notes
Staying secure when looking for property
Ensure you're up to date with our latest advice on how to avoid fraud or scams when looking for property online.
Visit our security centre to find out moreDisclaimer - Property reference 34518471. The information displayed about this property comprises a property advertisement. Rightmove.co.uk makes no warranty as to the accuracy or completeness of the advertisement or any linked or associated information, and Rightmove has no control over the content. This property advertisement does not constitute property particulars. The information is provided and maintained by RHW Estates, Swiss Cottage. Please contact the selling agent or developer directly to obtain any information which may be available under the terms of The Energy Performance of Buildings (Certificates and Inspections) (England and Wales) Regulations 2007 or the Home Report if in relation to a residential property in Scotland.
*This is the average speed from the provider with the fastest broadband package available at this postcode. The average speed displayed is based on the download speeds of at least 50% of customers at peak time (8pm to 10pm). Fibre/cable services at the postcode are subject to availability and may differ between properties within a postcode. Speeds can be affected by a range of technical and environmental factors. The speed at the property may be lower than that listed above. You can check the estimated speed and confirm availability to a property prior to purchasing on the broadband provider's website. Providers may increase charges. The information is provided and maintained by Decision Technologies Limited. **This is indicative only and based on a 2-person household with multiple devices and simultaneous usage. Broadband performance is affected by multiple factors including number of occupants and devices, simultaneous usage, router range etc. For more information speak to your broadband provider.
Map data ©OpenStreetMap contributors.




