
Clifford Road, Brincliffe, Sheffield

- PROPERTY TYPE
Apartment
- BEDROOMS
1
- BATHROOMS
1
- SIZE
Ask agent
Key features
- Fabulous location
- Spacious one bedroom apartment
- Ground floor
- Fitted kitchen
- Gas central heated and double glazing
- White suite bathroom
- Double bedroom
- Laundry/storage outhouse
- No onward chain!
- Ample communal parking
Description
Positioned within an exclusive development of just nine homes on a highly regarded road in the tranquil, tree-lined neighbourhood of Brincliffe, this delightful one-bedroom ground floor apartment offers an ideal opportunity for first-time buyers, investors, or those looking for a convenient pied-à-terre close to the city.
The apartment features uPVC double glazing and gas central heating, ensuring comfort throughout the year. Its superb setting places you within easy reach of the bustling cafés, restaurants, and independent shops along popular Ecclesall Road, providing the perfect blend of calm residential living and vibrant urban amenities.
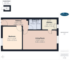
The accommodation includes a private ground floor entrance opening into a welcoming hallway, a bright and generously proportioned living/dining space, and a separate fitted kitchen. There is also a well-sized double bedroom and a bathroom with a white suite. An added bonus is the dedicated laundry room, complete with power and plumbing—currently accommodating a washing machine and offering flexibility for bike storage or additional household items.
Externally, the development boasts neatly kept communal gardens and off-road parking available on a first-come, first-served basis. With NO ONWARD CHAIN, this is a rare opportunity to secure a charming property in one of Sheffield’s most sought-after locations.
Brochures
Clifford Road, Brincliffe, SheffieldBrochure- COUNCIL TAXA payment made to your local authority in order to pay for local services like schools, libraries, and refuse collection. The amount you pay depends on the value of the property.Read more about council Tax in our glossary page.
- Band: A
- PARKINGDetails of how and where vehicles can be parked, and any associated costs.Read more about parking in our glossary page.
- Off street
- GARDENA property has access to an outdoor space, which could be private or shared.
- Ask agent
- ACCESSIBILITYHow a property has been adapted to meet the needs of vulnerable or disabled individuals.Read more about accessibility in our glossary page.
- Ask agent
Clifford Road, Brincliffe, Sheffield
Add an important place to see how long it'd take to get there from our property listings.
__mins driving to your place
Get an instant, personalised result:
- Show sellers you’re serious
- Secure viewings faster with agents
- No impact on your credit score
Your mortgage
Notes
Staying secure when looking for property
Ensure you're up to date with our latest advice on how to avoid fraud or scams when looking for property online.
Visit our security centre to find out moreDisclaimer - Property reference 34518965. The information displayed about this property comprises a property advertisement. Rightmove.co.uk makes no warranty as to the accuracy or completeness of the advertisement or any linked or associated information, and Rightmove has no control over the content. This property advertisement does not constitute property particulars. The information is provided and maintained by Saxton Mee, Sheffield. Please contact the selling agent or developer directly to obtain any information which may be available under the terms of The Energy Performance of Buildings (Certificates and Inspections) (England and Wales) Regulations 2007 or the Home Report if in relation to a residential property in Scotland.
*This is the average speed from the provider with the fastest broadband package available at this postcode. The average speed displayed is based on the download speeds of at least 50% of customers at peak time (8pm to 10pm). Fibre/cable services at the postcode are subject to availability and may differ between properties within a postcode. Speeds can be affected by a range of technical and environmental factors. The speed at the property may be lower than that listed above. You can check the estimated speed and confirm availability to a property prior to purchasing on the broadband provider's website. Providers may increase charges. The information is provided and maintained by Decision Technologies Limited. **This is indicative only and based on a 2-person household with multiple devices and simultaneous usage. Broadband performance is affected by multiple factors including number of occupants and devices, simultaneous usage, router range etc. For more information speak to your broadband provider.
Map data ©OpenStreetMap contributors.







