
1 Brighouse Park Rigg, Cramond, Edinburgh, EH4 6QU

- PROPERTY TYPE
Detached
- BEDROOMS
5
- BATHROOMS
3
- SIZE
2,902 sq ft
270 sq m
- TENUREDescribes how you own a property. There are different types of tenure - freehold, leasehold, and commonhold.Read more about tenure in our glossary page.
Freehold
Key features
- Unique and Elegant Family Home
- Excellent Condition and Highest Specification
- Private Front and South-Facing Rear Gardens
- Double Garage
- Large Private Gated Driveway
- 3 Public Rooms
- 5 Bedrooms
- 3 Bathrooms (Including 2 En Suite)
Description
1 Brighouse Park Rigg is a unique and elegant 5 bedroom detached family home, designed with the highest level of care, quality, and precision by the prestigious AMA Homes.
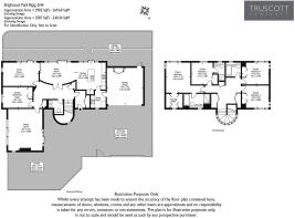
The exceptional accommodation comprises, on the ground floor - entrance vestibule with built-in cupboard off; contemporary reception hall with cloakroom and built-in cupboard off; spacious sitting room with sliding doors leading to the private front garden; double bedroom 5/study with built-in wardrobe; South-facing dual aspect family room with garden and dining room access through sliding glass doors; and sun-soaked South-facing dining room with sliding glass doors to the rear garden, and which opens to the modern kitchen, offering a comfortable yet stylish space for indoor/outdoor living. With direct access to the garden, the fully appointed kitchen offers excellent storage options, sleek worktops, and a central kitchen island, creating the perfect setting for family life and casual entertaining. There is also a separate utility room with direct access to the double garage.
A striking curved staircase illuminated by clerestory windows leads to the first floor, which comprises - bright and generous landing with 3 built-in cupboards off; South-facing dual aspect master bedroom featuring an impressive dressing room with built-in wardrobes and a luxurious en suite bathroom fitted with whirlpool bath, shower, double wash hand basin, and wc; South facing double bedroom 2 with built-in wardrobe and modern en suite shower room with wash hand basin and wc; dual aspect double bedroom 3 with built-in wardrobe; South-facing dual aspect double bedroom 4 with built-in wardrobe; and family bathroom with wash hand basin and wc.
Garden
This property benefits from a spacious and enclosed private front garden, offering excellent kerb appeal and creating a welcoming first impression. It is mainly laid to lawn and is directly accessible through the sitting room, making it an attractive and versatile outdoor space.
To the rear, a beautifully landscaped and fully enclosed South-facing garden offers excellent privacy, making it ideal for family life and outdoor entertaining. Its manicured lawn is bordered to one side by a long patio, providing ample space for 'al fresco' dining and lounging. Mature trees and plantings border the outer edges, offering shade and colour while creating a welcoming and peaceful space.
Parking
There is a generous, gated driveway with ample parking space for at least 4 cars and a double garage with electric up-and-over door, EV charging, and clothes airer.
Location
Cramond is a picturesque neighbourhood to the North West of Edinburgh, beloved for its coastal village charm and easy access to the City Centre. Nestled between the River Almond, Cramond Beach, and Silverknowes Park, the area benefits from an abundance of greenery and historical landmarks while also boasting a range of local amenities, including local cafes, eateries, shops, and medical practices.
School Catchments
The property is in the catchment area for Cramond Primary School, St Andrew's Fox Covert RC Primary, The Royal High Secondary School, and St Augustine's RC High School.
Services
The property benefits from gas central heating, double glazing, as well as underfloor heating throughout.
Fixtures and Fittings
The kitchen blinds and integrated appliances (such as washing machine and dishwasher) are included in the sale price. The fridges, freezer, and tumble dryer are excluded from the sale. The curtains may be available by separate negotiation.
Viewing
Initially via the 360 Virtual Tour, physical viewings encouraged by appointment only with Truscott Property.
Council Tax Band H
Tenure - Freehold
- COUNCIL TAXA payment made to your local authority in order to pay for local services like schools, libraries, and refuse collection. The amount you pay depends on the value of the property.Read more about council Tax in our glossary page.
- Band: H
- PARKINGDetails of how and where vehicles can be parked, and any associated costs.Read more about parking in our glossary page.
- Garage,Covered,Driveway,Off street,Gated,Private,Allocated
- GARDENA property has access to an outdoor space, which could be private or shared.
- Front garden,Patio,Private garden,Enclosed garden,Rear garden,Terrace,Back garden
- ACCESSIBILITYHow a property has been adapted to meet the needs of vulnerable or disabled individuals.Read more about accessibility in our glossary page.
- Ask agent
1 Brighouse Park Rigg, Cramond, Edinburgh, EH4 6QU
Add an important place to see how long it'd take to get there from our property listings.
__mins driving to your place
Affordability
Get an instant, personalised result:
- Show sellers you’re serious
- Secure viewings faster with agents
- No impact on your credit score
Notes
Staying secure when looking for property
Ensure you're up to date with our latest advice on how to avoid fraud or scams when looking for property online.
Visit our security centre to find out moreDisclaimer - Property reference L815442. The information displayed about this property comprises a property advertisement. Rightmove.co.uk makes no warranty as to the accuracy or completeness of the advertisement or any linked or associated information, and Rightmove has no control over the content. This property advertisement does not constitute property particulars. The information is provided and maintained by Truscott Property, Edinburgh. Please contact the selling agent or developer directly to obtain any information which may be available under the terms of The Energy Performance of Buildings (Certificates and Inspections) (England and Wales) Regulations 2007 or the Home Report if in relation to a residential property in Scotland.
*This is the average speed from the provider with the fastest broadband package available at this postcode. The average speed displayed is based on the download speeds of at least 50% of customers at peak time (8pm to 10pm). Fibre/cable services at the postcode are subject to availability and may differ between properties within a postcode. Speeds can be affected by a range of technical and environmental factors. The speed at the property may be lower than that listed above. You can check the estimated speed and confirm availability to a property prior to purchasing on the broadband provider's website. Providers may increase charges. The information is provided and maintained by Decision Technologies Limited. **This is indicative only and based on a 2-person household with multiple devices and simultaneous usage. Broadband performance is affected by multiple factors including number of occupants and devices, simultaneous usage, router range etc. For more information speak to your broadband provider.
Map data ©OpenStreetMap contributors.





