
Charles Lodge, Evesham, Worcestershire

Letting details
- Let available date:
- Ask agent
- Deposit:
- £2,538A deposit provides security for a landlord against damage, or unpaid rent by a tenant.Read more about deposit in our glossary page.
- Min. Tenancy:
- Ask agent How long the landlord offers to let the property for.Read more about tenancy length in our glossary page.
- Let type:
- Long term
- Furnish type:
- Unfurnished
- Council Tax:
- Ask agent
- PROPERTY TYPE
Retirement Property
- BEDROOMS
1
- BATHROOMS
1
- SIZE
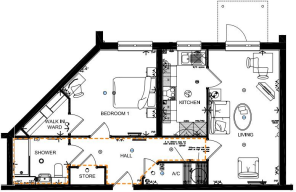
614 sq ft
57 sq m
Key features
- ** Service Charges are included in the rent **
- ** No Ground Rent to pay **
- Modern fitted kitchen with integrated appliances
- Owners’ Lounge & coffee bar with regular social events
- Lodge Manager available 5 days a week
- 24 hour Careline system for safety and security
- Lift to all floors
- Beautifully landscaped gardens
- Owners’ private car park
- Guest Suite available for your friends and family to stay in
Description
Rent a BRAND NEW Churchill Living retirement apartment in Evesham! Built by the award-winning Churchill Living, this stunning one bedroom BRAND NEW apartment is available to rent, on a long term basis, in this sought after development Charles Lodge.
Priced at £2,200, call today to book your appointment to view.
Photographs, images, and computer-generated visuals are indicative only and are potentially not of the specific property. They are intended to provide a general impression of the development or style and should not be relied upon as statements of fact.
Charles Lodge, a new collection of 49 one and two bedroom apartments is perfectly nestled in the heart of Evesham on Bewick Court, off Swan Lane. Located in the heart of Worcestershire, no visit to Evesham is complete without seeing The Heritage Centre at The Almonry.
There is also Abbey Park with its’ Victorian bandstand offering music on Sunday afternoons from June to September. There are many ways to relax in Evesham: from tranquil river trips to live music and comedy or enjoying one of the local festivals, there really is something for everyone in this charming, bustling town.
Conveniently, there is a Waitrose less than half a mile away from Charles Lodge as well as a Morrisons and Lidl, with Iceland just around the corner, on the High Street. For book lovers, Evesham Library is very closeby, just behind Swan Lane and for cinema buffs there is the art deco Regal Cinema perfectly located less than half a mile away. There are several banks, a Post Office, a Boots, an opticians, dentists, hairdressers and beauticians all very close to Charles Lodge. Abbey Medical Practice and Demontfort Medical Centres are both less than half a mile away so everything really is right on your doorstep.
Charles Lodge has been designed with safety and security at the forefront. The apartment has an emergency Careline system installed, monitored by the onsite Lodge Manager during the day and 24 hours, 365 days a year by the Careline team. Careline integrated intruder alarm, secure video entry system and sophisticated fire and smoke detection systems throughout both the apartment and communal areas provide unrivalled peace of mind.
Charles Lodge is managed by the award-winning Churchill Estates Management, working closely with Churchill Living and Churchill Sales & Lettings to maintain the highest standards of maintenance and service for every lodge and owner.
Charles Lodge requires at least one apartment Owner to be over the age of 60 with any second Owner over the age of 55.
OVER 60's RETIREMENT APARTMENT
LONG TERM TENANCY
Please check regarding Pets with Churchill Estates Management. Any consents given in relation to pets are subject to the terms of the lease and any further rules and regulations made by Churchill Estates Management.
Service charges include:
Careline system, buildings insurance, water and sewerage rates, communal cleaning, utilities and maintenance, garden maintenance, lift maintenance, lodge manager and a contribution to the contingency fund.
Security Deposit:
A security deposit equal to 5 week’s rent will be payable at the start of the tenancy. This covers damages or defaults on the part of the tenant during the tenancy. It will be reimbursed at the end of the tenancy subject to the details of the agreement and the findings of the inventory check out report.
Holding Deposit:
A holding deposit equal to 1 week’s rent will be payable on acceptance of an application. This will be held and used towards the first month’s rent.
Please note: The holding deposit will be withheld if the applicant(s) or any relevant person (including any guarantor(s)) withdraw from the tenancy, fail a Right-to-Rent check, provide materially significant false or misleading information, or fail to sign their tenancy agreement (and/or Deed of Guarantee) within 30 days (or other deadline as mutually agreed in writing).
Brochures
Charles Lodge, Evesham, WorcestershireBrochure- COUNCIL TAXA payment made to your local authority in order to pay for local services like schools, libraries, and refuse collection. The amount you pay depends on the value of the property.Read more about council Tax in our glossary page.
- Ask agent
- PARKINGDetails of how and where vehicles can be parked, and any associated costs.Read more about parking in our glossary page.
- Yes
- GARDENA property has access to an outdoor space, which could be private or shared.
- Yes
- ACCESSIBILITYHow a property has been adapted to meet the needs of vulnerable or disabled individuals.Read more about accessibility in our glossary page.
- Ask agent
Energy performance certificate - ask agent
Charles Lodge, Evesham, Worcestershire
Add an important place to see how long it'd take to get there from our property listings.
__mins driving to your place

Notes
Staying secure when looking for property
Ensure you're up to date with our latest advice on how to avoid fraud or scams when looking for property online.
Visit our security centre to find out moreDisclaimer - Property reference 34420358. The information displayed about this property comprises a property advertisement. Rightmove.co.uk makes no warranty as to the accuracy or completeness of the advertisement or any linked or associated information, and Rightmove has no control over the content. This property advertisement does not constitute property particulars. The information is provided and maintained by Churchill Sales & Lettings, Ringwood. Please contact the selling agent or developer directly to obtain any information which may be available under the terms of The Energy Performance of Buildings (Certificates and Inspections) (England and Wales) Regulations 2007 or the Home Report if in relation to a residential property in Scotland.
*This is the average speed from the provider with the fastest broadband package available at this postcode. The average speed displayed is based on the download speeds of at least 50% of customers at peak time (8pm to 10pm). Fibre/cable services at the postcode are subject to availability and may differ between properties within a postcode. Speeds can be affected by a range of technical and environmental factors. The speed at the property may be lower than that listed above. You can check the estimated speed and confirm availability to a property prior to purchasing on the broadband provider's website. Providers may increase charges. The information is provided and maintained by Decision Technologies Limited. **This is indicative only and based on a 2-person household with multiple devices and simultaneous usage. Broadband performance is affected by multiple factors including number of occupants and devices, simultaneous usage, router range etc. For more information speak to your broadband provider.
Map data ©OpenStreetMap contributors.





