
Lansdowne Road, Eccles, M30

- PROPERTY TYPE
Semi-Detached
- BEDROOMS
4
- BATHROOMS
3
- SIZE
Ask agent
- TENUREDescribes how you own a property. There are different types of tenure - freehold, leasehold, and commonhold.Read more about tenure in our glossary page.
Freehold
Key features
- Premier Monton Village Location: Perfectly positioned just steps away from independent bars, restaurants, boutiques, and the scenic Bridgewater Canal.
- Stunning Open-Plan Living: A spectacular "central hub" comprising a large kitchen, diner, and reception room—ideal for modern family life and entertaining.
- High-End Chef’s Kitchen: Featuring premium Neff integrated appliances (including double oven, microwave, hob, fridge/freezer, and dishwasher) and elegant quartz worktops.
- Seamless Indoor-Outdoor Flow: High-quality bi-folding doors open from the living area directly onto the rear garden.
- Luxury Flooring: The entire ground floor is finished with sophisticated herringbone Amtico flooring.
- Four Versatile Bedrooms: Arranged over two floors, including a master suite and a second bedroom with its own en-suite.
- Flexible Second Floor: The fourth bedroom is currently a bespoke walk-in wardrobe, easily converted back to a bedroom or home office if required.
Description
Nestled in the heart of the vibrant Monton Village, Lansdowne Road offers a lifestyle of unparalleled convenience and contemporary luxury. This sought-after location puts a sophisticated social scene right on your doorstep. From artisan coffee houses and independent boutiques to trendy wine bars and acclaimed restaurants, everything you need is just a short stroll away. For those who love the outdoors, the scenic Bridgewater Canal and the leafy paths of Duke’s Drive provide the perfect backdrop for weekend walks or morning runs, while excellent transport links ensure Manchester City Centre is always within easy reach.
The home itself is a testament to thoughtful design and high-end finishes. Upon entry, a welcoming hallway leads into a cozy lounge, providing a peaceful retreat before transitioning into the spectacular open-plan kitchen, diner, and reception room. As the undisputed "central hub" of the home, this expansive space is bathed in natural light thanks to the impressive bi-folding doors that lead to the garden. The kitchen is a chef’s dream, boasting premium Neff integrated appliances—including an all-in-one microwave/double oven, hob, fridge/freezer, and dishwasher—all beautifully complemented by sleek quartz worktops. The entire ground floor is unified by the timeless elegance of herringbone Amtico flooring, and the layout is completed by a practical utility room and a modern guest W.C.
The upper floors continue the theme of spacious, high-quality living. On the first floor, you will find two well-proportioned bedrooms, one of which features its own private en-suite, alongside a stylish family bathroom fitted with quality fixtures. Ascending to the second floor, the master suite offers a true sanctuary with its own en-suite shower room. Adjacent to this is a fourth bedroom, currently utilized as a bespoke walk-in wardrobe, though it can easily be converted back to a bedroom or a quiet home office depending on your needs.
Externally, the property is as functional as it is attractive. The front provides essential off-road parking with EV Charing point—a rare commodity in such a central location—while the rear features a private, low-maintenance garden designed for dining and relaxation without the upkeep and also benefits from hot and cold tap. Lansdowne Road is more than just a house; it is a sophisticated modern home in one of the region's most exciting postcodes.
EPC Rating: B
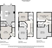
Lounge
4.08m x 3.61m
Kitchen Diner
6.69m x 4.64m
Bedroom 1
3.62m x 3.67m
Bedroom 2/Walk in robes
2.96m x 4.7m
Bedroom 3
3.87m x 2.67m
Bedroom 4
2.93m x 3m
Bathroom
2.45m x 1.54m
- COUNCIL TAXA payment made to your local authority in order to pay for local services like schools, libraries, and refuse collection. The amount you pay depends on the value of the property.Read more about council Tax in our glossary page.
- Band: D
- PARKINGDetails of how and where vehicles can be parked, and any associated costs.Read more about parking in our glossary page.
- Yes
- GARDENA property has access to an outdoor space, which could be private or shared.
- Yes
- ACCESSIBILITYHow a property has been adapted to meet the needs of vulnerable or disabled individuals.Read more about accessibility in our glossary page.
- Ask agent
Energy performance certificate - ask agent
Lansdowne Road, Eccles, M30
Add an important place to see how long it'd take to get there from our property listings.
__mins driving to your place
Get an instant, personalised result:
- Show sellers you’re serious
- Secure viewings faster with agents
- No impact on your credit score
Your mortgage
Notes
Staying secure when looking for property
Ensure you're up to date with our latest advice on how to avoid fraud or scams when looking for property online.
Visit our security centre to find out moreDisclaimer - Property reference a1ea0640-229f-4ce3-a894-cd23d1dcbedb. The information displayed about this property comprises a property advertisement. Rightmove.co.uk makes no warranty as to the accuracy or completeness of the advertisement or any linked or associated information, and Rightmove has no control over the content. This property advertisement does not constitute property particulars. The information is provided and maintained by Irlam Estates, Irlam. Please contact the selling agent or developer directly to obtain any information which may be available under the terms of The Energy Performance of Buildings (Certificates and Inspections) (England and Wales) Regulations 2007 or the Home Report if in relation to a residential property in Scotland.
*This is the average speed from the provider with the fastest broadband package available at this postcode. The average speed displayed is based on the download speeds of at least 50% of customers at peak time (8pm to 10pm). Fibre/cable services at the postcode are subject to availability and may differ between properties within a postcode. Speeds can be affected by a range of technical and environmental factors. The speed at the property may be lower than that listed above. You can check the estimated speed and confirm availability to a property prior to purchasing on the broadband provider's website. Providers may increase charges. The information is provided and maintained by Decision Technologies Limited. **This is indicative only and based on a 2-person household with multiple devices and simultaneous usage. Broadband performance is affected by multiple factors including number of occupants and devices, simultaneous usage, router range etc. For more information speak to your broadband provider.
Map data ©OpenStreetMap contributors.








