
Monks Road, Earls Colne, Colchester, Essex, CO6

- PROPERTY TYPE
Detached
- BEDROOMS
3
- BATHROOMS
1
- SIZE
Ask agent
- TENUREDescribes how you own a property. There are different types of tenure - freehold, leasehold, and commonhold.Read more about tenure in our glossary page.
Freehold
Description
A deceptively spacious and well-presented family home, built in the 1970s and offered to the market with no onward chain.
The property features an inviting entrance hallway leading to a bright sitting room, separate dining room, well-appointed kitchen, and convenient cloakroom on the ground floor.
Upstairs, the first floor offers three generous double bedrooms and a family bathroom, providing comfortable accommodation for a growing family.
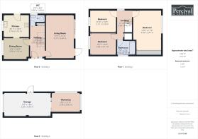
ENTRANCE HALLWAY -
LIVING ROOM - 17'7 x 11'3
DINING ROOM - 10'4 x 8'6
KITCHEN -
CLOAKROOM -
BEDROOM ONE - 16' x 11'4
BEDROOM TWO - 10'5 x 8'10
BEDROOM THREE - 10'4 x 8'7
BATHROOM -
Outside, the beautifully maintained rear garden is mainly laid to lawn and complemented by attractive flower beds and a patio area ideal for outdoor entertaining. The garden also benefits from a garden shed and a greenhouse.
Further advantages include a single garage with power and lighting, along with a useful workshop to the rear. A driveway to the side of the property provides off-road parking for up to three vehicles.
AGENTS NOTE – We are advised by the Executors that probate has been granted.
SERVICES - we are advised that the mains services of gas, electricity, water and drainage are connected.
WHAT3WORDS – complies.gradually.bunks
Broadband Availability – Ultrafast broadband available with speeds up to 1000 Mbps (details obtained from Ofcom Mobile and Broadband Checker) – March 2026.
Mobile Coverage - It is understood that there is limited mobile signal with EE, Three, Vodaphone and O2 (details obtained from Ofcom Mobile and Broadband Checker) – March 2026.
Local Authority – Braintree District Council
TENURE- Freehold
These particulars are intended as a general guide only. They are based on information provided by the vendor and have not been verified by Percival & Company. No statement in these particulars should be relied upon as a representation of fact. All descriptions, dimensions, references to condition, and necessary permissions for use and occupation are given in good faith, but should be independently verified by prospective purchasers. We strongly recommend that you consult with a qualified professional before proceeding with any offer or purchase.
All measurements are approximate and for guidance purposes only. Neither Percival & Company nor its employees make any representation or warranty in relation to the property, and no liability is accepted for any inaccuracies or omissions.
Brochures
Particulars- COUNCIL TAXA payment made to your local authority in order to pay for local services like schools, libraries, and refuse collection. The amount you pay depends on the value of the property.Read more about council Tax in our glossary page.
- Band: D
- PARKINGDetails of how and where vehicles can be parked, and any associated costs.Read more about parking in our glossary page.
- Garage,Driveway
- GARDENA property has access to an outdoor space, which could be private or shared.
- Yes
- ACCESSIBILITYHow a property has been adapted to meet the needs of vulnerable or disabled individuals.Read more about accessibility in our glossary page.
- Ask agent
Energy performance certificate - ask agent
Monks Road, Earls Colne, Colchester, Essex, CO6
Add an important place to see how long it'd take to get there from our property listings.
__mins driving to your place
Get an instant, personalised result:
- Show sellers you’re serious
- Secure viewings faster with agents
- No impact on your credit score
Affordability
Notes
Staying secure when looking for property
Ensure you're up to date with our latest advice on how to avoid fraud or scams when looking for property online.
Visit our security centre to find out moreDisclaimer - Property reference FPE260036. The information displayed about this property comprises a property advertisement. Rightmove.co.uk makes no warranty as to the accuracy or completeness of the advertisement or any linked or associated information, and Rightmove has no control over the content. This property advertisement does not constitute property particulars. The information is provided and maintained by Percival & Company, Earls Colne. Please contact the selling agent or developer directly to obtain any information which may be available under the terms of The Energy Performance of Buildings (Certificates and Inspections) (England and Wales) Regulations 2007 or the Home Report if in relation to a residential property in Scotland.
*This is the average speed from the provider with the fastest broadband package available at this postcode. The average speed displayed is based on the download speeds of at least 50% of customers at peak time (8pm to 10pm). Fibre/cable services at the postcode are subject to availability and may differ between properties within a postcode. Speeds can be affected by a range of technical and environmental factors. The speed at the property may be lower than that listed above. You can check the estimated speed and confirm availability to a property prior to purchasing on the broadband provider's website. Providers may increase charges. The information is provided and maintained by Decision Technologies Limited. **This is indicative only and based on a 2-person household with multiple devices and simultaneous usage. Broadband performance is affected by multiple factors including number of occupants and devices, simultaneous usage, router range etc. For more information speak to your broadband provider.
Map data ©OpenStreetMap contributors.








