High Street, Silverdale, ST5
- PROPERTY TYPE
Land
- SIZE
40,418 sq ft
3,755 sq m
Key features
- PURCHASE PRICE IS SUBJECT TO 20% VAT
- Newcastle Borough Council Planning Reference: 25/00387/FUL
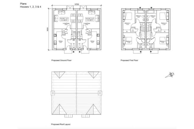
- Planning approved for 8 residential dwellings (mix of 2- & 3-bed units)
- Allocated parking for all homes
- Sought-after location close to Newcastle-under-Lyme and Keele University
- Established residential setting with strong local demand
- Accessible site with good transport links and local amenities nearby
- Ideal for developers, investors or joint-venture partners
Description
An exciting opportunity to acquire a prime residential development site with full planning consent for the construction of eight new dwellings comprising a mix of two- and three-bedroom homes, each benefitting from allocated parking.
Situated in a well-established residential area close to the amenities of Silverdale and Newcastle-under-Lyme town centre, the site offers excellent connectivity to Keele University, major road networks including the A34 and M6, and a range of local schools, shops and transport links.
The approved scheme has been thoughtfully designed to complement the surrounding area, offering a balanced mix of homes ideal for local buyers, first-time purchasers and downsizers alike. With strong demand for quality, energy-efficient housing across the region, this development represents a compelling opportunity for small to medium-sized builders or investors seeking a ready-to-go site with planning secured.
Don’t miss your chance to secure this sought-after opportunity.
House 1
2 Bedrooms GIA - 80m2 Garden - 67m2
House 2
2 Bedrooms GIA - 80m2 Garden 54m2
House 3
2 Bedrooms GIA - 80m2 Garden - 47m2
House 4
2 Bedrooms GIA - 80m2 Garden 57m2
House 5
3 Bedrooms GIA - 87m2 Garden 67m2
House 6
3 Bedrooms GIA - 87m2 Garden 78m2
House 7
3 Bedrooms GIA - 87m2 Garden 74m2
House 8
3 Bedrooms GIA - 87m2 Garden 76m2
High Street, Silverdale, ST5
NEAREST STATIONS
Distances are straight line measurements from the centre of the postcode- Longport Station3.1 miles
- Stoke-on-Trent Station4.0 miles
- Kidsgrove Station5.1 miles
Notes
Disclaimer - Property reference 8054cbb4-47fc-4406-a524-ecd5511bc69f. The information displayed about this property comprises a property advertisement. Rightmove.co.uk makes no warranty as to the accuracy or completeness of the advertisement or any linked or associated information, and Rightmove has no control over the content. This property advertisement does not constitute property particulars. The information is provided and maintained by Heywoods, New Homes. Please contact the selling agent or developer directly to obtain any information which may be available under the terms of The Energy Performance of Buildings (Certificates and Inspections) (England and Wales) Regulations 2007 or the Home Report if in relation to a residential property in Scotland.
Map data ©OpenStreetMap contributors.




