
The Bridport, Frenches Green, Upton, Poole

- PROPERTY TYPE
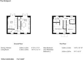
End of Terrace
- BEDROOMS
2
- BATHROOMS
2
- SIZE
Ask agent
- TENUREDescribes how you own a property. There are different types of tenure - freehold, leasehold, and commonhold.Read more about tenure in our glossary page.
Freehold
Key features
- The Bridport
- Two Bedrooms
- A Collection of 2,3 & 4 Bedroom Homes
- High Specification Interiors
- En-Suite
- Beautifully Finished
- Close To Upton Country Park
- Reserve Off Plan!
- Thoughtfully Designed Layouts
- Anticipated Completion - July 2026
Description
Frenches Green - Step into luxurious, modern living at this exquisite home, featuring a high specification kitchen adorned with integrated appliances. The open plan living/dining room offers a spacious retreat. The Bridport also boasts two bedrooms, with en suite to the main bedroom. Welcome to a residence where sophistication meets comfort seamlessly.
Frenches Green offers a thoughtfully designed collection of 2, 3 & 4 bedroom homes alongside a selection of 2 bedroom apartments in the desirable setting of Upton. This impressive range of homes showcases Wyatt Homes’ renowned craftsmanship, combining elegant architecture with spacious, contemporary interiors.
Nestled in the sought after community of Upton, Frenches Green offers a blend of refined suburban living and natural serenity. Just moments from Dorset’s rolling countryside and the shores of Poole Harbour, this development sits in a well established area with leafy streets, mature green spaces and a strong sense of place. You’ll find shops, cafés and local amenities close by, alongside beautiful outdoor retreats such as Upton Country Park, with its acres of woodland, formal gardens, shoreline and winding walking trails. Frenches Green offers the perfect balance of peace and vibrancy: a lifestyle of understated elegance where the sea, countryside and town all feel within easy reach.
Frenches Green is ideally placed for effortless travel. Major roads such as the A35 and A350 provide swift links to Poole, Bournemouth, and the wider South West region, making both work and leisure journeys easy. Public transport is also well served: Hamworthy railway station is nearby offering a direct link to London Waterloo in less than two and a half hours.
For more information, please contact our Upton Office. Secure your preferred plot early and customise your interiors when you reserve off plan.
Note: Internal images displayed may not correspond to the actual house type. They are for representation purposes only.
Brochures
The Bridport, Frenches Green, Upton, Poole- COUNCIL TAXA payment made to your local authority in order to pay for local services like schools, libraries, and refuse collection. The amount you pay depends on the value of the property.Read more about council Tax in our glossary page.
- Ask agent
- PARKINGDetails of how and where vehicles can be parked, and any associated costs.Read more about parking in our glossary page.
- Yes
- GARDENA property has access to an outdoor space, which could be private or shared.
- Yes
- ACCESSIBILITYHow a property has been adapted to meet the needs of vulnerable or disabled individuals.Read more about accessibility in our glossary page.
- Ask agent
Energy performance certificate - ask agent
The Bridport, Frenches Green, Upton, Poole
Add an important place to see how long it'd take to get there from our property listings.
__mins driving to your place
Get an instant, personalised result:
- Show sellers you’re serious
- Secure viewings faster with agents
- No impact on your credit score



Affordability
Notes
Staying secure when looking for property
Ensure you're up to date with our latest advice on how to avoid fraud or scams when looking for property online.
Visit our security centre to find out moreDisclaimer - Property reference 34521502. The information displayed about this property comprises a property advertisement. Rightmove.co.uk makes no warranty as to the accuracy or completeness of the advertisement or any linked or associated information, and Rightmove has no control over the content. This property advertisement does not constitute property particulars. The information is provided and maintained by Greys Estate Agents, Upton. Please contact the selling agent or developer directly to obtain any information which may be available under the terms of The Energy Performance of Buildings (Certificates and Inspections) (England and Wales) Regulations 2007 or the Home Report if in relation to a residential property in Scotland.
*This is the average speed from the provider with the fastest broadband package available at this postcode. The average speed displayed is based on the download speeds of at least 50% of customers at peak time (8pm to 10pm). Fibre/cable services at the postcode are subject to availability and may differ between properties within a postcode. Speeds can be affected by a range of technical and environmental factors. The speed at the property may be lower than that listed above. You can check the estimated speed and confirm availability to a property prior to purchasing on the broadband provider's website. Providers may increase charges. The information is provided and maintained by Decision Technologies Limited. **This is indicative only and based on a 2-person household with multiple devices and simultaneous usage. Broadband performance is affected by multiple factors including number of occupants and devices, simultaneous usage, router range etc. For more information speak to your broadband provider.
Map data ©OpenStreetMap contributors.






