
Hilton Crescent, Hockley, SS5

- PROPERTY TYPE
Semi-Detached
- BEDROOMS
3
- BATHROOMS
3
- SIZE
Ask agent
- TENUREDescribes how you own a property. There are different types of tenure - freehold, leasehold, and commonhold.Read more about tenure in our glossary page.
Freehold
Description
The property immediately impresses with its attractive façade and two allocated parking spaces positioned directly to the side of the property, while also enjoying a pleasant outlook across open greenery and nearby fields where horses can often be seen, giving the home a more open and tranquil setting than many modern developments.
Stepping inside, the home is presented in a fresh and modern style, creating a bright and welcoming feel throughout. The ground floor features a spacious living room that offers the perfect setting for both relaxing and entertaining, while the contemporary kitchen provides ample cupboard space and generous work surfaces, making it ideal for day-to-day family life.
Upstairs, the accommodation continues to impress with a particularly spacious principal bedroom, offering far more room than typically found in similar modern homes and benefitting from its own private en-suite shower room. Two additional bedrooms provide versatile space for family, guests or a home office, all complemented by a well-appointed family bathroom.
Outside, the property enjoys a beautifully landscaped rear garden, designed to be both attractive and low maintenance, offering the perfect space for outdoor seating, entertaining or relaxing during warmer months.
Located within the sought-after High Elms estate, residents benefit from a well-designed modern development while remaining close to everything Hullbridge village has to offer, including local shops, riverside walks and popular pubs.
A fantastic opportunity to secure a modern home built in 2021, offering generous space, countryside surroundings and village living.
Tenure: Freehold
Council Tax Band: D
EPC Rating: B
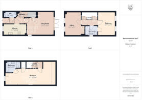
Room Measurements
Lounge/ Diner- 13'2 x 15'3
Bedroom 1- 9'1 x 28'4
Bedroom 2- 13'1 x 9'7
Bedroom 3/ Office- 13'1 x 9'1
Kitchen- 6'1 x 12'8
WC- 3'0 x 6'7
En suite- 6'2x 7'7
Main Bathroom- 5'6 x 6'11
Interior
The home offers a bright and well-presented interior designed with modern living in mind. The ground floor provides comfortable living space with a generous reception room, perfect for everyday relaxation, while the stylish kitchen offers plenty of cupboard space and work surfaces, creating a practical and sociable environment for cooking and dining.
On the first floor, the standout feature is the impressive principal bedroom, offering excellent proportions and its own en-suite shower room. Two additional bedrooms provide versatile accommodation for family, guests or a home office, complemented by a contemporary family bathroom.
Exterior
Externally, the property benefits from two parking spaces positioned directly to the side of the house, providing convenient off-street parking. The home also enjoys a pleasant open outlook across nearby fields and greenery, where horses can often be seen, creating a more peaceful setting than typically found on modern developments.
To the rear, the landscaped garden has been thoughtfully designed to provide an attractive yet low-maintenance outdoor space, ideal for relaxing, outdoor dining or entertaining during the warmer months.
Location
High Elms is a modern and highly regarded development located within the popular riverside village of Hullbridge. Positioned with open views across fields and greenery to the front, where horses can often be seen, the property enjoys a more peaceful outlook while still being part of a well-connected community.
Hullbridge offers a selection of local shops, cafés and well-regarded schools, along with scenic walks along the River Crouch and popular spots such as The Anchor, a well-loved riverside pub. A regular bus route provides access to Rayleigh, where there is a further range of shops, amenities and a Greater Anglia rail service reaching London Liverpool Street in approximately 44 minutes.
School Catchment
Primary: Riverside Primary School
Secondary: The Sweyne Park School
- COUNCIL TAXA payment made to your local authority in order to pay for local services like schools, libraries, and refuse collection. The amount you pay depends on the value of the property.Read more about council Tax in our glossary page.
- Band: D
- PARKINGDetails of how and where vehicles can be parked, and any associated costs.Read more about parking in our glossary page.
- On street,Allocated
- GARDENA property has access to an outdoor space, which could be private or shared.
- Yes
- ACCESSIBILITYHow a property has been adapted to meet the needs of vulnerable or disabled individuals.Read more about accessibility in our glossary page.
- Ask agent
Hilton Crescent, Hockley, SS5
Add an important place to see how long it'd take to get there from our property listings.
__mins driving to your place
Get an instant, personalised result:
- Show sellers you’re serious
- Secure viewings faster with agents
- No impact on your credit score
Your mortgage
Notes
Staying secure when looking for property
Ensure you're up to date with our latest advice on how to avoid fraud or scams when looking for property online.
Visit our security centre to find out moreDisclaimer - Property reference RX750064. The information displayed about this property comprises a property advertisement. Rightmove.co.uk makes no warranty as to the accuracy or completeness of the advertisement or any linked or associated information, and Rightmove has no control over the content. This property advertisement does not constitute property particulars. The information is provided and maintained by Gilbert & Rose, Leigh-on-sea. Please contact the selling agent or developer directly to obtain any information which may be available under the terms of The Energy Performance of Buildings (Certificates and Inspections) (England and Wales) Regulations 2007 or the Home Report if in relation to a residential property in Scotland.
*This is the average speed from the provider with the fastest broadband package available at this postcode. The average speed displayed is based on the download speeds of at least 50% of customers at peak time (8pm to 10pm). Fibre/cable services at the postcode are subject to availability and may differ between properties within a postcode. Speeds can be affected by a range of technical and environmental factors. The speed at the property may be lower than that listed above. You can check the estimated speed and confirm availability to a property prior to purchasing on the broadband provider's website. Providers may increase charges. The information is provided and maintained by Decision Technologies Limited. **This is indicative only and based on a 2-person household with multiple devices and simultaneous usage. Broadband performance is affected by multiple factors including number of occupants and devices, simultaneous usage, router range etc. For more information speak to your broadband provider.
Map data ©OpenStreetMap contributors.






