
Barking Wharf Square, Barking, London IG11

Letting details
- Let available date:
- 10/04/2026
- Deposit:
- £0A deposit provides security for a landlord against damage, or unpaid rent by a tenant.Read more about deposit in our glossary page.
- Min. Tenancy:
- 12 months How long the landlord offers to let the property for.Read more about tenancy length in our glossary page.
- Let type:
- Long term
- Furnish type:
- Unfurnished
- Council Tax:
- Ask agent
This property is Built For Renters.
- PROPERTY TYPE
Flat
- BEDROOMS
1
- BATHROOMS
2
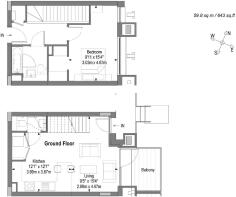
- SIZE
642 sq ft
60 sq m
Key features
- Professionally managed by Greystar
- Dedicated property manager and Onsite team
- Co-working space
- Fully equipped Gym
- Private screening room
- Resident Kitchen & Dining Space
- Roof terrace
- Zero deposit option available
- Ground Floor
Description
Make the most of a range of resident-only spaces: work from home in the co-working lounge, get moving in the gym, enjoy film nights in the screening room, or meet neighbours in the residents' dining space. The roof terrace offers the perfect spot to unwind, and being pet-friendly means your furry friends are welcome too.
Live Local, Travel Fast:
Momento is perfectly placed, with Barking Station just an 11-minute walk away. Reach Canary Wharf in under 25 minutes, the City in around 25 minutes, and explore local shops, cafés, and riverside paths close to home.
Momento Barking - Designed Around You:
At Momento in Barking, every detail is considered-modern homes, useful amenities, and a community that makes city life feel easier.
*Images and floorplans used are for illustrative purposes only. Individual apartment sizes, features, furniture and layouts may vary.
- COUNCIL TAXA payment made to your local authority in order to pay for local services like schools, libraries, and refuse collection. The amount you pay depends on the value of the property.Read more about council Tax in our glossary page.
- Band: C
- PARKINGDetails of how and where vehicles can be parked, and any associated costs.Read more about parking in our glossary page.
- Ask agent
- GARDENA property has access to an outdoor space, which could be private or shared.
- Ask agent
- ACCESSIBILITYHow a property has been adapted to meet the needs of vulnerable or disabled individuals.Read more about accessibility in our glossary page.
- Ask agent
Energy performance certificate - ask agent
On-site perks of living at this Built for Renters development
Additional costs may apply for some services – please check the full property description above.
Find out what residents think about this development
Barking Wharf Square, Barking, London IG11
Add an important place to see how long it'd take to get there from our property listings.
__mins driving to your place
Notes
See how residents rate this development
Write a reviewExperience
4.5
Value
4.3
Location
4.2
Facilities
4.3
Management
4.3
Design
4.6
Showing 5 most recent reviews
How we verify reviews
Reviews marked with a green tick show tenants who's residency we have been able to verify. Those that could not be confirmed are marked 'unverified'
- Momento Barking Wharf, IG11
Verified resident
HomeViews has verified the reviewer as a resident of this development.
Feb 2026
5Please tell us about the good and bad aspects of living in your local area:
I’d highly recommend Momento Barking as a built-to-rent option in East London. The local area has a good range of shops, supermarkets and services on Barking High Street and nearby — from Vicarage Field Shopping Centre and big-name chains to independent cafés, restaurants, bars and markets, so everyday errands and socialising are very convenient. There are also pleasant open spaces and parks, including Barking Park and riverside walks along the River Roding, which are lovely for exercise or relaxing outdoors.
How has the building management responded to any problems or issues you have raised:
Building and property management have consistently been responsive and professional, with maintenance requests handled efficiently and clear, timely communication throughout. Mimi at the front desk is always welcoming and smiling she genuinely seems to love what she does, and as a resident, her warmth and positive energy really make a difference to the overall experience of living here.
Please share one thing (or more) which you wish you had known before you moved in:
One thing you don’t always get from a typical viewing is how much the community and management team influence the day-to-day experience. The building feels much more welcoming once you’re actually living here, the staff are approachable, maintenance is handled efficiently, and the communal spaces are genuinely used by residents rather than just being “show pieces.” For new neighbours, I’d recommend making the most of the facilities early on (especially the gym and co-working spaces) and introducing yourself to the team they’re very helpful if you ever need support. Also, if you commute during peak hours, give yourself a little extra time as the station can get busy. Overall, it’s a convenient and well-managed place to live once you settle in.
- Momento Barking Wharf, IG11
Verified resident
HomeViews has verified the reviewer as a resident of this development.
Feb 2026
5Please tell us about the good and bad aspects of living in your local area:
Living in my local area is overall very enjoyable. There’s a good range of local shops, cafés, restaurants and bars, from independent stores to well-known chains, which makes everyday errands and socialising very convenient. There are also pleasant open spaces and parks nearby that are ideal for walks, exercise, and relaxing outdoors. Transport links are excellent, with multiple bus routes and good Underground access, making it easy to travel to other parts of the city. At peak times some services can be busy, but travel is generally reliable. Living on my street is comfortable. Parking is usually available, although it can be busier in the evenings. Bin collections are regular and well managed, and while there can be some traffic noise at times, it doesn’t significantly impact daily life. Overall, it’s a convenient and well-connected area to live.
How has the building management responded to any problems or issues you have raised:
Building management have responded very well to any problems or issues I have raised. Communication has always been clear and professional, and any concerns have been acknowledged promptly. Maintenance requests are handled efficiently, with updates provided throughout the process. In particular, Mimi from the management office has been extremely helpful, approachable and proactive in resolving issues, which has made the overall experience very reassuring.
Please share one thing (or more) which you wish you had known before you moved in:
One thing I wish I had known before moving in is how popular the building is, as some facilities and parking can be busier at peak times. I also would have liked to know more about the building’s processes and points of contact early on, although the management team were very helpful in explaining everything once I moved in. Overall, it’s been a positive experience and easy to settle in.
- Momento Barking Wharf, IG11
Verified resident
HomeViews has verified the reviewer as a resident of this development.
Feb 2026
5Please tell us about the good and bad aspects of living in your local area:
The area is nice and clean really love living here I have no compliants staff are really friendly. And maintenance is on site
How has the building management responded to any problems or issues you have raised:
Big massive thank you to Mimi who is always smiling and a pleasure to talk to
Please share one thing (or more) which you wish you had known before you moved in:
Love it. Really nice can’t fault it everyone should live here
- Momento Barking Wharf, IG11
Verified resident
HomeViews has verified the reviewer as a resident of this development.
Feb 2026
4Please tell us about the good and bad aspects of living in your local area:
Major supermarkets and convenience stores nearby, which makes daily shopping really easy. The area is also close to lovely green spaces like Barking Park and the riverside walks, perfect for getting outdoors. Barking Station is only a short walk away The neighborhood feels safe and welcoming, with a diverse and vibrant community. The street itself is generally quiet, with very little noise or disturbance. Overall, it’s a really convenient and pleasant place to live
How has the building management responded to any problems or issues you have raised:
I recently moved in and haven’t experienced any problems. A special shout out to Mimi. She has been incredibly friendly, responsive, and professional from the very beginning. She made the entire process smooth, straightforward, and completely stress‑free. It’s rare to come across someone so supportive and attentive.
Please share one thing (or more) which you wish you had known before you moved in:
RENZ box is an excellent system that keeps deliveries safe and secure, and ensures parcels arrive smoothly whether you’re at home or away.
- Momento Barking Wharf, IG11
Verified resident
HomeViews has verified the reviewer as a resident of this development.
Jan 2026
Reviewer was offered an incentive for an honest review, regardless of rating
5Please tell us about the good and bad aspects of living in your local area:
In my area the people living there are more friendly. I live in momento house the workers in the estate are very helpful. Jake works with good heart. 5 star for him and increase in his wages because he is very good work in our estate.
How has the building management responded to any problems or issues you have raised:
Very good although delay somethings but trying they best
Please share one thing (or more) which you wish you had known before you moved in:
Im very happy living in my building .but im not happy with the increase in rent every year. The landlord should try and be fair also understand that things are hard cost of living .however wish us all well.
Reviewer was offered an incentive for an honest review, regardless of rating
Staying secure when looking for property
Ensure you're up to date with our latest advice on how to avoid fraud or scams when looking for property online.
Visit our security centre to find out moreDisclaimer - Property reference MEZ24-10-03-12-pm. The information displayed about this property comprises a property advertisement. Rightmove.co.uk makes no warranty as to the accuracy or completeness of the advertisement or any linked or associated information, and Rightmove has no control over the content. This property advertisement does not constitute property particulars. The information is provided and maintained by Greystar, Momento Barking. Please contact the selling agent or developer directly to obtain any information which may be available under the terms of The Energy Performance of Buildings (Certificates and Inspections) (England and Wales) Regulations 2007 or the Home Report if in relation to a residential property in Scotland.
*This is the average speed from the provider with the fastest broadband package available at this postcode. The average speed displayed is based on the download speeds of at least 50% of customers at peak time (8pm to 10pm). Fibre/cable services at the postcode are subject to availability and may differ between properties within a postcode. Speeds can be affected by a range of technical and environmental factors. The speed at the property may be lower than that listed above. You can check the estimated speed and confirm availability to a property prior to purchasing on the broadband provider's website. Providers may increase charges. The information is provided and maintained by Decision Technologies Limited. **This is indicative only and based on a 2-person household with multiple devices and simultaneous usage. Broadband performance is affected by multiple factors including number of occupants and devices, simultaneous usage, router range etc. For more information speak to your broadband provider.
Map data ©OpenStreetMap contributors.





