
Selham Close, Chichester, PO19

- PROPERTY TYPE
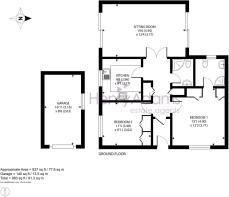
Ground Flat
- BEDROOMS
2
- BATHROOMS
2
- SIZE
837 sq ft
78 sq m
Key features
- Ground floor apartment
- Own private entrance
- Dual aspect sitting room
- Two double bedrooms
- Two shower rooms (one en-suite)
- Private garden
- Garage
- Use of tennis court and indoor swimming pool
Description
A ground floor residence with a private garden situated on the Marchwood Estate, Summersdale.
Set within the prestigious and tranquil Marchwood Estate in the highly desirable Summersdale area, just north of Chichester’s historic city centre, this ground floor apartment combines refined living with exceptional lifestyle amenities. The spacious and beautifully proportioned interior is introduced via a welcoming entrance hall, leading to a generous sitting/dining room bathed in natural light and enhanced by double-aspect patio doors that open onto two delightful outdoor spaces: a secluded courtyard garden and a charming, sunlit private garden. A well-appointed kitchen fitted with appliances and ample cabinetry, complements the living space perfectly. Accommodation includes two generously sized double bedrooms, with the principal suite featuring a stylish en-suite bathroom. A contemporary shower room completes the home.
Externally, the apartment boasts a serene, sun-drenched private garden ideal for al fresco dining and quiet enjoyment. A brick-built garage, accessible directly from the garden and the driveway, offers excellent storage or secure parking, accompanied by a private driveway. To the front, a manicured lawn and elegant pathway provide a gracious approach to this peaceful and well-connected residence.
Surrounded by beautifully landscaped communal grounds with far-reaching views towards the South Downs, residents enjoy exclusive access to a private indoor heated swimming pool and a communal tennis court, offering a truly enviable way of life.
Lease - 87 years remaining
Estate Charge - £551
Chichester District Council - 25/26 Tax Band D £2,337.06 EPC-C
Directions - From Chichester proceed north along the Broyle Road (A286) passing the Festival Theatre. After passing Roussillon Park take the third turning on the right into The Drive and follow the road round. Turn left into Marchwood and then second right into Selham Close and number 10 its towards the end on the right. what3words -ports.types.funds
Parking - Garage
Brochures
Property Brochure- COUNCIL TAXA payment made to your local authority in order to pay for local services like schools, libraries, and refuse collection. The amount you pay depends on the value of the property.Read more about council Tax in our glossary page.
- Band: D
- PARKINGDetails of how and where vehicles can be parked, and any associated costs.Read more about parking in our glossary page.
- Garage
- GARDENA property has access to an outdoor space, which could be private or shared.
- Private garden
- ACCESSIBILITYHow a property has been adapted to meet the needs of vulnerable or disabled individuals.Read more about accessibility in our glossary page.
- Ask agent
Energy performance certificate - ask agent
Selham Close, Chichester, PO19
Add an important place to see how long it'd take to get there from our property listings.
__mins driving to your place
Get an instant, personalised result:
- Show sellers you’re serious
- Secure viewings faster with agents
- No impact on your credit score
Your mortgage
Notes
Staying secure when looking for property
Ensure you're up to date with our latest advice on how to avoid fraud or scams when looking for property online.
Visit our security centre to find out moreDisclaimer - Property reference f1371599-5794-4a7b-b714-c07d308a23fa. The information displayed about this property comprises a property advertisement. Rightmove.co.uk makes no warranty as to the accuracy or completeness of the advertisement or any linked or associated information, and Rightmove has no control over the content. This property advertisement does not constitute property particulars. The information is provided and maintained by Henry Adams, Chichester. Please contact the selling agent or developer directly to obtain any information which may be available under the terms of The Energy Performance of Buildings (Certificates and Inspections) (England and Wales) Regulations 2007 or the Home Report if in relation to a residential property in Scotland.
*This is the average speed from the provider with the fastest broadband package available at this postcode. The average speed displayed is based on the download speeds of at least 50% of customers at peak time (8pm to 10pm). Fibre/cable services at the postcode are subject to availability and may differ between properties within a postcode. Speeds can be affected by a range of technical and environmental factors. The speed at the property may be lower than that listed above. You can check the estimated speed and confirm availability to a property prior to purchasing on the broadband provider's website. Providers may increase charges. The information is provided and maintained by Decision Technologies Limited. **This is indicative only and based on a 2-person household with multiple devices and simultaneous usage. Broadband performance is affected by multiple factors including number of occupants and devices, simultaneous usage, router range etc. For more information speak to your broadband provider.
Map data ©OpenStreetMap contributors.








