
Marsham Road, Brampton, Norfolk

Letting details
- Let available date:
- Now
- Deposit:
- £1,550A deposit provides security for a landlord against damage, or unpaid rent by a tenant.Read more about deposit in our glossary page.
- Min. Tenancy:
- 6 months How long the landlord offers to let the property for.Read more about tenancy length in our glossary page.
- Let type:
- Long term
- Furnish type:
- Unfurnished
- Council Tax:
- Ask agent
- PROPERTY TYPE
House
- BEDROOMS
5
- BATHROOMS
2
- SIZE
Ask agent
Key features
- 4 Double Bedrooms
- 2 Bathrooms
- Garage
- Original Features
- Rural Location
- Oil central heating
Description
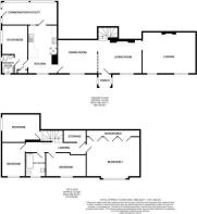
Living room (Ground Floor)
8.60m ( 28'3'') x 4.20m ( 13'10'')
Very impressive 28ft main living room with feature inglenook fireplace with wood burner, separate dining area, front aspect windows provide much natural light, stairs to first floor, radiator.
Sitting Room (Ground Floor)
5.40m ( 17'9'') x 4.20m ( 13'10'')
Separate formal sitting room with feature fireplace, further original features include exposed beams, front aspect windows, radiator, TV point.
Kitchen (Ground Floor)
5.10m ( 16'9'') x 3.20m ( 10'6'')
Superb kitchen with ample storage and work surface. Appliances include an electric cooker. Spot lighting, breakfast bar, double aspect windows, door to utility room.
Cellar Room (Ground Floor)
4.20m ( 13'10'') x 3.30m ( 10'10'')
Original lower ground floor cellar, this room also makes an ideal study.
Garage & Parking
Double garage with twin up & over doors, side door to garden. Ample private off street brick weave parking area in front of the garage.
Garden
Delightful walled private garden, mainly laid to lawn with patio area.
Bedroom 1 (First Floor)
5.50m ( 18'1'') x 4.40m ( 14'6'')
Very large 18ft master bedroom, front aspect bay window provides much natural light and superb rural views. Radiator.
Bedroom 2 (First Floor)
4.20m ( 13'10'') x 3.40m ( 11'2'')
Second double bedroom, side aspect window, radiator. Some limited head height in this room.
Bedroom 3 (First Floor)
Third double bedroom, front aspect window, radiator.
Bedroom 4 (First Floor)
Double bedroom, front aspect window, radiator.
Main Bathroom (First Floor)
Modern white suite comprising bath with shower over, WC and wash basin. Chrome heated towel rail, inset spot lighting, frosted window.
Utility Room (Ground Floor)
5.60m ( 18'5'') x 2.30m ( 7'7'')
Large utility room, additional work surface, space and plumbing for appliances, tiled floor, large windows providing a good view over the garden.
Bedroom 5 (Ground Floor)
4.40m ( 14'6'') x 3.30m ( 10'10'')
Ground floor double bedroom, built in wardrobes, side aspect window. Radiator, door to en-suite shower room.
Bedroom 5 en-suite (Ground Floor)
White suite comprising double sized shower cubicle, WC and wash basin. Heated towel rail, frosted window.
Agents Notes
The tenants may still be in residence so these details and photos are only an indication of the property and there could be some requirement for remedial work before the start of a new tenancy.
Agents Notes
There may be Furniture/furnishings along with white goods in the property when viewing that are not included in the tenancy . Please contact the office for further details.
Agents Notes
Due to high demands, there may be multiple viewings at the same time and cannot guarantee a solo viewing at any one time.
Brochures
Property Brochure- COUNCIL TAXA payment made to your local authority in order to pay for local services like schools, libraries, and refuse collection. The amount you pay depends on the value of the property.Read more about council Tax in our glossary page.
- Band: E
- PARKINGDetails of how and where vehicles can be parked, and any associated costs.Read more about parking in our glossary page.
- No disabled parking,Not allocated,No permit
- GARDENA property has access to an outdoor space, which could be private or shared.
- Yes
- ACCESSIBILITYHow a property has been adapted to meet the needs of vulnerable or disabled individuals.Read more about accessibility in our glossary page.
- Ask agent
Marsham Road, Brampton, Norfolk
Add an important place to see how long it'd take to get there from our property listings.
__mins driving to your place
Notes
Staying secure when looking for property
Ensure you're up to date with our latest advice on how to avoid fraud or scams when looking for property online.
Visit our security centre to find out moreDisclaimer - Property reference 6845. The information displayed about this property comprises a property advertisement. Rightmove.co.uk makes no warranty as to the accuracy or completeness of the advertisement or any linked or associated information, and Rightmove has no control over the content. This property advertisement does not constitute property particulars. The information is provided and maintained by Gilson Bailey, Norwich. Please contact the selling agent or developer directly to obtain any information which may be available under the terms of The Energy Performance of Buildings (Certificates and Inspections) (England and Wales) Regulations 2007 or the Home Report if in relation to a residential property in Scotland.
*This is the average speed from the provider with the fastest broadband package available at this postcode. The average speed displayed is based on the download speeds of at least 50% of customers at peak time (8pm to 10pm). Fibre/cable services at the postcode are subject to availability and may differ between properties within a postcode. Speeds can be affected by a range of technical and environmental factors. The speed at the property may be lower than that listed above. You can check the estimated speed and confirm availability to a property prior to purchasing on the broadband provider's website. Providers may increase charges. The information is provided and maintained by Decision Technologies Limited. **This is indicative only and based on a 2-person household with multiple devices and simultaneous usage. Broadband performance is affected by multiple factors including number of occupants and devices, simultaneous usage, router range etc. For more information speak to your broadband provider.
Map data ©OpenStreetMap contributors.







