
Podimore, Yeovil, BA22
- PROPERTY TYPE
Plot
- BEDROOMS
4
- BATHROOMS
2
- SIZE
Ask agent
Key features
- Building Plot With Planning Permission Granted
- Detached Four Bedroom Family Home
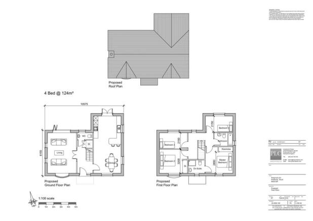
- 124 sqm / 1,334 sqft
- Double Aspect Living Room & Generous Kitchen/Diner
- WC, Family Bathroom & En Suite Shower Room
- Private Garden & Parking
- Planning Ref - 25/00678/FUL. (Somerset Council)
Description
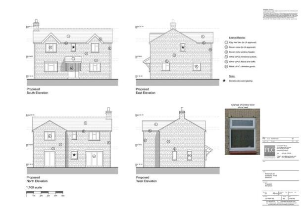
An excellent opportunity to acquire a building plot located adjacent to The Podimore Inn in the village of Podimore, Somerset, with full planning permission granted for the construction of a four bedroom detached dwelling extending to approximately 124 sq m (1,334 sq ft).
The approved accommodation will provide well-proportioned living space including a large kitchen/dining room, double aspect living room, and cloakroom/WC on the ground floor. The first floor will comprise four bedrooms, including a principal bedroom with en-suite, together with a family bathroom.
Externally, the property will benefit from a private garden and allocated parking. Prospective purchasers should note that VAT is applicable to the purchase.
There is a Community Infrastructure Levy (CIL) payment of £6,901.64 and a phosphate mitigation balance of £19,550 payable. Biodiversity Net Gain (BNG) is to be provided on site.
Planning permission has been granted by Somerset Council under reference 25/00678/FUL.
Further information, including planning documents and site details, is available upon request.
Podimore, Yeovil, BA22
NEAREST STATIONS
Distances are straight line measurements from the centre of the postcode- Yeovil Pen Mill Station5.6 miles

Notes
Disclaimer - Property reference 30080452. The information displayed about this property comprises a property advertisement. Rightmove.co.uk makes no warranty as to the accuracy or completeness of the advertisement or any linked or associated information, and Rightmove has no control over the content. This property advertisement does not constitute property particulars. The information is provided and maintained by Michaels Property Consultants Ltd, Halstead. Please contact the selling agent or developer directly to obtain any information which may be available under the terms of The Energy Performance of Buildings (Certificates and Inspections) (England and Wales) Regulations 2007 or the Home Report if in relation to a residential property in Scotland.
Map data ©OpenStreetMap contributors.





