
Malvern Road, Billingham, TS23 2PF

- PROPERTY TYPE
Semi-Detached
- BEDROOMS
2
- BATHROOMS
1
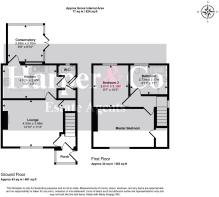
- SIZE
824 sq ft
77 sq m
- TENUREDescribes how you own a property. There are different types of tenure - freehold, leasehold, and commonhold.Read more about tenure in our glossary page.
Freehold
Key features
- Advantage Of No Onward Chain & Vacant Possession
- Generous Corner Plot Position With Wrap Around Gardns
- Spacious Lounge With Feature Fireplace & Storage Cupboard
- Kitchen To The Rear Which Is Accessible From The Side Porch
- Good Sized Conservatory Overlooking The Rear Garden
- Ground Floor W.C, Also Potential For A Ground Floor Bathroom
- Two Well Proportioned Double Bedrooms With Fitted Storage
- Large Family Bathroom/Wet Room With Four Piece White Suite
- Enclosed Wrap Around Garden – Private And Not Overlooked
- Side Driveway Providing Off Road Parking & Garage Storage Space
Description
Full Description - Upon Arrival, The Property Benefits From A Welcoming Front Porch Leading To The Main Living Room.
The Bright And Spacious Lounge Features A Charming Fireplace Creating A Warm And Comfortable Living Space. The Property Also Benefits From A Fitted Kitchen With Breakfast Bar, Providing Both Storage And Practical Workspace.
The Rear Of The Property Is Conservatory Overlooking The Garden, Offering Flexible Living Space Ideal As A Dining Room, Sitting Room Or Even A Home Office.
A Rear Porch Area Provides Additional Storage And Gives Access To A Convenient Ground Floor Cloakroom WC.
To The First Floor, The Property Offers Two Well Proportioned Double Bedrooms, Both Benefiting From Fitted Storage, Alongside a Very Spacious Family Bathroom Fitted With A Four Piece White Suite Including Bath & Walk-In Shower.
Externally, The Property Continues To Impress With A Generous Wrap Around Garden, Which Is Fully Enclosed, Private And Not Overlooked — Perfect For Relaxing Or Entertaining.
A Side Driveway Provides Off Road Parking And Leads To A Garage Offering Additional Storage Space.
Having Been Well Maintained Throughout, This Fantastic Home Offers Excellent Potential In A Desirable Location.
Location - Situated In A Popular Residential Area Of Billingham, This Property Enjoys A Quiet Setting Close To A Range Of Local Amenities. Local Shops, Supermarkets And Everyday Essentials Are Approximately 0.5 Miles Away (Around A 10 Minute Walk).
Billingham Town Centre Is Around 1 Mile Away (Approximately A 5 Minute Drive), Offering A Variety Of Shops, Cafés And Services. Billingham Train Station Is Also Nearby At Around 1.2 Miles (About A 5 Minute Drive), Providing Rail Links Across The Region.
The Property Benefits From Good Transport Links, With Easy Access To The A19, Making Travel To Stockton, Middlesbrough And Surrounding Areas Straightforward. Overall, This Is A Convenient And Well-Connected Residential Location.
Note - Please Find The Attached Brochure With Material Information For Buyers.
Disclaimer - Although Issued In Good Faith, These Particulars Are Not Factual Representations And Are Not A Part Of Any Offer Or Contract. Prospective Buyers Should Independently Verify The Matters Mentioned In These Particulars. There Is No Authority For Harper & Co Estate Agents Limited Or Any Of Its Employees To Make Any Representations Or Warranties About This Property.
While We Try To Be As Accurate As Possible With Our Sales Particulars, They Are Only A General Overview Of The Property. If There Is Anything In Particular That Is Important To You, Please Contact The Office And We Will Be Happy To Check The Situation For You, Especially If You Are Considering Traveling A Significant Distance To View The Property. The Measurements Provided Are Only For Guidance, Thus They Must Be Regarded As Inaccurate. Please Be Aware That Harper & Co Have Not Tested Any Of The Services, Appliances, Or Equipment In This Property; As A Result, We Advise Prospective Buyers To Commission Their Own Surveys Or Service Reports Before Submitting A Final Offer To Purchase. Money Laundering Regulations: In Order To Avoid Any Delays In Finalising The Sale, Intending Buyers Will Be Required To Provide Identification Documentation At A Later Time. Please Cooperate With Us In This Process.
Money Laundering Notice - To Comply With Legal Requirements, Buyers Will Need To Provide ID Documents During The Sale Process. We Appreciate Your Cooperation.
Brochures
Malvern Road, Billingham, TS23 2PFEPC- COUNCIL TAXA payment made to your local authority in order to pay for local services like schools, libraries, and refuse collection. The amount you pay depends on the value of the property.Read more about council Tax in our glossary page.
- Band: A
- PARKINGDetails of how and where vehicles can be parked, and any associated costs.Read more about parking in our glossary page.
- Yes
- GARDENA property has access to an outdoor space, which could be private or shared.
- Yes
- ACCESSIBILITYHow a property has been adapted to meet the needs of vulnerable or disabled individuals.Read more about accessibility in our glossary page.
- Ask agent
Malvern Road, Billingham, TS23 2PF
Add an important place to see how long it'd take to get there from our property listings.
__mins driving to your place
Get an instant, personalised result:
- Show sellers you’re serious
- Secure viewings faster with agents
- No impact on your credit score
Your mortgage
Notes
Staying secure when looking for property
Ensure you're up to date with our latest advice on how to avoid fraud or scams when looking for property online.
Visit our security centre to find out moreDisclaimer - Property reference 34523268. The information displayed about this property comprises a property advertisement. Rightmove.co.uk makes no warranty as to the accuracy or completeness of the advertisement or any linked or associated information, and Rightmove has no control over the content. This property advertisement does not constitute property particulars. The information is provided and maintained by Harper and Co Estate Agents, Teesside. Please contact the selling agent or developer directly to obtain any information which may be available under the terms of The Energy Performance of Buildings (Certificates and Inspections) (England and Wales) Regulations 2007 or the Home Report if in relation to a residential property in Scotland.
*This is the average speed from the provider with the fastest broadband package available at this postcode. The average speed displayed is based on the download speeds of at least 50% of customers at peak time (8pm to 10pm). Fibre/cable services at the postcode are subject to availability and may differ between properties within a postcode. Speeds can be affected by a range of technical and environmental factors. The speed at the property may be lower than that listed above. You can check the estimated speed and confirm availability to a property prior to purchasing on the broadband provider's website. Providers may increase charges. The information is provided and maintained by Decision Technologies Limited. **This is indicative only and based on a 2-person household with multiple devices and simultaneous usage. Broadband performance is affected by multiple factors including number of occupants and devices, simultaneous usage, router range etc. For more information speak to your broadband provider.
Map data ©OpenStreetMap contributors.






