Chestnut Close, Herstmonceux, East Sussex

- PROPERTY TYPE
Semi-Detached
- BEDROOMS
4
- BATHROOMS
1
- SIZE
Ask agent
- TENUREDescribes how you own a property. There are different types of tenure - freehold, leasehold, and commonhold.Read more about tenure in our glossary page.
Freehold
Key features
- AGENT ID: 2292
- 4 BED SEMI-DETACHED PROPERTY
- FAMILY BATHROOM
- EN-SUITE TO MASTER BEDROOM
- KITCHEN
- LOUNGE
- DINING ROOM
- CONSERVATORY
- INTEGRAL GARAGE FITTED OUT AS UTILITY
- WITH AN ADDITIONAL GARAGE IN NEARBY BLOCK
Description
A beautifully presented four-bedroom semi-detached home offering generous living space, perfectly suited to modern family life. Set within the highly desirable village of Herstmonceux, this attractive property combines practical living with welcoming style, all within walking distance of the village centre. With appealing weatherboard and brick elevations and well-maintained gardens, the home offers both curb appeal and a comfortable interior designed for everyday living and entertaining.
KEY FEATURES:-
4 BED SEMI-DETACHED PROPERTY
FAMILY BATHROOM
EN-SUITE TO MASTER BEDROOM
KITCHEN
LOUNGE
DINING ROOM
CONSERVATORY
INTEGRAL GARAGE FITTED OUT AS UTILITY
WITH AN ADDITIONAL GARAGE IN NEARBY BLOCK
DRIVEWAY FOR OFF ROAD PARKING
POPULAR VILLAGE LOCATION
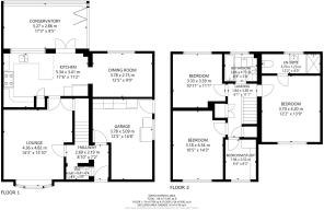
The property is accessed through a welcoming entrance hall that leads into the main ground-floor living areas. The spacious sitting room offers a warm and comfortable setting for relaxation and flows naturally through to the well-appointed kitchen. Thoughtfully designed, the kitchen features a comprehensive range of wall and base units providing ample storage, along with integrated appliances including a double range electric oven with hob and extractor hood above, as well as a dishwasher. A breakfast bar creates an ideal space for casual dining, while there is also room for a freestanding fridge freezer. From the kitchen, a bright conservatory overlooks the rear garden, creating a pleasant space to enjoy the views, while the dining room is also easily accessible, offering additional seating and a perfect setting for entertaining guests. The former integral garage has been expertly fitted out as a utility room, offering excellent storage and laundry facilities with plumbing for a washing machine and dryer, while a convenient cloakroom completes the ground floor.
Upstairs, the first floor offers three well-proportioned double bedrooms along with a single bedroom, ideal for use as a nursery, home office, or study. All of the double bedrooms benefit from fitted wardrobes and drawers, providing excellent built-in storage. The principal bedroom enjoys the added convenience of an en-suite shower room, while the remaining bedrooms are served by a well-appointed family bathroom.
OUTSIDE: Externally, the front garden enhances the attractive façade and is predominantly laid to lawn, complemented by bordering shrubs and a driveway providing off-road parking for several vehicles. A side gate offers access to the rear garden, which is also mainly laid to lawn and thoughtfully arranged for outdoor enjoyment. Features include a pergola area ideal for a hot tub, a patio extending from the conservatory perfect for al fresco dining, a charming trestle-style seating area, and a delightful summer house.
LOCATION: Ideally situated in the heart of Herstmonceux village with all amenities needed such as local shops, post office, café, restaurants, doctors’ surgery, pharmacy, barbers, beauty salon and much more, there is no need to head further afield. For educational requirements there is the popular Herstmonceux Primary school in the village and Hailsham and Heathfield Community Colleges are within the catchment area. Should you need to visit the larger towns of Hailsham, Eastbourne or Bexhill, these are all within a short drive and the local bus route runs through the village. There are excellent mainline train services from Pevensey Bay, Battle, Polegate and Eastbourne with direct links to central London.
For leisure pursuits in the immediate vicinity, there is freshwater fishing in Brick Lakes, beautiful walking trails, horse riding and cycling routes in the surrounding countryside. The historic castle of Herstmonceux and science observatory centre is a 10 minute drive and the historic town of Battle and Battle Abbey is approx. a 15 minute drive and well worth a visit. The beautiful beaches of Pevensey Bay, Normans Bay and Eastbourne are a short drive and have an array of water sports to enjoy.
ADDITIONAL INFO: Mains electric, oil heating, mains water, mains drainage, solar panels for electricity- solar panels on the roof produce 3 KW per hour maximum and a 18.6 KW battery energy storage system. Both of which feed into the grid. Broadband: FTTC 80mbps (Superfast), EPC: TBC, Council Tax Band: C
AGENTS COMMENTS: “Ideal family property in a popular village location”
- COUNCIL TAXA payment made to your local authority in order to pay for local services like schools, libraries, and refuse collection. The amount you pay depends on the value of the property.Read more about council Tax in our glossary page.
- Band: C
- PARKINGDetails of how and where vehicles can be parked, and any associated costs.Read more about parking in our glossary page.
- Yes
- GARDENA property has access to an outdoor space, which could be private or shared.
- Yes
- ACCESSIBILITYHow a property has been adapted to meet the needs of vulnerable or disabled individuals.Read more about accessibility in our glossary page.
- Ask agent
Energy performance certificate - ask agent
Chestnut Close, Herstmonceux, East Sussex
Add an important place to see how long it'd take to get there from our property listings.
__mins driving to your place
Get an instant, personalised result:
- Show sellers you’re serious
- Secure viewings faster with agents
- No impact on your credit score
Your mortgage
Notes
Staying secure when looking for property
Ensure you're up to date with our latest advice on how to avoid fraud or scams when looking for property online.
Visit our security centre to find out moreDisclaimer - Property reference RFX-23262673. The information displayed about this property comprises a property advertisement. Rightmove.co.uk makes no warranty as to the accuracy or completeness of the advertisement or any linked or associated information, and Rightmove has no control over the content. This property advertisement does not constitute property particulars. The information is provided and maintained by VC ESTATES, South East. Please contact the selling agent or developer directly to obtain any information which may be available under the terms of The Energy Performance of Buildings (Certificates and Inspections) (England and Wales) Regulations 2007 or the Home Report if in relation to a residential property in Scotland.
*This is the average speed from the provider with the fastest broadband package available at this postcode. The average speed displayed is based on the download speeds of at least 50% of customers at peak time (8pm to 10pm). Fibre/cable services at the postcode are subject to availability and may differ between properties within a postcode. Speeds can be affected by a range of technical and environmental factors. The speed at the property may be lower than that listed above. You can check the estimated speed and confirm availability to a property prior to purchasing on the broadband provider's website. Providers may increase charges. The information is provided and maintained by Decision Technologies Limited. **This is indicative only and based on a 2-person household with multiple devices and simultaneous usage. Broadband performance is affected by multiple factors including number of occupants and devices, simultaneous usage, router range etc. For more information speak to your broadband provider.
Map data ©OpenStreetMap contributors.




