High Street, Sandy, SG19 1AG

- PROPERTY TYPE
Semi-Detached
- BEDROOMS
3
- BATHROOMS
2
- SIZE
Ask agent
- TENUREDescribes how you own a property. There are different types of tenure - freehold, leasehold, and commonhold.Read more about tenure in our glossary page.
Freehold
Key features
- For sale by Informal Tender
- Open House viewings to commence Saturday 21st March, by appointment only
- A three double bedroom renovation project (planning permission granted CB/21/03668/FULL)
- Late Victorian, semi-detached home
- A wealth of potential to extend and create a wonderful family home
- Generous rear garden in excess of 100 ft and off street parking
- Offered for sale with no upper chain
- For all enquiries, please quote reference GM0074
Description
*** OPEN HOUSE VIEWINGS TO COMMENCE FROM SATURDAY 21ST MARCH, BY APPOINTMENT ONLY ***
A three double bedroom, semi detached period home requiring renovation, and overlooking The Parish Church of Saint Swithun, in Sandy Town Centre. For all enquiries, please quote reference GM0074. Dating back to 1897, this bay fronted, late Victorian home is conveniently located for access to a wide range of local amenities, schools, and Sandy train station. The property has a wealth of potential to be remodelled, refurbished and extended (STPP) and is offered for sale with no upper chain.
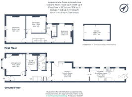
Ground Floor Accommodation
The entrance hall has stairs rising to the first floor with storage area below. To the front of the property there is a sitting room with an open feature fireplace and a bay window. There is a separate study, a ground floor bathroom, with an inset corner bath and a shower cubicle, and a utility cupboard. To the rear, there is an open plan dining/kitchen/garden room, with access to both the side and rear gardens.
First Floor Accommodation
There are three double bedrooms and a shower room on the first floor, all bedrooms have feature fireplaces and the principal bedroom has views to the front overlooking the church.
Outside
To the front, there is a paved garden with a variety of flower and shrub beds. To the side, there is ample off street parking for several vehicles ahead of the single garage. To the rear, the gardens are laid to lawn and patio. There is a garden store shed, a green house and a chicken run.
Brochures
Brochure 1- COUNCIL TAXA payment made to your local authority in order to pay for local services like schools, libraries, and refuse collection. The amount you pay depends on the value of the property.Read more about council Tax in our glossary page.
- Band: D
- PARKINGDetails of how and where vehicles can be parked, and any associated costs.Read more about parking in our glossary page.
- Garage,Driveway,Off street
- GARDENA property has access to an outdoor space, which could be private or shared.
- Yes
- ACCESSIBILITYHow a property has been adapted to meet the needs of vulnerable or disabled individuals.Read more about accessibility in our glossary page.
- Ask agent
High Street, Sandy, SG19 1AG
Add an important place to see how long it'd take to get there from our property listings.
__mins driving to your place
Get an instant, personalised result:
- Show sellers you’re serious
- Secure viewings faster with agents
- No impact on your credit score
Your mortgage
Notes
Staying secure when looking for property
Ensure you're up to date with our latest advice on how to avoid fraud or scams when looking for property online.
Visit our security centre to find out moreDisclaimer - Property reference S1649257. The information displayed about this property comprises a property advertisement. Rightmove.co.uk makes no warranty as to the accuracy or completeness of the advertisement or any linked or associated information, and Rightmove has no control over the content. This property advertisement does not constitute property particulars. The information is provided and maintained by eXp UK, East of England. Please contact the selling agent or developer directly to obtain any information which may be available under the terms of The Energy Performance of Buildings (Certificates and Inspections) (England and Wales) Regulations 2007 or the Home Report if in relation to a residential property in Scotland.
*This is the average speed from the provider with the fastest broadband package available at this postcode. The average speed displayed is based on the download speeds of at least 50% of customers at peak time (8pm to 10pm). Fibre/cable services at the postcode are subject to availability and may differ between properties within a postcode. Speeds can be affected by a range of technical and environmental factors. The speed at the property may be lower than that listed above. You can check the estimated speed and confirm availability to a property prior to purchasing on the broadband provider's website. Providers may increase charges. The information is provided and maintained by Decision Technologies Limited. **This is indicative only and based on a 2-person household with multiple devices and simultaneous usage. Broadband performance is affected by multiple factors including number of occupants and devices, simultaneous usage, router range etc. For more information speak to your broadband provider.
Map data ©OpenStreetMap contributors.




