
James Street, Leabrooks, DE55

- PROPERTY TYPE
Semi-Detached
- BEDROOMS
3
- BATHROOMS
2
- SIZE
Ask agent
- TENUREDescribes how you own a property. There are different types of tenure - freehold, leasehold, and commonhold.Read more about tenure in our glossary page.
Freehold
Key features
- Semi Detached Home
- Popular Residential Location
- Walking Distance To Local Amenities
- No Upward Chain
- Vacant Possession
- Ideal For Access to A38 & M1
- Perfect First Home
Description
Derbyshire Properties are delighted to offer 'For Sale' this three bedroom semi detached home situated on popular residential in Leabrooks. Available to purchase with vacant possession and no upward chain, we recommend an early internal inspection to avoid disappointment.
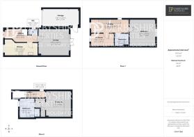
Internally, the property briefly comprises; Entrance Hall, WC, Kitchen & Lounge to the ground floor, two Bedrooms and family Bathroom to the first floor whilst further Bedroom, Dressing Area and En Suite are situated to the second floor.
Externally, the home boasts driveway parking for two vehicles to the side elevation with EV charging point and access to garage via up and over door. There is separate door to rear of the garage which access garden. The rear garden is a landscaped space with large patio area for entertaining, lawn space and steps leading to further seating area. Mature shrubbery and timber fencing secure and complete the space making it ideal for those with pets and young children.
Entrance Hallway
Accessed via front elevation with wood effect flooring, wall mounted radiator and doorways to;
Downstairs WC
Kitchen
4.81m x 1.89m (15' 9" x 6' 2") Featuring a range of base cupboards and eye level units with wood effect worktops over and a range of fitted appliances including; Oven, grill, hob with accompanying extractor hood and stainless steel inset sink. There is also under counter plumbing for dishwasher. Tiled splashback covers the work surface whilst tiled flooring runs throughout. Wall mounted radiator and double glazed window to front elevation complete the space.
Lounge
4.43m x 3.92m (14' 6" x 12' 10") With double glazed French doors opening to rear patio, wood effect flooring and wall mounted radiator.
Landing
Bedroom Two
3.89m x 3.74m (12' 9" x 12' 3") With double glazed window to rear elevation, wall mounted radiator and carpeted flooring.
Bedroom Three
3.30m x 1.86m (10' 10" x 6' 1") With double glazed window to front elevation, wall mounted radiator and carpeted flooring.
Bathroom
2.03m x 1.86m (6' 8" x 6' 1") A tiled three piece suite comprising: panel bath with shower and glazed screen, pedestal wash hand basin, low level WC, complementary tiling to the walls, central heating radiator, ceiling spot lights and extractor fan.
Master Bedroom
3.93m x 3.64m (12' 11" x 11' 11") With two double glazed Velux windows to rear elevation, wall mounted radiator and carpeted flooring. Dressing area provides fitted storage and access to En Suite.
En-Suite
2.80m x 2.19m (9' 2" x 7' 2") With white three piece suite comprising: double shower enclosure, pedestal wash hand basin, low level WC, complementary tiling to the walls, central heating radiator, ceiling spot lights, extractor fan and double glazed window.
Outside
Externally, the home boasts driveway parking for two vehicles to the side elevation with EV charging point and access to garage via up and over door. There is separate door to rear of the garage which access garden. The rear garden is a landscaped space with large patio area for entertaining, lawn space and steps leading to further seating area. Mature shrubbery and timber fencing secure and complete the space making it ideal for those with pets and young children.
Council Tax
We understand that the property currently falls within council tax band C, with Amber Valley Borough Council. However, we would recommend any prospective purchasers make their own enquiries with the local authority.
Disclaimer
1. MONEY LAUNDERING REGULATIONS - Intending purchasers will be asked to produce identification documentation at a later stage and we would ask for your co-operation in order that there will be no delay in agreeing the sale.
2: These particulars do not constitute part or all of an offer or contract.
3: The measurements indicated are supplied for guidance only and as such must be considered incorrect.
4: Potential buyers are advised to recheck the measurements before committing to any expense.
5: Derbyshire Properties have not tested any apparatus, equipment, fixtures, fittings or services and it is the buyers interests to check the working condition of any appliances.
6: Derbyshire Properties have not sought to verify the legal title of the property and the buyers must obtain verification from their solicitor.
Brochures
Brochure 1- COUNCIL TAXA payment made to your local authority in order to pay for local services like schools, libraries, and refuse collection. The amount you pay depends on the value of the property.Read more about council Tax in our glossary page.
- Band: C
- PARKINGDetails of how and where vehicles can be parked, and any associated costs.Read more about parking in our glossary page.
- Yes
- GARDENA property has access to an outdoor space, which could be private or shared.
- Yes
- ACCESSIBILITYHow a property has been adapted to meet the needs of vulnerable or disabled individuals.Read more about accessibility in our glossary page.
- Ask agent
James Street, Leabrooks, DE55
Add an important place to see how long it'd take to get there from our property listings.
__mins driving to your place
Get an instant, personalised result:
- Show sellers you’re serious
- Secure viewings faster with agents
- No impact on your credit score
Your mortgage
Notes
Staying secure when looking for property
Ensure you're up to date with our latest advice on how to avoid fraud or scams when looking for property online.
Visit our security centre to find out moreDisclaimer - Property reference 30017321. The information displayed about this property comprises a property advertisement. Rightmove.co.uk makes no warranty as to the accuracy or completeness of the advertisement or any linked or associated information, and Rightmove has no control over the content. This property advertisement does not constitute property particulars. The information is provided and maintained by Derbyshire Properties, Alfreton. Please contact the selling agent or developer directly to obtain any information which may be available under the terms of The Energy Performance of Buildings (Certificates and Inspections) (England and Wales) Regulations 2007 or the Home Report if in relation to a residential property in Scotland.
*This is the average speed from the provider with the fastest broadband package available at this postcode. The average speed displayed is based on the download speeds of at least 50% of customers at peak time (8pm to 10pm). Fibre/cable services at the postcode are subject to availability and may differ between properties within a postcode. Speeds can be affected by a range of technical and environmental factors. The speed at the property may be lower than that listed above. You can check the estimated speed and confirm availability to a property prior to purchasing on the broadband provider's website. Providers may increase charges. The information is provided and maintained by Decision Technologies Limited. **This is indicative only and based on a 2-person household with multiple devices and simultaneous usage. Broadband performance is affected by multiple factors including number of occupants and devices, simultaneous usage, router range etc. For more information speak to your broadband provider.
Map data ©OpenStreetMap contributors.








