Palermo, Palermo, Sicily, Italy
- PROPERTY TYPE
Villa
- BEDROOMS
6
- BATHROOMS
6
- SIZE
5,220 sq ft
485 sq m
Key features
- villa
- Terrace
- Private garden
- Air Conditioning
- hot tub
Description
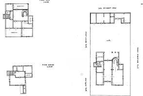
A few meters from Caboto Square, on Viale Orfeo, a side street off Viale Margherita di Savoia, we offer for sale a fantastic detached villa of about 500 sq m, on three levels, all above ground, plus garden and annex.
The property, completely and finely renovated in the 1990s, is in good condition and features luxurious finishes that make it one of a kind.
On the raised ground floor, the living area welcomes us, consisting of an entrance hall, a formal living room with fireplace, a study, a dining room and the kitchen, both overlooking the garden.
Up the imposing spiral staircase you reach the sleeping area on the first floor, where there is an additional living room that leads to: the master suite with en-suite bathroom and built-in wardrobes; a bedroom, a small bedroom and a further double bedroom. All rooms on this floor have access to the terraces, one facing Viale Orfeo and the other overlooking the villa's garden.
On the attic floor there are another sitting room, a bathroom and three further bedrooms served by a bathroom and a storage room.
The entire villa is parquet-floored; all the fitted wardrobes are solid wood, and the kitchen is masonry-built. The floors can be reached, in addition to the main staircase, by an additional service staircase.
The garden, located in the villa's inner courtyard, ensures privacy for relaxing moments or for hosting parties and events with friends.
At the end of the courtyard there is also a very spacious annex, which can be used as a lounge for relaxation, a sauna area, or a small apartment for guests.
The villa is 500 m from Mondello Beach. This residential area, made up solely of prestigious villas, is the most exclusive housing option in the Palermo area.
Palermo, Palermo, Sicily, Italy
NEAREST AIRPORTS
Distances are straight line measurements- Palermo Punta Raisi(International)12.8 miles
Advice on buying Italian property
Learn everything you need to know to successfully find and buy a property in Italy.
Notes
This is a property advertisement provided and maintained by Engel & Voelkers Palermo & Trapani, Engel & Volkers Palermo & Trapani (reference LavishvillainMondello) and does not constitute property particulars. Whilst we require advertisers to act with best practice and provide accurate information, we can only publish advertisements in good faith and have not verified any claims or statements or inspected any of the properties, locations or opportunities promoted. Rightmove does not own or control and is not responsible for the properties, opportunities, website content, products or services provided or promoted by third parties and makes no warranties or representations as to the accuracy, completeness, legality, performance or suitability of any of the foregoing. We therefore accept no liability arising from any reliance made by any reader or person to whom this information is made available to. You must perform your own research and seek independent professional advice before making any decision to purchase or invest in overseas property.





