Llanfawr Road, Holyhead, Anglesey, LL65
- PROPERTY TYPE
Land
- SIZE
51,451 sq ft
4,780 sq m
Key features
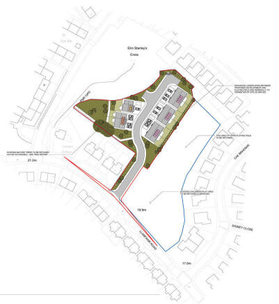
- Outline Planning for 9 AFFORDABLE Dwellings
- Planning Application OP/2025/1
- Mix of 2, 3 & 4 Bedroom Dwellings
- Family Friendly Residential Area
- Mix of Bungalows & Houses
- For more information Contact our Holyhead Office
Description
Holyhead is known for its vibrant community and easy access to local amenities. The area offers excellent transport links, including road and rail connections, making it ideal for commuting. Additionally, the town's proximity to the coast and natural landscapes provides plenty of recreational options for residents.
This land offers potential to create much-needed affordable housing in a growing residential area. With planning already in place, it's an attractive proposition for developers looking to make a meaningful contribution to the community. Act quickly to secure this opportunity in an increasingly popular location.
NTB - Please note, the sellers of the land have stated that the status on the UUU agreement/ Section 106 being agreed is pending as of January 2026.
Llanfawr Road, Holyhead, Anglesey, LL65
NEAREST STATIONS
Distances are straight line measurements from the centre of the postcode- Holyhead Station0.5 miles
- Valley Station2.9 miles
About Williams & Goodwin The Property People, Holyhead
2 Market Buildings Stanley Street, Holyhead, LL65 1HH




Notes
Disclaimer - Property reference RX707352. The information displayed about this property comprises a property advertisement. Rightmove.co.uk makes no warranty as to the accuracy or completeness of the advertisement or any linked or associated information, and Rightmove has no control over the content. This property advertisement does not constitute property particulars. The information is provided and maintained by Williams & Goodwin The Property People, Holyhead. Please contact the selling agent or developer directly to obtain any information which may be available under the terms of The Energy Performance of Buildings (Certificates and Inspections) (England and Wales) Regulations 2007 or the Home Report if in relation to a residential property in Scotland.
Map data ©OpenStreetMap contributors.



