Ross Lea, Houghton Le Spring, Tyne and Wear, DH4

- PROPERTY TYPE
Bungalow
- BEDROOMS
2
- BATHROOMS
2
- SIZE
Ask agent
- TENUREDescribes how you own a property. There are different types of tenure - freehold, leasehold, and commonhold.Read more about tenure in our glossary page.
Freehold
Key features
- Bespoke Extended Detached Bungalow and Garage
- Open Plan Living Area
- Conservatory
- Luxury Bathroom and Shower Room
- Approx 91SqM - 980SqFt
- Council Tax Band C
- Freehold
- Awaiting EPC
Description
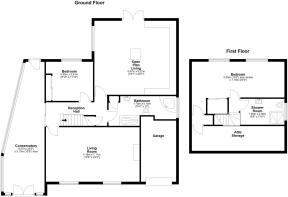
This is a fine example of a bespoke Detached Dormer Bungalow that has been extended and re-designed and now offers quality living that would allow anyone to be able to move in and just relax.
You are guided by double doors into a full length Conservatory that has rear access and sliding doors inviting you into the principal Reception Hall. The Principal Lounge has two elevated bay windows and feature fireplace that has an inset wood burning stove. This is now complemented by an open plan Living Area that includes a high quality Fitted Kitchen with a range of units, working surfaces and built in appliances as well as a sitting area and dining area and there is doors that lead out into the rear gardens.
The main bedroom is located on the first floor with fitted wardrobes and access into the loft void and this could be divided into 2 if required and is well served by the first floor Shower Room. The Guest Bedroom also has fitted wardrobes and is very well served by the ground floor Family Bathroom, that also includes a walk-in Shower.
The enclosed front gardens have been dedicated to off-street parking which in turn leads to the attached garage and the rear gardens have been designed for ease of maintenance and includes artificial lawn, patio and raised flower borders.
Set in a popular and well served residential area with a wide choice of local shopping, schooling of all grades, health and leisure facilities all being close at hand.
IMPORTANT NOTE TO POTENTIAL PURCHASERS & TENANTS:
We endeavour to make our particulars accurate and reliable, however, they do not constitute or form part of an offer or any contract and none is to be relied upon as statements of representation or fact. The services, systems and appliances listed in this specification have not been tested by us and no guarantee as to their operating ability or efficiency is given. All photographs and measurements have been taken as a guide only and are not precise. Floor plans where included are not to scale and accuracy is not guaranteed. If you require clarification or further information on any points, please contact us, especially if you are traveling some distance to view. POTENTIAL PURCHASERS: Fixtures and fittings other than those mentioned are to be agreed with the seller. POTENTIAL TENANTS: All properties are available for a minimum length of time, with the exception of short term accommodation. Please contact the branch for details. A security deposit of at least one month’s rent is required. Rent is to be paid one month in advance. It is the tenant’s responsibility to insure any personal possessions. Payment of all utilities including water rates or metered supply and Council Tax is the responsibility of the tenant in most cases.
QHO260077/2
Brochures
Web Details- COUNCIL TAXA payment made to your local authority in order to pay for local services like schools, libraries, and refuse collection. The amount you pay depends on the value of the property.Read more about council Tax in our glossary page.
- Band: C
- PARKINGDetails of how and where vehicles can be parked, and any associated costs.Read more about parking in our glossary page.
- Yes
- GARDENA property has access to an outdoor space, which could be private or shared.
- Yes
- ACCESSIBILITYHow a property has been adapted to meet the needs of vulnerable or disabled individuals.Read more about accessibility in our glossary page.
- Ask agent
Energy performance certificate - ask agent
Ross Lea, Houghton Le Spring, Tyne and Wear, DH4
Add an important place to see how long it'd take to get there from our property listings.
__mins driving to your place
Get an instant, personalised result:
- Show sellers you’re serious
- Secure viewings faster with agents
- No impact on your credit score
About YOUR MOVE Chris Stonock, Houghton Le Spring
2/3 Imperial Buildings, Houghton Le Spring, DH4 4DJ



Your mortgage
Notes
Staying secure when looking for property
Ensure you're up to date with our latest advice on how to avoid fraud or scams when looking for property online.
Visit our security centre to find out moreDisclaimer - Property reference QHO260077. The information displayed about this property comprises a property advertisement. Rightmove.co.uk makes no warranty as to the accuracy or completeness of the advertisement or any linked or associated information, and Rightmove has no control over the content. This property advertisement does not constitute property particulars. The information is provided and maintained by YOUR MOVE Chris Stonock, Houghton Le Spring. Please contact the selling agent or developer directly to obtain any information which may be available under the terms of The Energy Performance of Buildings (Certificates and Inspections) (England and Wales) Regulations 2007 or the Home Report if in relation to a residential property in Scotland.
*This is the average speed from the provider with the fastest broadband package available at this postcode. The average speed displayed is based on the download speeds of at least 50% of customers at peak time (8pm to 10pm). Fibre/cable services at the postcode are subject to availability and may differ between properties within a postcode. Speeds can be affected by a range of technical and environmental factors. The speed at the property may be lower than that listed above. You can check the estimated speed and confirm availability to a property prior to purchasing on the broadband provider's website. Providers may increase charges. The information is provided and maintained by Decision Technologies Limited. **This is indicative only and based on a 2-person household with multiple devices and simultaneous usage. Broadband performance is affected by multiple factors including number of occupants and devices, simultaneous usage, router range etc. For more information speak to your broadband provider.
Map data ©OpenStreetMap contributors.




