
Cliffords Inn, Fetter Lane, EC4A

- PROPERTY TYPE
Flat
- BEDROOMS
2
- BATHROOMS
1
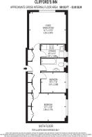
- SIZE
580 sq ft
54 sq m
Key features
- Enviable City Escape, Modern Two Bedroom in the Heart of London EC4.
- Well-presented throughout, the property comprises two double bedrooms, bright reception, modern kitchen and a contemporary style bathroom. Located in the heart of London, the ...
Description
The flat benefits from its elevated sixth-floor position within the building, providing a peaceful retreat above the vibrant streets of central London. The apartment offers comfortable and efficient living space ideally suited for professionals, academics, or those seeking a well-located City residence.
The location is particularly attractive for those connected with London’s legal and academic institutions. The property sits within easy walking distance of the barristers’ chambers of the Inner Temple, Middle Temple, Gray's Inn, and Lincoln's Inn, as well as the London School of Economics and Political Science and King's College London nearby.
Positioned between the City’s financial district and the West End theatre district, Clifford’s Inn enjoys a highly convenient setting. Residents can easily walk to Covent Garden, Fleet Street, Lincoln's Inn Fields, and the Square Mile, while excellent transport connections via Chancery Lane Underground Station and Temple Underground Station provide fast access across London.
Combining historic surroundings, central convenience, and practical living space, the flat represents a rare opportunity to acquire a home within one of London’s most historic legal quarters.
Selling your property in Cliffords Inn? Trying to find your perfect home to buy? Register with Chestertons Covent Garden to get the full picture from the experts in the Clifford's Inn market.
Our China Desk is here for you, if Chinese is your preferred language, please get in touch via WeChat (S-ChestertonsAPAC)
Brochures
Super-size images and Full Online Details --- Google Maps ImageBrochure and Particulars- COUNCIL TAXA payment made to your local authority in order to pay for local services like schools, libraries, and refuse collection. The amount you pay depends on the value of the property.Read more about council Tax in our glossary page.
- Band: F
- PARKINGDetails of how and where vehicles can be parked, and any associated costs.Read more about parking in our glossary page.
- Ask agent
- GARDENA property has access to an outdoor space, which could be private or shared.
- Ask agent
- ACCESSIBILITYHow a property has been adapted to meet the needs of vulnerable or disabled individuals.Read more about accessibility in our glossary page.
- Ask agent
Cliffords Inn, Fetter Lane, EC4A
Add an important place to see how long it'd take to get there from our property listings.
__mins driving to your place
Get an instant, personalised result:
- Show sellers you’re serious
- Secure viewings faster with agents
- No impact on your credit score



Affordability
Notes
Staying secure when looking for property
Ensure you're up to date with our latest advice on how to avoid fraud or scams when looking for property online.
Visit our security centre to find out moreDisclaimer - Property reference SHF260015. The information displayed about this property comprises a property advertisement. Rightmove.co.uk makes no warranty as to the accuracy or completeness of the advertisement or any linked or associated information, and Rightmove has no control over the content. This property advertisement does not constitute property particulars. The information is provided and maintained by Chestertons, Covent Garden. Please contact the selling agent or developer directly to obtain any information which may be available under the terms of The Energy Performance of Buildings (Certificates and Inspections) (England and Wales) Regulations 2007 or the Home Report if in relation to a residential property in Scotland.
*This is the average speed from the provider with the fastest broadband package available at this postcode. The average speed displayed is based on the download speeds of at least 50% of customers at peak time (8pm to 10pm). Fibre/cable services at the postcode are subject to availability and may differ between properties within a postcode. Speeds can be affected by a range of technical and environmental factors. The speed at the property may be lower than that listed above. You can check the estimated speed and confirm availability to a property prior to purchasing on the broadband provider's website. Providers may increase charges. The information is provided and maintained by Decision Technologies Limited. **This is indicative only and based on a 2-person household with multiple devices and simultaneous usage. Broadband performance is affected by multiple factors including number of occupants and devices, simultaneous usage, router range etc. For more information speak to your broadband provider.
Map data ©OpenStreetMap contributors.





