
London Road, Ashington, RH20

- PROPERTY TYPE
Cottage
- BEDROOMS
3
- BATHROOMS
2
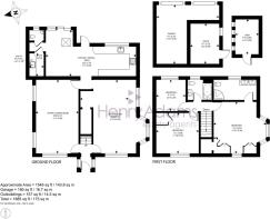
- SIZE
1,885 sq ft
175 sq m
- TENUREDescribes how you own a property. There are different types of tenure - freehold, leasehold, and commonhold.Read more about tenure in our glossary page.
Freehold
Key features
- A beautifully presented Victorian cottage in the lovely village of Ashington with enclosed garden
- Two large reception rooms, sitting room with bay window and woodburner
- Lovely kitchen / dining room with Keller bleached solid oak kitchen
- Main bedroom with fitted wardrobes, bay window and en-suite shower room
- Two further bedrooms and main bathroom
- Garage - originally a double but now incorporating garage, storage and home office and additional driveway parking
- Garden with private seating areas at the front and rear, patio area, and a number of plants and shrubs providing seasonal floral displays
Description
This beautifully presented three-bedroom Victorian detached cottage with later additions is situated in the heart of the sought-after village of Ashington, offering a perfect blend of character and modern comfort.
The property welcomes you via a stained glass entrance door to an entrance hall leading to two generous reception rooms, the charming sitting room with a bay window and a feature wood burner, ideal for relaxing evenings and the dining room or second reception space perfect for entertaining the family. The heart of the home is the impressive kitchen family room, fitted with a high-quality Keller bleached solid oak kitchen, three ovens, a microwave oven, ample space for a fridge or freezer, a convenient larder cupboard and additional storage, making it perfect for family meals or entertaining guests. A practical cloakroom and a separate utility room enhance the functionality of the ground floor.
Upstairs, the main bedroom benefits from fitted wardrobes, a bay window that floods the room with natural light, and a stylish en-suite shower room. Two further well-proportioned bedrooms provide flexible accommodation for family or guests, served by a modern main bathroom. The first floor bedrooms also have the advantage of air conditioning.
The garage, originally a double, has been thoughtfully divided to provide secure parking, additional storage, and a versatile home office, while the driveway offers further parking for multiple vehicles. The property is ideally located close to local amenities, with easy access to the A24 for convenient travel north or south. This delightful home combines tasteful décor, practical living spaces, and a welcoming village setting, making it an exceptional opportunity for families or anyone seeking a high-quality residence in a well-connected location.
EPC Rating: D
Parking - Garage
Parking - Driveway
Brochures
Property Brochure- COUNCIL TAXA payment made to your local authority in order to pay for local services like schools, libraries, and refuse collection. The amount you pay depends on the value of the property.Read more about council Tax in our glossary page.
- Band: E
- PARKINGDetails of how and where vehicles can be parked, and any associated costs.Read more about parking in our glossary page.
- Garage,Driveway
- GARDENA property has access to an outdoor space, which could be private or shared.
- Private garden
- ACCESSIBILITYHow a property has been adapted to meet the needs of vulnerable or disabled individuals.Read more about accessibility in our glossary page.
- Ask agent
Energy performance certificate - ask agent
London Road, Ashington, RH20
Add an important place to see how long it'd take to get there from our property listings.
__mins driving to your place
Get an instant, personalised result:
- Show sellers you’re serious
- Secure viewings faster with agents
- No impact on your credit score


Your mortgage
Notes
Staying secure when looking for property
Ensure you're up to date with our latest advice on how to avoid fraud or scams when looking for property online.
Visit our security centre to find out moreDisclaimer - Property reference 318625cd-13df-433d-8825-f52353dc0a1f. The information displayed about this property comprises a property advertisement. Rightmove.co.uk makes no warranty as to the accuracy or completeness of the advertisement or any linked or associated information, and Rightmove has no control over the content. This property advertisement does not constitute property particulars. The information is provided and maintained by Henry Adams, Storrington and Billinghurst. Please contact the selling agent or developer directly to obtain any information which may be available under the terms of The Energy Performance of Buildings (Certificates and Inspections) (England and Wales) Regulations 2007 or the Home Report if in relation to a residential property in Scotland.
*This is the average speed from the provider with the fastest broadband package available at this postcode. The average speed displayed is based on the download speeds of at least 50% of customers at peak time (8pm to 10pm). Fibre/cable services at the postcode are subject to availability and may differ between properties within a postcode. Speeds can be affected by a range of technical and environmental factors. The speed at the property may be lower than that listed above. You can check the estimated speed and confirm availability to a property prior to purchasing on the broadband provider's website. Providers may increase charges. The information is provided and maintained by Decision Technologies Limited. **This is indicative only and based on a 2-person household with multiple devices and simultaneous usage. Broadband performance is affected by multiple factors including number of occupants and devices, simultaneous usage, router range etc. For more information speak to your broadband provider.
Map data ©OpenStreetMap contributors.





