
Wardley Lane, Wardley, Tyne and Wear, NE10 8AA

- PROPERTY TYPE
Detached
- BEDROOMS
4
- SIZE
Ask developer
- TENUREDescribes how you own a property. There are different types of tenure - freehold, leasehold, and commonhold.Read more about tenure in our glossary page.
Freehold
Key features
- Kitchen/family/dining room with French doors to garden
- Front aspect living room
- Dining room
- Utility
- Bedroom 1 with en suite
- Storage cupboards
Description
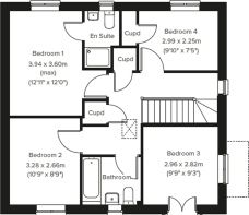
The Whiteleaf Corner is a four-bedroom detached family home offering the best of modern living. The light and airy kitchen/family/dining room enjoys an open aspect through French doors to the rear garden. There's a bright front-aspect living room, a dining room, a downstairs WC and handy utility room. Upstairs, there are four bedrooms - with bedroom one benefiting from an en suite - a family bathroom and three storage cupboards.
Additional Information
- Tenure: Freehold
- Council tax band: Not made available by local authority until post-occupation
Parking - Single Garage
Room Dimensions
- Kitchen/Family/Dining room - 5.98 x 3.19 metre
- Living room - 3.35 x 3.99 metre
- Dining room - 2.96 x 3.0 metre
- Bedroom One - 3.6 x 3.94 metre
- Bedroom Two - 2.66 x 3.28 metre
- Bedroom Three - 2.82 x 2.96 metre
- Bedroom Four - 2.99 x 2.25 metre
- COUNCIL TAXA payment made to your local authority in order to pay for local services like schools, libraries, and refuse collection. The amount you pay depends on the value of the property.Read more about council Tax in our glossary page.
- Ask developer
- PARKINGDetails of how and where vehicles can be parked, and any associated costs.Read more about parking in our glossary page.
- Yes
- GARDENA property has access to an outdoor space, which could be private or shared.
- Yes
- ACCESSIBILITYHow a property has been adapted to meet the needs of vulnerable or disabled individuals.Read more about accessibility in our glossary page.
- Ask developer
Energy performance certificate - ask developer
- Choice of 2, 3 and 4 bedroom homes
- Great local amenities
- Excellent road links
- Close to Newcastle, Gateshead and Sunderland
Wardley Lane, Wardley, Tyne and Wear, NE10 8AA
Add an important place to see how long it'd take to get there from our property listings.
__mins driving to your place
Get an instant, personalised result:
- Show sellers you’re serious
- Secure viewings faster with agents
- No impact on your credit score
About Persimmon Homes Durham
Surrounded by woodland, Birchwood Manor is a self-contained development on the outskirts of Gateshead and Newcastle. There are excellent links to the A1, A19 and A186, that make it as easy to get into the city as it is to escape to the country.
Whether you are looking for a 2-bedroom starter home or a 5-bedroom family home, Birchwood Manor offers families and professionals the choice and flexibility they are looking for, and is set to be one of the North East?s leading and most welcoming developments.
This is a great location for work and pleasure, for the city life of Newcastle, the countryside of the Northumberland National Park and the Durham Dales, and the North East coastline. Along with flights from Newcastle International Airport and ferries from the North Shields ferry terminal, you?ll have the perfect choice of home and away.
Please refer to the section below on opening hours for more information on how to locate us.
This development offers the following schemes:
- New Build Boost
- Deposit Boost: 5% Deposit Contribution Scheme
- Part Exchange your Home
- Own New Rate Reducer Scheme
- Home Change
- Deposit Unlock
- Armed Forces, Key Workers & NHS Discount Scheme
- Forces Help to Buy Scheme: Support for British Armed Forces
- Bank of Mum and Dad
- Early Bird Scheme
- Deposit Match: 5% Deposit Contribution Scheme
Schemes are available on selected plots only, subject to status, terms and conditions apply. Contact the development for latest information.
Affordability
Notes
Staying secure when looking for property
Ensure you're up to date with our latest advice on how to avoid fraud or scams when looking for property online.
Visit our security centre to find out moreDisclaimer - Property reference 4_78. The information displayed about this property comprises a property advertisement. Rightmove.co.uk makes no warranty as to the accuracy or completeness of the advertisement or any linked or associated information, and Rightmove has no control over the content. This property advertisement does not constitute property particulars. The information is provided and maintained by Persimmon Homes Durham. Please contact the selling agent or developer directly to obtain any information which may be available under the terms of The Energy Performance of Buildings (Certificates and Inspections) (England and Wales) Regulations 2007 or the Home Report if in relation to a residential property in Scotland.
*This is the average speed from the provider with the fastest broadband package available at this postcode. The average speed displayed is based on the download speeds of at least 50% of customers at peak time (8pm to 10pm). Fibre/cable services at the postcode are subject to availability and may differ between properties within a postcode. Speeds can be affected by a range of technical and environmental factors. The speed at the property may be lower than that listed above. You can check the estimated speed and confirm availability to a property prior to purchasing on the broadband provider's website. Providers may increase charges. The information is provided and maintained by Decision Technologies Limited. **This is indicative only and based on a 2-person household with multiple devices and simultaneous usage. Broadband performance is affected by multiple factors including number of occupants and devices, simultaneous usage, router range etc. For more information speak to your broadband provider.
Map data ©OpenStreetMap contributors.






