Devonshire Road, FY2

- PROPERTY TYPE
Detached
- BEDROOMS
2
- BATHROOMS
2
- SIZE
Ask agent
- TENUREDescribes how you own a property. There are different types of tenure - freehold, leasehold, and commonhold.Read more about tenure in our glossary page.
Freehold
Description
ACCOMMODATION
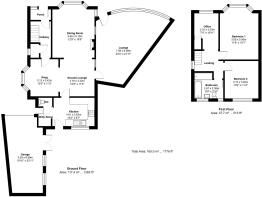
ENTRANCE PORCH:- Through UPVC double glazed exterior door with stained glass side light, glazed timber door access to Hallway and Washroom.
HALLWAY:- Staircase to first floor with feature balustrade, understair storage housing Worchester 'Combi' gas central heating boiler, UPVC double glazed window to side, inset spotlighting, double panel radiator.
LOUNGE:- 23'3"x21'11" Max Dimensions into large UPVC double glazed windows to front and side, feature fireplace housing electric fire, UPVC double glazed exterior door to side, roof light, two panel radiators, television aerial.
SECOND LOUNGE:- 11'3"x10'6" Into UPVC double glazed bay window overlooking side, panel radiator, inset spotlighting, open access to Snug.
DINING ROOM:- 16'9"x12'9" Into UPVC double glazed bay window overlooking front, fireplace housing log effect electric fire, panel radiator, coved ceiling, open access to second lounge.
KITCHEN:- 13'2"x8'7" Modern fitted base and wall units with co-ordinating and work surfaces, 1.5 bowl single drainer sink unit with monobloc mixer tap, plumbed for dishwasher, eye level Zanussi electric oven, Zanussi induction hob under illuminated extractor, UPVC double glazed exterior door and window to rear, part tiling to walls, access to Utility and Washroom.
UTILITY:- Fitted base unit and work surface, stainless steel sink unit with monobloc mixer tap, UPVC double glazed exterior door to side.
SNUG:- 11'3"x10'3" Into UPVC double glazed bay window overlooking side, panel radiator, access to hallway and second lounge.
WASHROOM:- Low flush W.C in white, extractor fan, fan heater, part tiling to walls.
LANDING:- Large UPVC double glazed window to side, access to roof space, open access to Office (easily converted back to 3rd Bedroom).
BEDROOM 1:- 16'7"x11'8" Into UPVC double glazed window overlooking front, fitted robes with mirrored doors, inset spotlighting, panel radiator.
BEDROOM 2:- 11'4"x10'2" Into UPVC double glazed window overlooking rear, coved ceiling, double panel radiator.
OFFICE:- 10'11"x7'4" Into UPVC double glazed window overlooking front, coved ceiling, double panel radiator, inset spotlighting, telephone point, (easily converted to 3rd Bedroom).
BATHROOM:- 8'9"x7'10" With walk in shower and modern three piece suite in white comprising:- panelled bath with Monobloc mixer tap, pedestal wash basin and low flush W.C, ceramic tiled flooring, UPVC double glazed windows, part tiling to walls, inset spotlighting, extractor fan, towel style radiator.
EXTERNAL
GARDEN FRONT/SIDE:- Laid to lawn with mature hedged borders, gated access, paved pathway, ample driveway parking.
REAR COURTYARD:- Being private West facing, laid to paving, gated access, UPVC garden shed, timber fenced boundaries.
GARAGE:- 22'11"x10'10" Being spacious, personal entrance French doors, power and light supplied, access via paved driveway.
ADDITIONAL INFORMATION:- Soffits, facias, guttering and drainpipes are in low maintenance UPVC material.
TENURE:- We are advised by the vendor that the property is Freehold.
SERVICES:- All mains services are connected.
APPLIANCES/EQUIPMENT:- Services, installations, heating systems and appliances have not been tested.
VALUATION:- If you are considering selling your present property INDEPENDENT will be pleased to provide you with a FREE VALUATION
03/GH
- COUNCIL TAXA payment made to your local authority in order to pay for local services like schools, libraries, and refuse collection. The amount you pay depends on the value of the property.Read more about council Tax in our glossary page.
- Ask agent
- PARKINGDetails of how and where vehicles can be parked, and any associated costs.Read more about parking in our glossary page.
- Garage,Driveway,Off street
- GARDENA property has access to an outdoor space, which could be private or shared.
- Front garden,Rear garden
- ACCESSIBILITYHow a property has been adapted to meet the needs of vulnerable or disabled individuals.Read more about accessibility in our glossary page.
- Ask agent
Devonshire Road, FY2
Add an important place to see how long it'd take to get there from our property listings.
__mins driving to your place
Get an instant, personalised result:
- Show sellers you’re serious
- Secure viewings faster with agents
- No impact on your credit score
About Independent Estate Agency, Thornton Cleveleys
180 Victoria Road West, Thornton-Cleveleys, FY5 3NE



Your mortgage
Notes
Staying secure when looking for property
Ensure you're up to date with our latest advice on how to avoid fraud or scams when looking for property online.
Visit our security centre to find out moreDisclaimer - Property reference Devonshire598. The information displayed about this property comprises a property advertisement. Rightmove.co.uk makes no warranty as to the accuracy or completeness of the advertisement or any linked or associated information, and Rightmove has no control over the content. This property advertisement does not constitute property particulars. The information is provided and maintained by Independent Estate Agency, Thornton Cleveleys. Please contact the selling agent or developer directly to obtain any information which may be available under the terms of The Energy Performance of Buildings (Certificates and Inspections) (England and Wales) Regulations 2007 or the Home Report if in relation to a residential property in Scotland.
*This is the average speed from the provider with the fastest broadband package available at this postcode. The average speed displayed is based on the download speeds of at least 50% of customers at peak time (8pm to 10pm). Fibre/cable services at the postcode are subject to availability and may differ between properties within a postcode. Speeds can be affected by a range of technical and environmental factors. The speed at the property may be lower than that listed above. You can check the estimated speed and confirm availability to a property prior to purchasing on the broadband provider's website. Providers may increase charges. The information is provided and maintained by Decision Technologies Limited. **This is indicative only and based on a 2-person household with multiple devices and simultaneous usage. Broadband performance is affected by multiple factors including number of occupants and devices, simultaneous usage, router range etc. For more information speak to your broadband provider.
Map data ©OpenStreetMap contributors.





