
Dean Street, Workington, CA14

- PROPERTY TYPE
Terraced
- BEDROOMS
3
- BATHROOMS
3
- SIZE
1,324 sq ft
123 sq m
- TENUREDescribes how you own a property. There are different types of tenure - freehold, leasehold, and commonhold.Read more about tenure in our glossary page.
Freehold
Key features
- Offered for sale with no forward chain
- Located on the edge of the town centre of Workington, just a short drive away
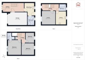
- Spacious and versatile home set over three floors
- The property benefits from a driveway to the front providing off-street parking
- Unlike most terraced properties, this one boasts a garage with integral access
- Spacious ground floor utility room
- Modern, ground floor shower room, located off the utility
- The kitchen is in good condition with white high gloss wall and base units and wood effect work surfaces
- Master bedroom benefits from an ensuite shower room
- Low maintenance rear yard
Description
Step through the front door and you are greeted by a generous, bright hallway, where wood effect flooring and an open under stairs area create an inviting first impression and a sense of openness. The ground floor hosts a spacious utility room, perfect for laundry and additional storage. Adjoining the utility is a modern shower room, offering added convenience for busy mornings or visiting guests.
Ascend to the first floor and discover the heart of the home: a comfortable lounge ideal for relaxing or entertaining, and a stylish kitchen fitted with contemporary white high gloss units and wood effect work surfaces, providing ample space for culinary adventures. A well-appointed family bathroom on this level ensures there is always a place for a peaceful soak or a quick refresh.
The unique ‘upside down’ layout continues to impress as you reach the second floor, where the bedrooms await, each thoughtfully arranged to maximise privacy and comfort. The master bedroom is a true retreat, complete with its own ensuite shower room, making it a perfect sanctuary at the end of a long day. Two further bedrooms offer flexibility to suit your needs, whether you envision cosy children’s rooms, a home office, or a welcoming guest space.
The property’s low maintenance rear yard is ideal for those who want the benefits of outdoor living without the upkeep, and its location ensures you are never far from the amenities, shops, and schools that make Workington such a desirable place to call home. With no forward chain, this home is ready for you to move straight in and start making memories. Whether you are upsizing, downsizing, or searching for a property with investment potential, this versatile and well-presented home truly has something for everyone. If you are ready to discover all that this exceptional property has to offer, we warmly invite you to arrange a viewing. Please contact our team today to book your appointment and experience this unique home for yourself.
EPC Rating: C
SELLING WITH FIRST CHOICE MOVE
First Choice Move began in 2010 from humble beginnings—from a kitchen table in Egremont. Built on family values, hard work, and a passion for property, we have grown to become the largest estate agency in West Cumbria.
As a family-run business, we believe in combining traditional estate agency values with the very latest marketing techniques to ensure every property gets maximum exposure. From high-quality photography, 3D tours, drone photography, videos and professional floorplans to online advertising and social media campaigns, we use a tailored approach to attract the right buyers. Our commitment to excellence has earned us multiple national, industry-recognised awards, a testament to our dedication to delivering outstanding service and results.
We are more than just an estate agency—we’re a trusted partner for buyers and sellers across West Cumbria, combining innovation with personal service to help you move with confidence.
MORTGAGES
Need help finding the right mortgage for your needs? First Choice Move Mortgage Services are part of the Mortgage Advice Bureau network, one of the UK's largest award-winning mortgage brokers. We can search from a selection of over 90 different lenders with over 12,000 different mortgages, including exclusive deals only available through us, to find the right deal for you. Our advice will be specifically tailored to your needs and circumstances, which could be for a first-time buyer, home-mover, or for remortgaging or investing in property.
Contact us on to arrange a free consultation with one of our experienced and dedicated in house mortgage and protection advisers.
You may have to pay an early repayment charge to your existing lender if you re-mortgage
There may be a fee for mortgage advice. The actual amount you pay will depend upon your circumstances. The fee is up to 1% but a typical fee is 0.3% of the amount borrowed.
NOTE
Please note that all measurements have been taken using a laser tape measure which may be subject to a small margin of error. Some photos may have been taken with a wide-angle camera lens. First Choice Move has not tested any apparatus, equipment, fixtures and fittings or services and so cannot verify that they are in working order or fit for the purpose. A buyer is advised to obtain verification from their solicitor or surveyor. References to the tenure of a property are based on information supplied by the Seller. The Agent has not had sight of the title documents.
- COUNCIL TAXA payment made to your local authority in order to pay for local services like schools, libraries, and refuse collection. The amount you pay depends on the value of the property.Read more about council Tax in our glossary page.
- Band: B
- PARKINGDetails of how and where vehicles can be parked, and any associated costs.Read more about parking in our glossary page.
- Yes
- GARDENA property has access to an outdoor space, which could be private or shared.
- Yes
- ACCESSIBILITYHow a property has been adapted to meet the needs of vulnerable or disabled individuals.Read more about accessibility in our glossary page.
- Ask agent
Energy performance certificate - ask agent
Dean Street, Workington, CA14
Add an important place to see how long it'd take to get there from our property listings.
__mins driving to your place
Get an instant, personalised result:
- Show sellers you’re serious
- Secure viewings faster with agents
- No impact on your credit score
Your mortgage
Notes
Staying secure when looking for property
Ensure you're up to date with our latest advice on how to avoid fraud or scams when looking for property online.
Visit our security centre to find out moreDisclaimer - Property reference ef726afe-310d-4665-bde4-85cc5b761108. The information displayed about this property comprises a property advertisement. Rightmove.co.uk makes no warranty as to the accuracy or completeness of the advertisement or any linked or associated information, and Rightmove has no control over the content. This property advertisement does not constitute property particulars. The information is provided and maintained by First Choice Move, Lillyhall. Please contact the selling agent or developer directly to obtain any information which may be available under the terms of The Energy Performance of Buildings (Certificates and Inspections) (England and Wales) Regulations 2007 or the Home Report if in relation to a residential property in Scotland.
*This is the average speed from the provider with the fastest broadband package available at this postcode. The average speed displayed is based on the download speeds of at least 50% of customers at peak time (8pm to 10pm). Fibre/cable services at the postcode are subject to availability and may differ between properties within a postcode. Speeds can be affected by a range of technical and environmental factors. The speed at the property may be lower than that listed above. You can check the estimated speed and confirm availability to a property prior to purchasing on the broadband provider's website. Providers may increase charges. The information is provided and maintained by Decision Technologies Limited. **This is indicative only and based on a 2-person household with multiple devices and simultaneous usage. Broadband performance is affected by multiple factors including number of occupants and devices, simultaneous usage, router range etc. For more information speak to your broadband provider.
Map data ©OpenStreetMap contributors.





