
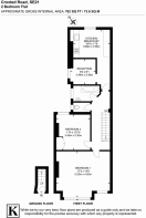
Croxted Road, SE21

- PROPERTY TYPE
Flat
- BEDROOMS
2
- BATHROOMS
1
- SIZE
792 sq ft
74 sq m
Key features
- Two double bedrooms
- Victorian conversion
- Almost 800 square feet
- Versatile layout
- Neutral blank canvas
- Sought-after, neighbourly street
- Herne Hill a six-minute walk
- Dulwich Village around a ten-minute stroll
- Within catchment area for Ofsted Outstanding schools
- Chain-free
Description
Full Description - Keating Estates are proud to present to market an appealing and versatile two double bedroom apartment, arranged over the first floor of a charming Victorian property on Croxted Road, one of the most popular and friendly residential streets sandwiched between Herne Hill and Dulwich Village. As you approach, the handsome Victorian façade sets a welcoming tone, offering instant kerb appeal with its classic brickwork and decorative detailing, featuring a pretty blue door.
With almost 800 square feet of internal space, you can feel the potential from the moment you step inside the apartment. With the entrance on the ground floor leading up to the living spaces on the first floor, offering a bright and versatile layout.
This spacious apartment has a been a cherished home, having been owned by the current vendor for over twenty years. At the rear of the home sits a cosy reception room, featuring a sash window and the proportions to accommodate a comfortable chaise sofa. Adjacent to the reception, the separate kitchen is well-appointed with countertops and cabinetry down both sides, offering plenty of storage and worktop space whilst framing the dining area. There is also space for an additional sofa area, enhancing the sociability.
Subject to permissions, the position of the kitchen next to the reception means there is the potential for the purchaser to open out into one expansive space if open plan living is preferred. There is also the potential to simply re-purpose the principal bedroom into the main reception room, freeing up the current reception as a home office, or smaller bedroom.
Currently, two well-proportioned double bedrooms are set to the opposing side of the property, each neutrally decorated. The principal is particularly impressive, spanning the width of the home with a flurry of windows, and a bright ambience. Still a sizeable double, the second bedroom features fitted wardrobes and a desk in addition to the traditional bedroom furnishings. A neutral bathroom serves the home, complete with a bathtub with overhead shower, sitting adjacent to a separate WC, ideal for busy morning routines, or with the option to combine into one larger bathroom if desired.
Croxted Road is a desirable street within the catchment area for the Rosendale School. This particularly property is conveniently located a three-minute walk from the green open spaces of Brockwell Park with Dulwich Sports Ground, Belair Park and Dulwich Park just a few minutes further in the other direction. The pubs, cafes and amenities within the Village-esq Herne Hill are just a six-minute walk, with Herne Hill station within a ten-minute stroll offering trains to Victoria, Blackfriars, and Wimbledon via Southern Rail and the Thames Link.
In the other direction, Dulwich Village is within easy walking reach in just fifteen minutes, boasting the up-market establishments for which it is famed. Further trains are on offer from North and West Dulwich stations, whisking you into London Bridge and Victoria respectively. Brixton, with the first stop on the Victoria Line, the lauded Brixton Village and a cracking nightlife is a short bus journey via frequent day and night buses, or an eighteen-minute walk across Brockwell Park, covering the wants and needs of the majority of purchasers.
Chain-free.
Brochures
Croxted Road, SE21Brochure- COUNCIL TAXA payment made to your local authority in order to pay for local services like schools, libraries, and refuse collection. The amount you pay depends on the value of the property.Read more about council Tax in our glossary page.
- Band: C
- PARKINGDetails of how and where vehicles can be parked, and any associated costs.Read more about parking in our glossary page.
- Ask agent
- GARDENA property has access to an outdoor space, which could be private or shared.
- Ask agent
- ACCESSIBILITYHow a property has been adapted to meet the needs of vulnerable or disabled individuals.Read more about accessibility in our glossary page.
- Ask agent
Croxted Road, SE21
Add an important place to see how long it'd take to get there from our property listings.
__mins driving to your place
Get an instant, personalised result:
- Show sellers you’re serious
- Secure viewings faster with agents
- No impact on your credit score
Affordability
Notes
Staying secure when looking for property
Ensure you're up to date with our latest advice on how to avoid fraud or scams when looking for property online.
Visit our security centre to find out moreDisclaimer - Property reference 34466448. The information displayed about this property comprises a property advertisement. Rightmove.co.uk makes no warranty as to the accuracy or completeness of the advertisement or any linked or associated information, and Rightmove has no control over the content. This property advertisement does not constitute property particulars. The information is provided and maintained by Keating Estates, Herne Hill. Please contact the selling agent or developer directly to obtain any information which may be available under the terms of The Energy Performance of Buildings (Certificates and Inspections) (England and Wales) Regulations 2007 or the Home Report if in relation to a residential property in Scotland.
*This is the average speed from the provider with the fastest broadband package available at this postcode. The average speed displayed is based on the download speeds of at least 50% of customers at peak time (8pm to 10pm). Fibre/cable services at the postcode are subject to availability and may differ between properties within a postcode. Speeds can be affected by a range of technical and environmental factors. The speed at the property may be lower than that listed above. You can check the estimated speed and confirm availability to a property prior to purchasing on the broadband provider's website. Providers may increase charges. The information is provided and maintained by Decision Technologies Limited. **This is indicative only and based on a 2-person household with multiple devices and simultaneous usage. Broadband performance is affected by multiple factors including number of occupants and devices, simultaneous usage, router range etc. For more information speak to your broadband provider.
Map data ©OpenStreetMap contributors.





