
The Strand, Exmouth

- PROPERTY TYPE
Flat
- BEDROOMS
1
- BATHROOMS
1
- SIZE
Ask agent
Key features
- One Double Bedroom with Study
- Great Investment Opportunity
- Town Centre Location
- Fitted Kitchen with Appliances
- Corner Dual Aspect Lounge
- Electric Heating
- Communal Entrance with Secure Entry System
- Great Transport Links
- Short Walk to the Seafront
- No Chain
Description
The property comprises of a bright and airy open plan living/dining room, fitted kitchen, one double bedroom, bathroom, study and communal entrance with secure entry system.
The property also benefits from its close proximity to shops, the seafront, a local park, train station and buses.
No onward chain.
Management Fees: These are subject to change each year. The last 5 years the service charges have been as follows:
Remus management fees:
24.6 25 - 23.6.26 - £2697.42*
24.6.24 - 23.6.25. - £1777.57
24.6.23 - 23.6.24. - £1775.17
24.6.22 - 23.6.23 - £1198.68
24.6.21 - 23.6.22. - £1275.68
* this figure includes £1k for 'planned Maintenance' should it be required.
Ground Rent: £5 per annum.
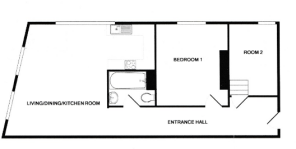
RECEPTION HALL With door entry phone, smoke detector and telephone point.
OPEN PLAN LOUNGE/DINING ROOM & KITCHEN Comprising:
LOUNGE AREA 16' x 11' (4.88m x 3.35m) A bright, attractive room with three double glazed windows, feature wall mounted electric pebble effect living flame remote control fire with mantel over, sky and television point, telephone point.
KITCHEN AREA 7' x 6' 6" (2.13m x 1.98m) Beautifully re-fitted with a range of modern cream high gloss units with soft close cupboards, wood effect worktops with inset four ring halogen hob with stainless steel splash back, built in oven and stainless steel extractor hood over, inset single drainer sink unit with mixer tap over, cupboards and plumbing for automatic washing machine beneath, integrated wine rack, matching range of eye level cupboards, wall mounted gas boiler for hot water.
BEDROOM ONE 12' 4" x 8' 7" (3.76m x 2.62m) With double glazed window to side elevation, electric wall heater, television point.
STUDY/SECOND ROOM 10' 9" x 7' (3.28m x 2.13m) Access from the reception hall via bookshelf style half height door with steps leading down to the study. With UPVC double glazed window and electric wall heater.
BATHROOM Fitted with a quality suite with bath with shower attachment and shower splash screen, pedestal wash hand basin with fitted mirror over. WC with dual plush button flush, attractive fully tiled walls, extractor fan, tiled floor.
OUTSIDE There are no gardens to maintain.
- COUNCIL TAXA payment made to your local authority in order to pay for local services like schools, libraries, and refuse collection. The amount you pay depends on the value of the property.Read more about council Tax in our glossary page.
- Band: A
- PARKINGDetails of how and where vehicles can be parked, and any associated costs.Read more about parking in our glossary page.
- Ask agent
- GARDENA property has access to an outdoor space, which could be private or shared.
- Ask agent
- ACCESSIBILITYHow a property has been adapted to meet the needs of vulnerable or disabled individuals.Read more about accessibility in our glossary page.
- Ask agent
The Strand, Exmouth
Add an important place to see how long it'd take to get there from our property listings.
__mins driving to your place
Get an instant, personalised result:
- Show sellers you’re serious
- Secure viewings faster with agents
- No impact on your credit score
Your mortgage
Notes
Staying secure when looking for property
Ensure you're up to date with our latest advice on how to avoid fraud or scams when looking for property online.
Visit our security centre to find out moreDisclaimer - Property reference 100679002150. The information displayed about this property comprises a property advertisement. Rightmove.co.uk makes no warranty as to the accuracy or completeness of the advertisement or any linked or associated information, and Rightmove has no control over the content. This property advertisement does not constitute property particulars. The information is provided and maintained by Martin & Co, Exeter. Please contact the selling agent or developer directly to obtain any information which may be available under the terms of The Energy Performance of Buildings (Certificates and Inspections) (England and Wales) Regulations 2007 or the Home Report if in relation to a residential property in Scotland.
*This is the average speed from the provider with the fastest broadband package available at this postcode. The average speed displayed is based on the download speeds of at least 50% of customers at peak time (8pm to 10pm). Fibre/cable services at the postcode are subject to availability and may differ between properties within a postcode. Speeds can be affected by a range of technical and environmental factors. The speed at the property may be lower than that listed above. You can check the estimated speed and confirm availability to a property prior to purchasing on the broadband provider's website. Providers may increase charges. The information is provided and maintained by Decision Technologies Limited. **This is indicative only and based on a 2-person household with multiple devices and simultaneous usage. Broadband performance is affected by multiple factors including number of occupants and devices, simultaneous usage, router range etc. For more information speak to your broadband provider.
Map data ©OpenStreetMap contributors.







