The Orchards, Marlbeck Close, Honley, HD9

- PROPERTY TYPE
Flat
- BEDROOMS
1
- BATHROOMS
1
- SIZE
592 sq ft
55 sq m
- TENUREDescribes how you own a property. There are different types of tenure - freehold, leasehold, and commonhold.Read more about tenure in our glossary page.
Freehold
Key features
- DRIVEWAY PARKING
Description
A FIRST FLOOR, GOOD SIZED APARTMENT WITH DRIVEWAY FROM MARLBECK CLOSE, WHICH PROVIDES PARKING FOR APPROX TWO VEHICLES AND SHARED PATHWAY GIVES ACCESS TO THE ENTRANCE LOBBY. THIS PRIVATE ENTRANCE LOBBY HAS A STAIRCASE RISING FROM IT UP TO THE TOP FLOOR LANDING. The accommodation comprises: large living room, kitchen, bedroom and shower room. Please note, this flat has been successfully rented out over the last few years, and it offers itself superbly as an investment opportunity or a pleasant place to live. This flat is also attached to a good-sized family home, available as a separate listing. Please note this property is being sold by the best and final offers method. All bids to be submitted to the selling agent’s Holmfirth office by 12 noon on Tuesday 31st March 2026.
EPC: C Council tax band: A Tenure: Freehold
EPC Rating: C
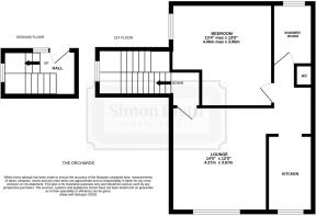
LIVING ROOM (3.15m x 3.15m)
Doorway leads through to the flat which comprises of a large living room with a full bank of windows, central ceiling light point and is well presented. There is a small dining area / breakfast area and an opening leads through to a kitchen.
KITCHEN
The kitchen has a pleasant outlook. There are units of both the high and low level, timber perfect working services, decorative tile splashbacks, inset hob, oven, extractor fan and a stainless-steel stinking unit with mixer tap above.
BEDROOM (3.96m x 4.06m)
A large double bedroom with a pleasant outlook over Honley Village, loft access point and nearby is a shower room / bathroom.
SHOWER ROOM / BATHROOM (3.96m x 4.06m)
at one time fitted with a bath, currently with a good sized shower cubicle with chrome fittings, low level w.c., pedestal wash hand basin, obscure glazed window, extractor fan, appropriate tiling and chrome central heating radiator / heated towel rail. The Flat also has a good-sized storage cupboard with a wall-mounted gas-fired central heating boiler.
Yard
The Orchard have access pathways and there is a broad tarmacadam driveway which can provide parking for at least two vehicles, which can be used for either the annex, the orchard or indeed for the principal home itself. This driveway is directly onto Marlbeck Close.
- COUNCIL TAXA payment made to your local authority in order to pay for local services like schools, libraries, and refuse collection. The amount you pay depends on the value of the property.Read more about council Tax in our glossary page.
- Band: A
- PARKINGDetails of how and where vehicles can be parked, and any associated costs.Read more about parking in our glossary page.
- Yes
- GARDENA property has access to an outdoor space, which could be private or shared.
- Private garden
- ACCESSIBILITYHow a property has been adapted to meet the needs of vulnerable or disabled individuals.Read more about accessibility in our glossary page.
- Ask agent
The Orchards, Marlbeck Close, Honley, HD9
Add an important place to see how long it'd take to get there from our property listings.
__mins driving to your place
Get an instant, personalised result:
- Show sellers you’re serious
- Secure viewings faster with agents
- No impact on your credit score
Affordability
Notes
Staying secure when looking for property
Ensure you're up to date with our latest advice on how to avoid fraud or scams when looking for property online.
Visit our security centre to find out moreDisclaimer - Property reference 29a77066-6c35-4bfd-9ee9-2ae38e71c9dc. The information displayed about this property comprises a property advertisement. Rightmove.co.uk makes no warranty as to the accuracy or completeness of the advertisement or any linked or associated information, and Rightmove has no control over the content. This property advertisement does not constitute property particulars. The information is provided and maintained by Simon Blyth, Holmfirth. Please contact the selling agent or developer directly to obtain any information which may be available under the terms of The Energy Performance of Buildings (Certificates and Inspections) (England and Wales) Regulations 2007 or the Home Report if in relation to a residential property in Scotland.
*This is the average speed from the provider with the fastest broadband package available at this postcode. The average speed displayed is based on the download speeds of at least 50% of customers at peak time (8pm to 10pm). Fibre/cable services at the postcode are subject to availability and may differ between properties within a postcode. Speeds can be affected by a range of technical and environmental factors. The speed at the property may be lower than that listed above. You can check the estimated speed and confirm availability to a property prior to purchasing on the broadband provider's website. Providers may increase charges. The information is provided and maintained by Decision Technologies Limited. **This is indicative only and based on a 2-person household with multiple devices and simultaneous usage. Broadband performance is affected by multiple factors including number of occupants and devices, simultaneous usage, router range etc. For more information speak to your broadband provider.
Map data ©OpenStreetMap contributors.






