North Street, Pewsey, Wiltshire
- PROPERTY TYPE
Land
- BATHROOMS
1
- SIZE
Ask agent
Key features
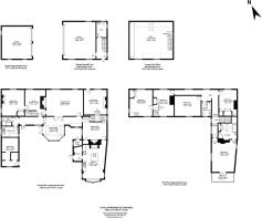
- A building plot for a pair of semi-detached town houses Each house 3 Bedroom, 2 bathroom
- Proposed houses to be approximately 1000 sq ft (130 sq m)
- Foundations in place
- Excellent location in busy village Centre, close to car park and walking distance from Station. Po
Description
The site comprises of a plot, formerly a post office yard, bordered by brick walling. The foundations are in the process of being laid, and further brick walls will be erected to further delineate between house plots, and the parking area. Planning consent was granted on 26th November 2025. PL/2025/06591 reference for the erection of two semi-detached dwellings of about 1000 sq. ft each.
Plans can be inspected by following this link:- Link to plans
Tenure
Freehold
Local Authority
Wiltshire Council, County Hall, Trowbridge, Wiltshire BA14 8JN, Tel:
Directions What three words
what3words /// harsh.ferrying.pillow
Notice
Please note we have not tested any apparatus, fixtures, fittings, or services. Interested parties must undertake their own investigation into the working order of these items. All measurements are approximate and photographs provided for guidance only.
Brochures
Brochure 1North Street, Pewsey, Wiltshire
NEAREST STATIONS
Distances are straight line measurements from the centre of the postcode- Pewsey Station0.3 miles
Notes
Disclaimer - Property reference 659_BIRK. The information displayed about this property comprises a property advertisement. Rightmove.co.uk makes no warranty as to the accuracy or completeness of the advertisement or any linked or associated information, and Rightmove has no control over the content. This property advertisement does not constitute property particulars. The information is provided and maintained by Birkmyre Property Consultants, Marlborough. Please contact the selling agent or developer directly to obtain any information which may be available under the terms of The Energy Performance of Buildings (Certificates and Inspections) (England and Wales) Regulations 2007 or the Home Report if in relation to a residential property in Scotland.
Map data ©OpenStreetMap contributors.





