
Walpole Road, Great Yarmouth

- PROPERTY TYPE
Terraced
- BEDROOMS
3
- BATHROOMS
1
- SIZE
Ask agent
- TENUREDescribes how you own a property. There are different types of tenure - freehold, leasehold, and commonhold.Read more about tenure in our glossary page.
Freehold
Key features
- Popular North End
- North Denes Beach Nearby
- Two Reception Rooms
- Spacious Kitchen/Diner
- Guest Cloakroom
- West Facing Courtyard
- Cosmetic Potential
- First Time Buyers
Description
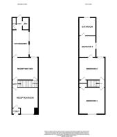
The property is entered via a small entrance porch which leads directly into the living room. From here there is a second reception room providing additional living or dining space, before opening into a long and spacious kitchen/diner. The kitchen itself was replaced around nine years ago and still offers plenty of storage and workspace. To the rear of the ground floor there is also a convenient guest cloakroom.
Upstairs, the accommodation includes a large bedroom to the front and a second generous bedroom. A third room sits just off the second bedroom and could be used as a home office, dressing room or occasional bedroom depending on your needs. The family bathroom is accessed via this room, making the layout particularly suited to first time buyers, couples or smaller households.
While the property would now benefit from some general cosmetic updating in places, it offers fantastic space and the opportunity for someone to put their own stamp on it.
Outside, the home benefits from a West facing courtyard garden. Although compact, it becomes a lovely suntrap in the afternoon and evening during the summer months.
A great opportunity to purchase a well located home with plenty of potential in one of Great Yarmouth’s most popular residential areas.
Outside Front
Small courtyard with brick boundary wall, metal gate and pathway leading up to the front entrance.
Porch
Upvc double glazed entrance door giving access, tile effect flooring, further door to
Reception Room
12'4" x 13'9" (3.76m x 4.21m)
Stripped wooden floorboards, double glazed window, ceiling coving, wall lighting, brick built fireplace with gas fire, opening through to
Lobby
Continuation of the stripped wooden floorboards, staircase to first floor, door to
Reception Two
11'6" x 12'4" (3.53m x 3.76m)
Stripped wooden floorboards, radiator, double glazed window, ceiling coving, under stairs cupboard housing electrics, door through to
Kitchen / Diner
22'2" x 8'2" (6.78m x 2.50m)
Wood style flooring, radiator, two double glazed windows, range of wall and base storage units and drawers, worktop over, one and a half bowl stainless steel sink and drainer with mixer tap, tiled splashbacks, space for American fridge/freezer, gas central heating boiler concealed in one of the cupboards, built-in oven and gas hob with stainless steel cooker hood, integrated dishwasher, plumbing for washing machine, space for a dryer, step down to
Rear Lobby
Built-in cupboard, frosted double glazed door to courtyard, door to
Separate WC
Tiled floor, low level w.c.
First Floor Landing
Wall lights, doors off to
Bedroom One
10'5" x 12'4" (3.18m x 3.76m)
Fitted carpet, radiator, double glazed window, built-in cupboard.
Bedroom Two
12'4" x 10'5" (3.77m x 3.18m)
Fitted carpet, radiator, window, built-in cupboard, door to
Bedroom Three
10'10" x 8'2" (3.31m x 2.50m)
Fitted carpet, radiator, double glazed window, door through to
Bathroom
10'11" x 8'2" (3.33m x 2.51m)
Wood effect vinyl floor, low level w.c., hand wash basin with mixer tap set in a vanity unit, splashback, wall mounted mirror and light with shaving point, chrome heated towel rail, frosted double glazed window, panelled bath with mixer tap and shower over, tiled splashback.
Outside Rear
Rear concrete courtyard enclosed with brick wall, timber gate to rear giving access.
Disclaimer
Howards Estate Agents also offer a professional, ARLA accredited Lettings and Management Service. If you are considering renting your property in order to purchase, are looking at buy to let or would like a free review of your current portfolio then please call the Lettings Branch Manager on the number shown above.
Howards Estate Agents is the seller's agent for this property. Your conveyancer is legally responsible for ensuring any purchase agreement fully protects your position. We make detailed enquiries of the seller to ensure the information provided is as accurate as possible. Please inform us if you become aware of any information being inaccurate.
Brochures
Material InformationBrochure- COUNCIL TAXA payment made to your local authority in order to pay for local services like schools, libraries, and refuse collection. The amount you pay depends on the value of the property.Read more about council Tax in our glossary page.
- Ask agent
- PARKINGDetails of how and where vehicles can be parked, and any associated costs.Read more about parking in our glossary page.
- Ask agent
- GARDENA property has access to an outdoor space, which could be private or shared.
- Yes
- ACCESSIBILITYHow a property has been adapted to meet the needs of vulnerable or disabled individuals.Read more about accessibility in our glossary page.
- Ask agent
Energy performance certificate - ask agent
Walpole Road, Great Yarmouth
Add an important place to see how long it'd take to get there from our property listings.
__mins driving to your place
Get an instant, personalised result:
- Show sellers you’re serious
- Secure viewings faster with agents
- No impact on your credit score
Your mortgage
Notes
Staying secure when looking for property
Ensure you're up to date with our latest advice on how to avoid fraud or scams when looking for property online.
Visit our security centre to find out moreDisclaimer - Property reference 0383_HOW038306816. The information displayed about this property comprises a property advertisement. Rightmove.co.uk makes no warranty as to the accuracy or completeness of the advertisement or any linked or associated information, and Rightmove has no control over the content. This property advertisement does not constitute property particulars. The information is provided and maintained by Howards, Great Yarmouth. Please contact the selling agent or developer directly to obtain any information which may be available under the terms of The Energy Performance of Buildings (Certificates and Inspections) (England and Wales) Regulations 2007 or the Home Report if in relation to a residential property in Scotland.
*This is the average speed from the provider with the fastest broadband package available at this postcode. The average speed displayed is based on the download speeds of at least 50% of customers at peak time (8pm to 10pm). Fibre/cable services at the postcode are subject to availability and may differ between properties within a postcode. Speeds can be affected by a range of technical and environmental factors. The speed at the property may be lower than that listed above. You can check the estimated speed and confirm availability to a property prior to purchasing on the broadband provider's website. Providers may increase charges. The information is provided and maintained by Decision Technologies Limited. **This is indicative only and based on a 2-person household with multiple devices and simultaneous usage. Broadband performance is affected by multiple factors including number of occupants and devices, simultaneous usage, router range etc. For more information speak to your broadband provider.
Map data ©OpenStreetMap contributors.





