
Hawthorne Gardens, Birmingham, West Midlands, B13

- PROPERTY TYPE
Apartment
- BEDROOMS
2
- BATHROOMS
2
- SIZE
Ask agent
Description
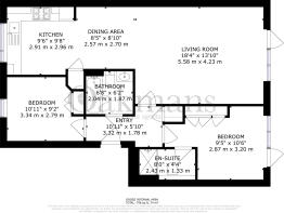
Upon entering the apartment, you are welcomed into a bright and spacious open-plan living, dining and kitchen area, creating a fantastic space for both relaxing and entertaining. The layout allows a great amount of natural light to flow throughout the property, enhancing the sense of space and comfort.
The main bedroom is a generously sized double and benefits from a private en-suite bathroom, as well as direct access to the balcony, creating a light and airy feel with pleasant views. The second bedroom is currently arranged as a home office with a single bed, offering a versatile space that could easily be used as a guest room, study or small double bedroom. The property is further complemented by a separate three-piece family bathroom, making it a perfect two-bedroom, two-bathroom apartment.
A standout feature of the property is the full-length rear balcony, providing a fantastic outdoor space with beautiful nature views, ideal for enjoying a morning coffee or relaxing in the evening.
Externally, the development benefits from secure gated access with allocated parking, offering both convenience and peace of mind for residents. The property is ideally situated within easy reach of local amenities, schools and excellent transport links, making it a fantastic opportunity for a range of buyers.
Call Oakmans today to view on .
Lease Term - Approx 106 Years
Ground Rent- £330 Per Annum
Service Charge - Approx - £2968 Per Annum
We have been advised by the owner that the property is Leasehold and the council tax band is C
Please note this should be verified by your Solicitors and Oakmans Estate Agents cannot be held responsible if the information is incorrect.
Anti-money Laundering Checks (AML)
Regulations require us to conduct identity and AML checks and gather information about every buyer's financial circumstances. These checks are essential in fulfilling our Customer Due Diligence obligations, which must be done before any property can be marked as sold subject to contract. The rules are set by law and enforced by trading standards.
We will start these checks once you have made a provisionally agreeable offer on a property. The cost is £100 (plus VAT). This fee covers the expense of obtaining relevant data and any necessary manual checks and monitoring. It's paid in advance via our onboarding system, Kotini, and is non-refundable
- COUNCIL TAXA payment made to your local authority in order to pay for local services like schools, libraries, and refuse collection. The amount you pay depends on the value of the property.Read more about council Tax in our glossary page.
- Band: TBC
- PARKINGDetails of how and where vehicles can be parked, and any associated costs.Read more about parking in our glossary page.
- Gated,Allocated
- GARDENA property has access to an outdoor space, which could be private or shared.
- Ask agent
- ACCESSIBILITYHow a property has been adapted to meet the needs of vulnerable or disabled individuals.Read more about accessibility in our glossary page.
- Ask agent
Energy performance certificate - ask agent
Hawthorne Gardens, Birmingham, West Midlands, B13
Add an important place to see how long it'd take to get there from our property listings.
__mins driving to your place
Get an instant, personalised result:
- Show sellers you’re serious
- Secure viewings faster with agents
- No impact on your credit score
Your mortgage
Notes
Staying secure when looking for property
Ensure you're up to date with our latest advice on how to avoid fraud or scams when looking for property online.
Visit our security centre to find out moreDisclaimer - Property reference HBN240014. The information displayed about this property comprises a property advertisement. Rightmove.co.uk makes no warranty as to the accuracy or completeness of the advertisement or any linked or associated information, and Rightmove has no control over the content. This property advertisement does not constitute property particulars. The information is provided and maintained by Oakmans Estate Agents, Shirley. Please contact the selling agent or developer directly to obtain any information which may be available under the terms of The Energy Performance of Buildings (Certificates and Inspections) (England and Wales) Regulations 2007 or the Home Report if in relation to a residential property in Scotland.
*This is the average speed from the provider with the fastest broadband package available at this postcode. The average speed displayed is based on the download speeds of at least 50% of customers at peak time (8pm to 10pm). Fibre/cable services at the postcode are subject to availability and may differ between properties within a postcode. Speeds can be affected by a range of technical and environmental factors. The speed at the property may be lower than that listed above. You can check the estimated speed and confirm availability to a property prior to purchasing on the broadband provider's website. Providers may increase charges. The information is provided and maintained by Decision Technologies Limited. **This is indicative only and based on a 2-person household with multiple devices and simultaneous usage. Broadband performance is affected by multiple factors including number of occupants and devices, simultaneous usage, router range etc. For more information speak to your broadband provider.
Map data ©OpenStreetMap contributors.







