
Laund Lane, Haslingden, Rossendale, BB4
- PROPERTY TYPE
Residential Development
- SIZE
Ask agent
Key features
- what3words///blazers.widgets.dreading
- includes 34.33 acres
- Method of sale - By Informal Tender before midday Wednesday 29th April 2026
- Other lots available
- * Planning Permssion *
Description
Further Houses Farm is conveniently situated for Accrington train station, Manchester via the Bury bypass and the motorway network via the Accrington by pass. From the A56 roundabout at Rising Bridge take the access onto the A680 and after one third mile take the left turn onto Clough End Road. Travel up Clough End Road for 500 yards and take a left turn onto Laund Lane at the end of which there will be a sale board at the gateway entrance to Further Houses Farm.
The market towns of Haslingden, Accrington, Blackburn and Burnley are all in close proximity with good education facilities, hospitals, supermarkets, shopping centres, recreation parks, country walks and restaurants.
Further Houses Farm is offered for sale by informal tender in three convenient lots or as a whole with bungalow, farmbuildings with planning permission for residential development and in all almost 60 acres of sound meadow and grazing land. Planning permission was granted by Rossendale Borough Council on 20th March 2025 for the conversion of a stone barn into a dwelling, the extension of the converted coach house into a large dwelling and the demolition of a redundant stone barn under application no 2024/0053.
Description
Further Houses Farm is conveniently situated for Accrington train station, Manchester via the Bury bypass and the motorway network via the Accrington by pass. From the A56 roundabout at Rising Bridge take the access onto the A680 and after one third mile take the left turn onto Clough End Road. Travel up Clough End Road for 500 yards and take a left turn onto Laund Lane at the end of which there will be a sale board at the gateway entrance to Further Houses Farm.
The market towns of Haslingden, Accrington, Blackburn and Burnley are all in close proximity with good education facilities, hospitals, supermarkets, shopping centres, recreation parks, country walks and restaurants.
Further Houses Farm is offered for sale by informal tender in three convenient lots or as a whole with bungalow, farmbuildings with planning permission for residential development and in all almost 60 acres of sound meadow and grazing land. Planning permission was granted by Rossendale Bo...
Method of Sale
The property is offered for sale in three lots or any combination of lots by informal tender with offers in accordance with the tender form provided to be submitted to the office of the selling agents on or before midday Wednesday 29th April 2026.
Four Bay Barn and surrounding land in all about 34.33 acres (Lot 3)
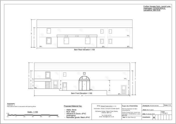
The Four Bay Barn 50' x 24'
is constructed of stone walls under a dual pitch stone slate roof with arched doorway, front leanto former pig stye and rear leanto store.
Outside
Pastureland and rough grazing land with a westerly aspect.
Planning Permission
provides for ground floor lounge / dining area, kitchen, conservatory, snug / playroom, utility and shower room and first floor with two ensuite bedrooms, three further bedrooms, family bathroom and private study in all providing 4,500 sq ft of living accommodation over two floors.
Rights and Reservations
1. The routes of public footpaths are shown on the plan.
2. The overhead electrcity line and pylon are shown on the plan.
3. If the property is sold in separate lots the maintenance of the access route will be according to user.
4. The bungalow has a spring water supply and will have rights to enter onto the land with the barn ownershhip for repair and maintenance of the supply. The barn and former coach house owners will be expected to sink water boreholes respectively in their own land.
5. The owners of the barn and the former Coach House will be expected to arrange for their own electricity supplies.
6. If the property is sold in separate lots the owners of the four bay barn with the benefit of planning permission will be responsible to demolish the two bay barn in accordance with condition 5 of the planning permission thereby allowing a variation of the access route to the former Coach House if it proves desirable.
Brochures
Brochure 1Brochure 2Laund Lane, Haslingden, Rossendale, BB4
NEAREST STATIONS
Distances are straight line measurements from the centre of the postcode- Accrington Station3.2 miles
- Church & Ostwaldwistle Station3.7 miles
- Huncoat Station3.8 miles
About Richard Turner & Son, Bentham (Nr Lancaster),
Royal Oak Chambers, Main Street, Bentham (Nr Lancaster), LA2 7HF



Notes
Disclaimer - Property reference 30074279. The information displayed about this property comprises a property advertisement. Rightmove.co.uk makes no warranty as to the accuracy or completeness of the advertisement or any linked or associated information, and Rightmove has no control over the content. This property advertisement does not constitute property particulars. The information is provided and maintained by Richard Turner & Son, Bentham (Nr Lancaster),. Please contact the selling agent or developer directly to obtain any information which may be available under the terms of The Energy Performance of Buildings (Certificates and Inspections) (England and Wales) Regulations 2007 or the Home Report if in relation to a residential property in Scotland.
Map data ©OpenStreetMap contributors.




