Chadway, Dagenham

- PROPERTY TYPE
End of Terrace
- BEDROOMS
3
- BATHROOMS
1
- SIZE
Ask agent
- TENUREDescribes how you own a property. There are different types of tenure - freehold, leasehold, and commonhold.Read more about tenure in our glossary page.
Freehold
Key features
- ***EXTENDED FAMILY HOME***
- Three Bedrooms
- Living Room
- Reception Room
- Kitchen/Diner
- Modern Shower Room
- Double Glazing & GCH
- Off Street Parking
Description
Steps have great pleasure in being able to offer for sale this EXTENDED three bedroom End of Terrace family home located within easy access of Green Lane, which offers a vast array of local shopping and transport facilities, as well as only being ½ mile away from Chadwell Heath Elizabeth Line Train Station. To the ground floor there is a Living Room, further reception room and an Extended Kitchen/Diner, with your three bedrooms and shower room located to the first floor. With further benefits to include, Gas central heating, Double glazing, a well maintained rear garden, and off street parking for 2 cars. This really is a house to be seen, to fully appreciate all that is on offer!!
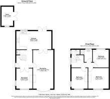
Entrance - Via door to hallway
Hallway - Built in storage cupboard. Wood flooring. Spot lights. Under stairs cupboard housing boiler. Half turning staircase to first floor. Doors to
Living Room - 6.96 x 3.66 (22'10" x 12'0") - uPVC window to front. Two radiators. Feature fire place. Coving to ceiling. French doors to kitchen/Diner.
Reception Room - 3.64 x 2.91 (11'11" x 9'6") - Duel aspect uPVC windows to both front and side. Feature fire place. Radiator. French doors to hallway.
Kitchen/Diner - 6.30 x 3.29 (20'8" x 10'9") - Range of fitted wall and base units with roll top work surfaces. Stainless steel single drainer sink unit with mixer taps. Tiled splash backs. Spaces for washing machine, tumble dryer, cooker, dishwasher and fridge freezer. Laminate effect wood flooring. Spot lights. Radiator. uPVC window to rear. uPVC French doors to garden.
Wc - Low level WC. Wash hand basin. Tiled splash backs. Radiator. Spot lights. Obscure glazed uPVC window to side.
Landing - uPVC window to side. Doors to
Bedroom One - 3.69 x 3.70 (12'1" x 12'1") - uPVC window to front. Fitted wardrobes. Radiator. Coving to ceiling.
Bedroom Two - 3.70 x 2.93 (12'1" x 9'7") - Duel aspect uPVC windows to side and front. Radiator. Coving to ceiling.
Bedroom Three - 3.20 x 2.86 (10'5" x 9'4") - uPVC window to rear. Radiator. Fitted wardrobes.
Shower Room - Shower cubical. Wash hand basin with mixer taps and storage under. Tiled walls. Chrome effect heated towel rail. Extractor fan. Spot lights. Access to loft via pull down ladder. Obscure glazed uPVC window to rear.
Rear Garden - 9.14m approx (30 approx) - Well maintained garden with brick built shed with power and light. Side access.
Front Garden - Providing off street parking for two cars.
We routinely refer potential purchasers to Move with Us Ltd. It is your decision whether you choose to deal with Move with Us Ltd. In making that decision, you should know that we receive an annual payment benefits from Move with Us Ltd, equating to approximately £314.48 per referral.
Brochures
Chadway, DagenhamBrochure- COUNCIL TAXA payment made to your local authority in order to pay for local services like schools, libraries, and refuse collection. The amount you pay depends on the value of the property.Read more about council Tax in our glossary page.
- Band: C
- PARKINGDetails of how and where vehicles can be parked, and any associated costs.Read more about parking in our glossary page.
- Off street
- GARDENA property has access to an outdoor space, which could be private or shared.
- Yes
- ACCESSIBILITYHow a property has been adapted to meet the needs of vulnerable or disabled individuals.Read more about accessibility in our glossary page.
- Ask agent
Chadway, Dagenham
Add an important place to see how long it'd take to get there from our property listings.
__mins driving to your place
Get an instant, personalised result:
- Show sellers you’re serious
- Secure viewings faster with agents
- No impact on your credit score
Your mortgage
Notes
Staying secure when looking for property
Ensure you're up to date with our latest advice on how to avoid fraud or scams when looking for property online.
Visit our security centre to find out moreDisclaimer - Property reference 34533663. The information displayed about this property comprises a property advertisement. Rightmove.co.uk makes no warranty as to the accuracy or completeness of the advertisement or any linked or associated information, and Rightmove has no control over the content. This property advertisement does not constitute property particulars. The information is provided and maintained by Steps Estate Agents, Dagenham. Please contact the selling agent or developer directly to obtain any information which may be available under the terms of The Energy Performance of Buildings (Certificates and Inspections) (England and Wales) Regulations 2007 or the Home Report if in relation to a residential property in Scotland.
*This is the average speed from the provider with the fastest broadband package available at this postcode. The average speed displayed is based on the download speeds of at least 50% of customers at peak time (8pm to 10pm). Fibre/cable services at the postcode are subject to availability and may differ between properties within a postcode. Speeds can be affected by a range of technical and environmental factors. The speed at the property may be lower than that listed above. You can check the estimated speed and confirm availability to a property prior to purchasing on the broadband provider's website. Providers may increase charges. The information is provided and maintained by Decision Technologies Limited. **This is indicative only and based on a 2-person household with multiple devices and simultaneous usage. Broadband performance is affected by multiple factors including number of occupants and devices, simultaneous usage, router range etc. For more information speak to your broadband provider.
Map data ©OpenStreetMap contributors.







