Chaveney Walk, Quorn, LE12

- PROPERTY TYPE
Detached
- BEDROOMS
5
- BATHROOMS
4
- SIZE
2,196 sq ft
204 sq m
- TENUREDescribes how you own a property. There are different types of tenure - freehold, leasehold, and commonhold.Read more about tenure in our glossary page.
Freehold
Key features
- Tucked Away Cul-de-Sac Village Position
- No Upward Chain
- Five Bedrooms / Four En-Suites
- Stunning Open Plan Living Kitchen
- Principal Suite with Dressing Room
- Stylish Landscaped Rear Garden
- Driveway & Double Garage
- Energy Rating: B
Description
Situated in a tucked-away position at the end of a quiet cul-de-sac on the highly regarded Chaveney Walk, this substantial three-storey detached home offers deceptively spacious accommodation, thoughtfully designed for modern family living and entertaining. Enjoying a private setting and offered to the market with no upward chain, the property combines generous proportions with beautifully appointed interiors and a landscaped garden designed for relaxation and social occasions.
Upon entering the home, you are welcomed by a bright and spacious entrance hall with stylish tiled flooring which continues through to the heart of the property, an impressive open-plan living dining kitchen. This exceptional space has been carefully designed as the social hub of the home, offering ample room for a dining table alongside a comfortable seating area. A striking lantern ceiling window floods the room with natural light, while bi-folding doors open seamlessly onto the landscaped rear garden, creating an effortless connection between indoor and outdoor living.
The kitchen itself is fitted with sleek white gloss cabinetry complemented by black granite worktops, centred around a generous island and breakfast bar. A comprehensive range of integrated appliances includes a full-height fridge, full-height freezer, deep drawer storage, oven, combi oven microwave, induction hob, built-in dishwasher and a hot water tap, ensuring both style and practicality for everyday living and entertaining. Adjoining the kitchen is a well-equipped utility room, providing further storage cupboards, space for two appliances and a second sink. A side door leads conveniently outside where two storage sheds are also located.
The ground floor also offers an inviting living room featuring bi-folding doors opening onto the garden. A hidden fireplace with chimney breast provides the potential to reinstate a focal point if desired. A second sitting room/study is ideal for modern working requirements. Completing the ground floor is a cloakroom/WC and useful understairs storage.
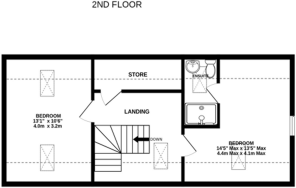
To the first floor, the fabulous principal suite provides a luxurious retreat, comprising a large bedroom, an impressive fully tiled ensuite bathroom with both a jacuzzi bath and walk-in shower cubicle, and a separate dressing room complete with island, built-in dressing table, drawers and hanging space. Two further well-proportioned bedrooms are located on this floor, each benefitting from their own private en-suite facilities and built-in wardrobes, alongside useful linen and airing cupboards on the landing.
The second floor continues the excellent sense of space with two further double bedrooms, one of which enjoys its own en-suite shower room, making it ideal for guests or older children. An additional walk-in storage cupboard is also located on the landing.
Externally, the contemporary theme continues with a beautifully landscaped rear garden, thoughtfully designed with porcelain tiled patio seating areas, a lawn and striking planting which provides colour and interest throughout the seasons. Discreet garden lighting enhances the space in the evening, while a private rear gate offers pedestrian access onto Cradock Drive, providing a convenient shortcut into the village centre.
To the front of the property, a block-paved driveway provides off-road parking for two vehicles and leads to the integral double garage, which benefits from an electric up-and-over door, power and lighting.
Quorn is widely regarded as one of the most desirable villages in the region, offering a vibrant community atmosphere alongside an excellent range of independent shops, cafés, restaurants and traditional public houses within its charming village centre. The area is particularly well placed for commuters, with convenient access to Loughborough, Leicester and the A6, while the nearby M1 motorway and East Midlands Airport provide further regional and national connections. The village is also well served by reputable schooling and beautiful surrounding countryside, including scenic walks along the River Soar and nearby Charnwood countryside, making it an exceptional place to call home.
Agent note: This property has solar panels which are owned outright. There is underfloor heating to the majority of the ground floor.
Services: Mains water, gas, electric, drainage and broadband are connected to this property.
Available mobile phone coverage: EE (Okay) O2 (Okay) Three (Good) Vodaphone (Poor) (Information supplied by Ofcom via Spectre)
Available broadband: Standard / Superfast / Ultrafast (Information supplied by Ofcom via Spectre)
Potential purchasers are advised to seek their own advice as to the suitability of the services and mobile phone coverage, the above is for guidance only.
Flood Risk: Very low risk of surface water flooding / Very low risk river and sea flooding (Information supplied by gov.uk and purchasers are advised to seek their own legal advice)
Tenure: Freehold
Local Council / Tax Band: Charnwood Borough Council / G (Improvement Indicator: No)
Floor plan: Whilst every attempt has been made to ensure accuracy, all measurements are approximate and not to scale. The floor plan is for illustrative purposes only.
DIGITAL MARKETS COMPETITION AND CONSUMERS ACT 2024 (DMCC ACT)
The DMCC Act 2024, which came into force in April 2025, is designed to ensure that consumers are treated fairly and have all the information required to make an informed purchase, whether that be a property or any other consumer goods. Reed & Baum are committed to providing material information relating to the properties we are marketing to assist prospective buyers when making a decision to proceed with the purchase of a property. Please note all information will need to be verified by the buyers' solicitor and is given in good faith from information obtained from sources including but not restricted to HMRC Land Registry, Spectre, Ofcom, Gov.uk and provided by our sellers.
ANTI-MONEY LAUNDERING CHECKS
In accordance with Anti Money Laundering laws including the Proceeds of Crime Act 2002, The Terrorism Act 2000, The Money Laundering Regulations 2017 and the Bribery Act 2010 we are required to conduct anti-money laundering checks on all clients selling or buying a property. Whilst we retain responsibility for ensuring checks and any ongoing monitoring are carried out correctly, the initial checks are carried out on our behalf by Hipla via their online portal once you have had an offer accepted on a property. The cost of these checks is £25 (incl. VAT) per person, which covers the cost of obtaining relevant data and any manual checks and monitoring which might be required. This fee will need to be paid by you in advance of us issuing a memorandum of sale, directly to Hipla, and is non-refundable. We will receive some of the fee taken by Hipla to compensate for our role in the provision of these checks.
EPC Rating: B
Living Dining Kitchen
9.7m x 6.6m
9.7m max x 6.6m max
Lounge
6m x 3.9m
Sitting Room / Study
3.8m x 2.5m
Utility Room
2.5m x 1.4m
Principal Bedroom
6m x 3.8m
6m x 3.8m
Dressing Room
3.6m x 3m
En-suite
3.8m x 2.5m
Guest Bedroom
5.8m x 5.2m
5.8m x 5.2m plus robes
Bedroom
4.6m x 3.7m
4.6m min x 3.7m max
Bedroom
4m x 3.2m
Bedroom
4.4m x 4.1m
4.4m max x 4.1m max
Parking - Garage
Parking - Driveway
- COUNCIL TAXA payment made to your local authority in order to pay for local services like schools, libraries, and refuse collection. The amount you pay depends on the value of the property.Read more about council Tax in our glossary page.
- Band: G
- PARKINGDetails of how and where vehicles can be parked, and any associated costs.Read more about parking in our glossary page.
- Garage,Driveway
- GARDENA property has access to an outdoor space, which could be private or shared.
- Private garden
- ACCESSIBILITYHow a property has been adapted to meet the needs of vulnerable or disabled individuals.Read more about accessibility in our glossary page.
- Ask agent
Chaveney Walk, Quorn, LE12
Add an important place to see how long it'd take to get there from our property listings.
__mins driving to your place
Get an instant, personalised result:
- Show sellers you’re serious
- Secure viewings faster with agents
- No impact on your credit score
Your mortgage
Notes
Staying secure when looking for property
Ensure you're up to date with our latest advice on how to avoid fraud or scams when looking for property online.
Visit our security centre to find out moreDisclaimer - Property reference e581e49d-bfa0-4600-b16a-88c9adfe6a49. The information displayed about this property comprises a property advertisement. Rightmove.co.uk makes no warranty as to the accuracy or completeness of the advertisement or any linked or associated information, and Rightmove has no control over the content. This property advertisement does not constitute property particulars. The information is provided and maintained by Reed & Baum, Quorn. Please contact the selling agent or developer directly to obtain any information which may be available under the terms of The Energy Performance of Buildings (Certificates and Inspections) (England and Wales) Regulations 2007 or the Home Report if in relation to a residential property in Scotland.
*This is the average speed from the provider with the fastest broadband package available at this postcode. The average speed displayed is based on the download speeds of at least 50% of customers at peak time (8pm to 10pm). Fibre/cable services at the postcode are subject to availability and may differ between properties within a postcode. Speeds can be affected by a range of technical and environmental factors. The speed at the property may be lower than that listed above. You can check the estimated speed and confirm availability to a property prior to purchasing on the broadband provider's website. Providers may increase charges. The information is provided and maintained by Decision Technologies Limited. **This is indicative only and based on a 2-person household with multiple devices and simultaneous usage. Broadband performance is affected by multiple factors including number of occupants and devices, simultaneous usage, router range etc. For more information speak to your broadband provider.
Map data ©OpenStreetMap contributors.





