Dolphin Court, New Quay , SA45
- PROPERTY TYPE
Plot
- SIZE
Ask agent
Key features
- New Quay - West Wales
- An outstanding coastal plot
- Full planning permission
- Distant Sea Views
- Walking distance to all amenities and beach
Description
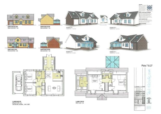
**Unique development opportunity**Fully serviced plot with no affordable housing**Distant sea views over Cardigan Bay**4 bed dormer bungalow**Sought after residential development site**Sold as an individual plot**Utility Service agreements in place**
A RARE OPPORTUNITY NOT TO BE MISSED !
The development site sits on the fringes of the popular coastal harbour village of New Quay being positioned along the Cardigan Bay coastline. The site is within walking distance of local village amenities including shops, cafes, restaurants, bars, places of worship, primary school, sandy beaches and excellent public transport connectivity. The Georgian harbour town of Aberaeron is within some 7 miles. The larger urban towns of Cardigan and Aberystwyth being a 30 minute drive.
We are advised that the site benefits from mains water, electricity and drainage connections.
Freehold Tenure.
GENERAL
An exciting opportunity for a high quality development plot within this highly desirable Dolphin Court Scheme.
We are advised that the development benefits from full Section Agreements with the Local Authority and statutory utility providers to service the whole scheme.
There are no Affordable housing contributions required with this development.
Dolphin Court Development consists of 37 exceptional new homes designed to offer the best of coastal living.
The site is situated a 5 minute walk to the beach and is sheltered from the estate road by a copse of mature trees.
The site is a haven for tranquility enjoying lovely views over Cardigan Bay.
MONEY LAUNDERING REGULATIONS
The successful purchaser will be required to produce adequate identification to prove their identity within the terms of the Money Laundering Regulations. Appropriate examples include: Passport/Photo Driving Licence and a recent Utility Bill. Proof of funds will also be required, or mortgage in principle papers if a mortgage is required.
Brochures
Brochure 1Dolphin Court, New Quay , SA45
NEAREST STATIONS
Distances are straight line measurements from the centre of the postcode- Aberystwyth Station18.4 miles
Notes
Disclaimer - Property reference 28791005. The information displayed about this property comprises a property advertisement. Rightmove.co.uk makes no warranty as to the accuracy or completeness of the advertisement or any linked or associated information, and Rightmove has no control over the content. This property advertisement does not constitute property particulars. The information is provided and maintained by Morgan & Davies, Aberaeron. Please contact the selling agent or developer directly to obtain any information which may be available under the terms of The Energy Performance of Buildings (Certificates and Inspections) (England and Wales) Regulations 2007 or the Home Report if in relation to a residential property in Scotland.
Map data ©OpenStreetMap contributors.









