Percy Road, Southampton, SO16 4LN

- PROPERTY TYPE
Semi-Detached
- BEDROOMS
2
- BATHROOMS
2
- SIZE
Ask agent
- TENUREDescribes how you own a property. There are different types of tenure - freehold, leasehold, and commonhold.Read more about tenure in our glossary page.
Freehold
Key features
- Two-bedroom semi-detached home
- Quiet cul-de-sac position minimising traffic noise
- Enclosed and well-maintained rear garden
- Off-road parking
- Separate modern kitchen
- Spacious lounge with excellent natural light
- Downstairs WC and modern family bathroom
- Under-stairs storage
- Double glazing and energy-efficient boiler
- Ideal for first-time buyers or investors (currently tenanted)
Description
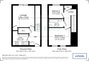
Situated within the sought-after Ballina Mews development at Ballina Mews, 90a Percy Road, Southampton, SO16 4LN, this attractive two-bedroom semi-detached home offers well-balanced accommodation in a peaceful cul-de-sac setting. Positioned to minimise traffic noise, the property enjoys a quiet residential environment while remaining conveniently close to local amenities, schools, woodlands, parks and excellent motorway links.
Internally, the property benefits from generous room and a well-designed layout that maximises both space and functionality. The lounge provides a welcoming living area with an easy flow through out into the garden, creating an ideal arrangement for both everyday living and entertaining. Large windows throughout allow for ample natural light, enhancing the sense of space and comfort.
The separate modern kitchen is well-appointed and thoughtfully arranged, offering practicality without compromising on style. Finished in neutral tones that will appeal to a broad audience, the interior décor provides a blank canvas for personalisation. Additional features such as useful under-stairs storage and a convenient downstairs WC add to the home’s functionality.
Upstairs, the property comprises two well-proportioned bedrooms and a modern family bathroom. Comfort is assured with double glazing and an energy-efficient boiler, supporting both warmth and running cost efficiency. The home is presented in move-in ready condition, requiring no immediate works, making it particularly attractive for buyers seeking a smooth transition.
Externally, the enclosed rear garden is a standout feature, offering a well-kept and private outdoor space ideal for relaxation or entertaining. The property also benefits from off-road parking, adding further practicality. Currently tenanted, this home presents a strong opportunity for investors, while equally appealing to first-time buyers looking to step onto the property ladder in a convenient and desirable Southampton location.
Brochures
Brochure 1- COUNCIL TAXA payment made to your local authority in order to pay for local services like schools, libraries, and refuse collection. The amount you pay depends on the value of the property.Read more about council Tax in our glossary page.
- Band: B
- PARKINGDetails of how and where vehicles can be parked, and any associated costs.Read more about parking in our glossary page.
- Off street
- GARDENA property has access to an outdoor space, which could be private or shared.
- Yes
- ACCESSIBILITYHow a property has been adapted to meet the needs of vulnerable or disabled individuals.Read more about accessibility in our glossary page.
- Ask agent
Percy Road, Southampton, SO16 4LN
Add an important place to see how long it'd take to get there from our property listings.
__mins driving to your place
Get an instant, personalised result:
- Show sellers you’re serious
- Secure viewings faster with agents
- No impact on your credit score
Affordability
Notes
Staying secure when looking for property
Ensure you're up to date with our latest advice on how to avoid fraud or scams when looking for property online.
Visit our security centre to find out moreDisclaimer - Property reference S1655196. The information displayed about this property comprises a property advertisement. Rightmove.co.uk makes no warranty as to the accuracy or completeness of the advertisement or any linked or associated information, and Rightmove has no control over the content. This property advertisement does not constitute property particulars. The information is provided and maintained by Enfields, Southampton. Please contact the selling agent or developer directly to obtain any information which may be available under the terms of The Energy Performance of Buildings (Certificates and Inspections) (England and Wales) Regulations 2007 or the Home Report if in relation to a residential property in Scotland.
*This is the average speed from the provider with the fastest broadband package available at this postcode. The average speed displayed is based on the download speeds of at least 50% of customers at peak time (8pm to 10pm). Fibre/cable services at the postcode are subject to availability and may differ between properties within a postcode. Speeds can be affected by a range of technical and environmental factors. The speed at the property may be lower than that listed above. You can check the estimated speed and confirm availability to a property prior to purchasing on the broadband provider's website. Providers may increase charges. The information is provided and maintained by Decision Technologies Limited. **This is indicative only and based on a 2-person household with multiple devices and simultaneous usage. Broadband performance is affected by multiple factors including number of occupants and devices, simultaneous usage, router range etc. For more information speak to your broadband provider.
Map data ©OpenStreetMap contributors.





