
The Street, West Clandon, GU4

- PROPERTY TYPE
Detached
- BEDROOMS
6
- BATHROOMS
4
- SIZE
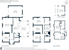
3,759 sq ft
349 sq m
- TENUREDescribes how you own a property. There are different types of tenure - freehold, leasehold, and commonhold.Read more about tenure in our glossary page.
Freehold
Key features
- Detached Edwardian family home
- Six bedrooms and four bathrooms
- Kitchen dining orangery family space
- Two further reception rooms
- Detached garden studio office
- Double garage and driveway parking
- Established gardens of about half an acre
- Village centre location near station
Description
The house has been thoughtfully maintained and enhanced during more than 25 years of ownership, creating a welcoming home perfectly suited to modern family life. High ceilings, generous room proportions and large windows ensure the house feels both bright and spacious throughout.
At the heart of the home is a stunning kitchen, dining and family space. The kitchen is fitted with bespoke cabinetry, granite work surfaces and an Aga, complemented by a breakfast bar and ample storage. This flows seamlessly into a striking orangery with vaulted glass roof, creating a wonderful entertaining and family area with doors opening onto the terrace and garden beyond. A utility room sits conveniently alongside.
The ground floor also includes an impressive drawing room with log burning stove, a further reception room currently used as a study and a shower room.
Across the upper two floors are six well-proportioned bedrooms served by three bathrooms, offering flexible accommodation ideal for families or visiting guests.
Outside
Outside, the property sits beautifully within its plot. A gravel driveway leads to a double garage and provides ample parking. The rear garden is a particular highlight, featuring mature trees, well-stocked borders and expansive lawns with paved terraces ideal for outdoor entertaining.
Tucked discreetly within the grounds is a detached garden studio currently used as a home office, providing an excellent work-from-home space or potential hobby room.
Situation
West Clandon is a highly sought-after Surrey village surrounded by beautiful countryside and National Trust land. The village retains a strong community feel and offers local amenities including a parish church, infant school, two traditional pubs and a popular garden centre.
Clandon station is within easy walking distance and provides regular services to London Waterloo in around 45–50 minutes, while nearby Guildford and Woking offer faster rail connections. The A3 is easily accessible, providing direct links to London, the M25 and both Heathrow and Gatwick airports.
Guildford, just a few miles away, offers extensive shopping, cultural and leisure facilities together with a wide selection of highly regarded schools including Guildford High School, Royal Grammar School, Tormead and George Abbot. The surrounding Surrey Hills Area of Outstanding Natural Beauty provides miles of walking, cycling and riding routes, with popular destinations such as Newlands Corner, Hatchlands Park and RHS Wisley all within easy reach.
Property Ref Number:
HAM-63578Additional Information
All services mains connected.
Guildford Borough Council
Council Tax Band: G
EPC: D
Brochures
Brochure- COUNCIL TAXA payment made to your local authority in order to pay for local services like schools, libraries, and refuse collection. The amount you pay depends on the value of the property.Read more about council Tax in our glossary page.
- Band: G
- PARKINGDetails of how and where vehicles can be parked, and any associated costs.Read more about parking in our glossary page.
- Off street
- GARDENA property has access to an outdoor space, which could be private or shared.
- Private garden
- ACCESSIBILITYHow a property has been adapted to meet the needs of vulnerable or disabled individuals.Read more about accessibility in our glossary page.
- Ask agent
The Street, West Clandon, GU4
Add an important place to see how long it'd take to get there from our property listings.
__mins driving to your place
Get an instant, personalised result:
- Show sellers you’re serious
- Secure viewings faster with agents
- No impact on your credit score
Affordability
Notes
Staying secure when looking for property
Ensure you're up to date with our latest advice on how to avoid fraud or scams when looking for property online.
Visit our security centre to find out moreDisclaimer - Property reference a1nQ500000ZqF6wIAF. The information displayed about this property comprises a property advertisement. Rightmove.co.uk makes no warranty as to the accuracy or completeness of the advertisement or any linked or associated information, and Rightmove has no control over the content. This property advertisement does not constitute property particulars. The information is provided and maintained by Hamptons, Guildford. Please contact the selling agent or developer directly to obtain any information which may be available under the terms of The Energy Performance of Buildings (Certificates and Inspections) (England and Wales) Regulations 2007 or the Home Report if in relation to a residential property in Scotland.
*This is the average speed from the provider with the fastest broadband package available at this postcode. The average speed displayed is based on the download speeds of at least 50% of customers at peak time (8pm to 10pm). Fibre/cable services at the postcode are subject to availability and may differ between properties within a postcode. Speeds can be affected by a range of technical and environmental factors. The speed at the property may be lower than that listed above. You can check the estimated speed and confirm availability to a property prior to purchasing on the broadband provider's website. Providers may increase charges. The information is provided and maintained by Decision Technologies Limited. **This is indicative only and based on a 2-person household with multiple devices and simultaneous usage. Broadband performance is affected by multiple factors including number of occupants and devices, simultaneous usage, router range etc. For more information speak to your broadband provider.
Map data ©OpenStreetMap contributors.








