8B, High Street, Penicuik, EH26 8HW

- PROPERTY TYPE
Flat
- BEDROOMS
2
- BATHROOMS
2
- SIZE
Ask agent
- TENUREDescribes how you own a property. There are different types of tenure - freehold, leasehold, and commonhold.Read more about tenure in our glossary page.
Freehold
Key features
- Exceptional duplex apartment in a historic conversion – Beautifully refurbished ground-floor duplex within the iconic Grade C Listed former Penicuik Store building, blending period character with styl
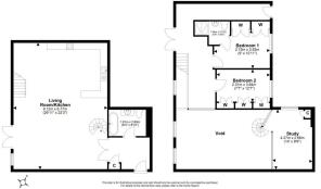
- Spacious and versatile living space – Bright open-plan living, dining and kitchen area with a newly fitted kitchen and integrated appliances, plus a galleried mezzanine level ideal as an office, loung
- Well-appointed accommodation – Two generous double bedrooms (one with a newly fitted en-suite), a modern family bathroom, and an upper hallway with study area and access to a second private patio.
- Excellent amenities and outdoor space – Two private patios, allocated parking, secure entry system, residents' car park and bike storage, plus access to an impressive communal stairway leading to a ro
Description
Superb sought-after High Street location. Beautifully refurbished throughout. Communal secure entry system. Entrance hallway with storage. Gorgeous family bathroom with bathtub, taps and shower attachment, bowl sink and vanity unit, wc with wall flush, heated towel radiator and wall mirror. Spacious open plan living, dining and kitchen area with stairs to the upper level, and spiral staircase to a mezzanine level which can be used as an office, second lounge or bedroom, and door to a ground floor patio. Newly fitted stunning kitchen, featuring a host of new integrated appliances including ceramic hob, stainless steel splashback, extractor, oven, microwave oven and grill, fridge freezer, dishwasher and washer dryer, units with lighting, and worktops with matching splashbacks. Galleried mezzanine level which can be used as an office, second lounge or bedroom area featuring built-in storage. Upper hallway with glass balustrade, study area, access to a second patio area and the resident's car park. Main double bedroom with wall lights and built-in wardrobes. Lovely newly fitted en-suite shower room. Second double bedroom with fitted wardrobes and storage. Gas central heating and double glazing. Communal garden roof terrace and social area providing stunning town and countryside views. Allocated parking to the rear.
Brochures
Brochure- COUNCIL TAXA payment made to your local authority in order to pay for local services like schools, libraries, and refuse collection. The amount you pay depends on the value of the property.Read more about council Tax in our glossary page.
- Band: D
- PARKINGDetails of how and where vehicles can be parked, and any associated costs.Read more about parking in our glossary page.
- Residents
- GARDENA property has access to an outdoor space, which could be private or shared.
- Patio
- ACCESSIBILITYHow a property has been adapted to meet the needs of vulnerable or disabled individuals.Read more about accessibility in our glossary page.
- Ask agent
Energy performance certificate - ask agent
8B, High Street, Penicuik, EH26 8HW
Add an important place to see how long it'd take to get there from our property listings.
__mins driving to your place
Get an instant, personalised result:
- Show sellers you’re serious
- Secure viewings faster with agents
- No impact on your credit score
Affordability
Notes
Staying secure when looking for property
Ensure you're up to date with our latest advice on how to avoid fraud or scams when looking for property online.
Visit our security centre to find out moreDisclaimer - Property reference 279928. The information displayed about this property comprises a property advertisement. Rightmove.co.uk makes no warranty as to the accuracy or completeness of the advertisement or any linked or associated information, and Rightmove has no control over the content. This property advertisement does not constitute property particulars. The information is provided and maintained by McDougall McQueen, Dalkeith Property Hub. Please contact the selling agent or developer directly to obtain any information which may be available under the terms of The Energy Performance of Buildings (Certificates and Inspections) (England and Wales) Regulations 2007 or the Home Report if in relation to a residential property in Scotland.
*This is the average speed from the provider with the fastest broadband package available at this postcode. The average speed displayed is based on the download speeds of at least 50% of customers at peak time (8pm to 10pm). Fibre/cable services at the postcode are subject to availability and may differ between properties within a postcode. Speeds can be affected by a range of technical and environmental factors. The speed at the property may be lower than that listed above. You can check the estimated speed and confirm availability to a property prior to purchasing on the broadband provider's website. Providers may increase charges. The information is provided and maintained by Decision Technologies Limited. **This is indicative only and based on a 2-person household with multiple devices and simultaneous usage. Broadband performance is affected by multiple factors including number of occupants and devices, simultaneous usage, router range etc. For more information speak to your broadband provider.
Map data ©OpenStreetMap contributors.




